2013November
45,900,000 yen, 4LDK, 112.62 sq m
New Homes » Kansai » Shiga Prefecture » Omihachiman
 
| | Shiga Prefecture Omihachiman 滋賀県近江八幡市 |
| JR Tokaido Line "Hachiman" walk 20 minutes JR東海道本線「近江八幡」歩20分 |
Local guide map 現地案内図 | | Local guide map 現地案内図 | Property name 物件名 | | Kirihara Higashidanchi 2-2 No. land 桐原東団地 2-2号地 | Price 価格 | | 45,900,000 yen 4590万円 | Floor plan 間取り | | 4LDK 4LDK | Units sold 販売戸数 | | 1 units 1戸 | Total units 総戸数 | | 1 units 1戸 | Land area 土地面積 | | 200.64 sq m (registration) 200.64m2(登記) | Building area 建物面積 | | 112.62 sq m (registration) 112.62m2(登記) | Driveway burden-road 私道負担・道路 | | Nothing 無 | Completion date 完成時期(築年月) | | November 2013 2013年11月 | Address 住所 | | Shiga Prefecture Omihachiman Tsuchida-cho 滋賀県近江八幡市土田町 | Traffic 交通 | | JR Tokaido Line "Hachiman" walk 20 minutes JR東海道本線「近江八幡」歩20分
| Related links 関連リンク | | [Related Sites of this company] 【この会社の関連サイト】 | Contact お問い合せ先 | | Shiga central office TEL: 0120-338-417 [Toll free] Please contact the "saw SUUMO (Sumo)" 滋賀中央営業所TEL:0120-338-417【通話料無料】「SUUMO(スーモ)を見た」と問い合わせください | Building coverage, floor area ratio 建ぺい率・容積率 | | Fifty percent ・ 80% 50%・80% | Time residents 入居時期 | | Immediate available 即入居可 | Land of the right form 土地の権利形態 | | Ownership 所有権 | Structure and method of construction 構造・工法 | | Wooden 2-story 木造2階建 | Company profile 会社概要 | | <Seller> Minister of Land, Infrastructure and Transport (5) Article 005068 No. Misawa Homes Kinki Co., Ltd. Shiga branch Yubinbango522-0002 Hikone, Shiga Prefecture, City Matsubara-cho, 1880-5 <売主>国土交通大臣(5)第005068号ミサワホーム近畿(株)滋賀支店〒522-0002 滋賀県彦根市松原町1880-5 |
Livingリビング  Living-dining
リビングダイニング
 Kitchen
キッチン
Local appearance photo現地外観写真  2-2 No. land appearance
2-2号地外観
 Living
リビング
 Bathroom
浴室
Other introspectionその他内観  Living stairs
リビング階段
Wash basin, toilet洗面台・洗面所  Washroom
洗面所
 Toilet
トイレ
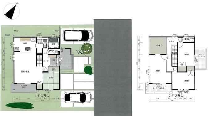
Floor plan間取り図  45,900,000 yen, 4LDK, Land area 200.64 sq m , Building area 112.62 sq m 2-2 No. land Floor plan
4590万円、4LDK、土地面積200.64m2、建物面積112.62m2 2-2号地 間取り図
Other introspectionその他内観  Japanese style room
和室
 Receipt
収納
 Western style room
洋室
 Western style room
洋室
 Balcony
バルコニー
 Local guide map
現地案内図
Supermarketスーパー  Al ・ Until Plaza Omihachiman 1513m
アル・プラザ近江八幡まで1513m
Primary school小学校  Omihachiman City Kirihara 311m to East Elementary School
近江八幡市立桐原東小学校まで311m
Hospital病院  Omihachiman Municipal Medical Center to 528m
近江八幡市立総合医療センターまで528m
Government office役所  Omihachiman 1264m to city hall
近江八幡市役所まで1264m
Location
|