New Homes » Kansai » Shiga Prefecture » Otsu
 
| | Otsu, Shiga Prefecture 滋賀県大津市 |
| JR Kosei Line "Omimaiko" walk 8 minutes JR湖西線「近江舞子」歩8分 |
| ● model house public held in! Every Sat. ・ Day 12 o'clock ~ 17 pm ● 30 minutes JR Kosei Line from "Omimaiko Station" to "Kyoto Station" ・ ・ Until the "Osaka Station" of the 60-minute prime location! ● spacious My home with land 90 square meters ●モデルハウス公開催中!毎週土・日12時 ~ 17時●JR湖西線「近江舞子駅」から「京都駅」まで30分・・「大阪駅」までは60分の好立地!●土地90坪付の広々マイホーム |
| ● 5-minute walk from the Omimaiko Kitahama swimming park! An 8-minute walk to the station. ●近江舞子北浜水泳場まで徒歩5分!駅まで徒歩8分。 |
Features pickup 特徴ピックアップ | | Land 50 square meters or more / See the mountain / It is close to golf course / Super close / It is close to the city / Flat to the station / Around traffic fewer / Or more before road 6m / Starting station / Shaping land / Mu front building / Maintained sidewalk / Flat terrain / Development subdivision in 土地50坪以上 /山が見える /ゴルフ場が近い /スーパーが近い /市街地が近い /駅まで平坦 /周辺交通量少なめ /前道6m以上 /始発駅 /整形地 /前面棟無 /整備された歩道 /平坦地 /開発分譲地内 | Event information イベント情報 | | Model house (please make a reservation beforehand) schedule / Every Saturday, Sunday and public holidays time / 12:00 ~ 17:00 モデルハウス(事前に必ず予約してください)日程/毎週土日祝時間/12:00 ~ 17:00 | Price 価格 | | 5.8 million yen 580万円 | Building coverage, floor area ratio 建ぺい率・容積率 | | 60% ・ 200% 60%・200% | Sales compartment 販売区画数 | | 1 compartment 1区画 | Total number of compartments 総区画数 | | 11 compartment 11区画 | Land area 土地面積 | | 297.17 sq m (89.89 tsubo) (Registration) 297.17m2(89.89坪)(登記) | Driveway burden-road 私道負担・道路 | | Nothing, West 6m width (contact the road width 19m) 無、西6m幅(接道幅19m) | Land situation 土地状況 | | Vacant lot 更地 | Address 住所 | | Otsu, Shiga Prefecture Minamikomatsu 滋賀県大津市南小松 | Traffic 交通 | | JR Kosei Line "Omimaiko" walk 8 minutes JR湖西線「近江舞子」歩8分
| Related links 関連リンク | | [Related Sites of this company] 【この会社の関連サイト】 | Contact お問い合せ先 | | Housing Plaza Keihan TEL: 0800-603-3489 [Toll free] mobile phone ・ Also available from PHS Caller ID is not notified Please contact the "saw SUUMO (Sumo)" If it does not lead, If the real estate company ハウジングプラザ京阪TEL:0800-603-3489【通話料無料】携帯電話・PHSからもご利用いただけます 発信者番号は通知されません 「SUUMO(スーモ)を見た」と問い合わせください つながらない方、不動産会社の方は
| Land of the right form 土地の権利形態 | | Ownership 所有権 | Building condition 建築条件 | | With 付 | Time delivery 引き渡し時期 | | Consultation 相談 | Land category 地目 | | Residential land 宅地 | Use district 用途地域 | | One dwelling 1種住居 | Overview and notices その他概要・特記事項 | | Facilities: Public Water Supply, This sewage, All-electric 設備:公営水道、本下水、オール電化 | Company profile 会社概要 | | <Seller> governor of Osaka (3) The 048,976 No. housing Plaza Keihan Yubinbango573-1124 Hirakata, Osaka Yabuhigashi cho 18-26 Keihan Bill 301 <売主>大阪府知事(3)第048976号ハウジングプラザ京阪〒573-1124 大阪府枚方市養父東町18-26 京阪ビル301 |
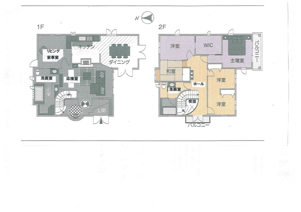
Compartment view + building plan example区画図+建物プラン例  Building plan example, Land price 5.8 million yen, Land area 297.17 sq m , Building price 25 million yen, Building area 165.3 sq m building plan example
建物プラン例、土地価格580万円、土地面積297.17m2、建物価格2500万円、建物面積165.3m2 建物プラン例
Building plan example (introspection photo)建物プラン例(内観写真)  Building plan example (second floor guest ROOM) same specification
建物プラン例(2階ゲストROOM)同仕様
 (First floor bathroom) same specification
(1階バスルーム)同仕様
Compartment figure区画図  Land price 5.8 million yen, Land area 297.17 sq m
土地価格580万円、土地面積297.17m2
Building plan example (introspection photo)建物プラン例(内観写真)  Building plan example (2 Kainushi bedroom) same specification
建物プラン例(2階主寝室)同仕様
Station駅  JR Kosei Line 600m to "Omimaiko"
JR湖西線「近江舞子」まで600m
Building plan example (Perth ・ appearance)建物プラン例(パース・外観)  (External terrace) same specification
(外部テラス)同仕様
Building plan example (introspection photo)建物プラン例(内観写真)  Building plan example (lavatory) same specification
建物プラン例(洗面室)同仕様
Local land photo現地土地写真  Local (August 2013) Shooting
現地(2013年8月)撮影
Local photos, including front road前面道路含む現地写真  Local (August 2013) Shooting
現地(2013年8月)撮影
Building plan example (introspection photo)建物プラン例(内観写真)  Building plan example (second floor children room) same specification
建物プラン例(2階子供室)同仕様
 Building plan example (1 Kaibasu ROOM) building price
建物プラン例(1階バスROOM)建物価格
Otherその他  Western-style same specifications
洋室同仕様
 Second floor basin ・ WC same specifications
2階洗面・WC同仕様
 Second floor bathroom same specifications
2階バスルーム同仕様
Location
|