New Homes » Kansai » Shiga Prefecture » Otsu
 
| | Otsu, Shiga Prefecture 滋賀県大津市 |
| JR Kosei Line "Ono" walk 5 minutes JR湖西線「小野」歩5分 |
| Japan's lake, Invitation to widely want "special seat" the Lake Biwa. Comfortable environment life of the station walk 5 minutes. Biwako Rose Town "Nozomi Residential Quarters," the first 21 stage, Finally started selling! 日本一の湖、琵琶湖を広く望む“特等席”へご招待。駅徒歩5分の快適環境生活。びわ湖ローズタウン「のぞみ住区」第21期、いよいよ販売開始! |
| ■ Rich natural of Hira mountain feel the majestic Lake Biwa and seasonal, Location of the peace that has been wrapped in a green and open feeling of the park ■ Easy to the station in the JR Kosei Line "Ono" station just a 5-minute walk flat approach of ■ Close to large-scale commercial facilities and lifestyle convenience facilities accumulation, Attractive living environment ■ School zone of peace of mind that educational facilities are complete. Public facilities such as medical facilities, Close to fulfilling even the natural environment ■ All compartment covers an area 150 sq m more relaxed some streets birth ◆ Those of the latest information Shop of Nozomi residential District [Document request] A click ◆ ■雄大な琵琶湖と季節を感じる比良山の豊かな自然、公園の緑や開放感に包まれた安らぎのロケーション■JR湖西線「小野」駅わずか徒歩5分のフラットアプローチで駅まで楽々■近隣には大型商業施設や生活利便施設が集積、魅力ある住環境■教育施設が整う安心の文教地区。医療施設などの公共施設、自然環境も身近に充実■全区画敷地面積150m2以上のゆとりある街並が誕生◆のぞみ住区の最新情報をお求めの方は【資料請求】をクリック◆ |
Seller comments 売主コメント | | 25-3 No. land 25-3号地 | Local guide map 現地案内図 | | Local guide map 現地案内図 | Features pickup 特徴ピックアップ | | Corresponding to the flat-35S / Airtight high insulated houses / Pre-ground survey / Year Available / Parking three or more possible / LDK20 tatami mats or more / Land 50 square meters or more / Energy-saving water heaters / lake ・ See the pond / See the mountain / It is close to ski resorts / It is close to golf course / Super close / Facing south / System kitchen / Bathroom Dryer / Yang per good / All room storage / Flat to the station / Siemens south road / A quiet residential area / Around traffic fewer / Or more before road 6m / Corner lot / Japanese-style room / Shaping land / Garden more than 10 square meters / garden / Washbasin with shower / Face-to-face kitchen / Wide balcony / 3 face lighting / Barrier-free / Toilet 2 places / Bathroom 1 tsubo or more / 2-story / 2 or more sides balcony / South balcony / Double-glazing / Otobasu / Warm water washing toilet seat / loft / Nantei / Underfloor Storage / The window in the bathroom / Atrium / TV monitor interphone / High-function toilet / Leafy residential area / Mu front building / Ventilation good / All living room flooring / Good view / Built garage / Dish washing dryer / Walk-in closet / All room 6 tatami mats or more / Water filter / Living stairs / City gas / Storeroom / All rooms are two-sided lighting / Located on a hill / A large gap between the neighboring house / Maintained sidewalk / In a large town / roof balcony / Flat terrain / Attic storage / Floor heating / Development subdivision in / terrace フラット35Sに対応 /高気密高断熱住宅 /地盤調査済 /年内入居可 /駐車3台以上可 /LDK20畳以上 /土地50坪以上 /省エネ給湯器 /湖・池が見える /山が見える /スキー場が近い /ゴルフ場が近い /スーパーが近い /南向き /システムキッチン /浴室乾燥機 /陽当り良好 /全居室収納 /駅まで平坦 /南側道路面す /閑静な住宅地 /周辺交通量少なめ /前道6m以上 /角地 /和室 /整形地 /庭10坪以上 /庭 /シャワー付洗面台 /対面式キッチン /ワイドバルコニー /3面採光 /バリアフリー /トイレ2ヶ所 /浴室1坪以上 /2階建 /2面以上バルコニー /南面バルコニー /複層ガラス /オートバス /温水洗浄便座 /ロフト /南庭 /床下収納 /浴室に窓 /吹抜け /TVモニタ付インターホン /高機能トイレ /緑豊かな住宅地 /前面棟無 /通風良好 /全居室フローリング /眺望良好 /ビルトガレージ /食器洗乾燥機 /ウォークインクロゼット /全居室6畳以上 /浄水器 /リビング階段 /都市ガス /納戸 /全室2面採光 /高台に立地 /隣家との間隔が大きい /整備された歩道 /大型タウン内 /ルーフバルコニー /平坦地 /屋根裏収納 /床暖房 /開発分譲地内 /テラス | Event information イベント情報 | | Local guidance meeting (please visitors to direct local) schedule / Every Saturday, Sunday and public holidays time / 10:00 ~ 17:00 ■ Japan's lake, Desire widely Lake Biwa we have held a pre-guidance meeting invitation current views widely Lake Biwa in Lake Biwa Rose Town "Nozomi Residential Quarters," the 21 term sale of the "special seat". Come streets of leeway in local, Surrounding environment, View of Lake Biwa, "Keihan House" your experience please. ■ Request Campaign! In Customers who received the document request, We your visit, We offer a nice gift to those who fill in the questionnaire. Come not please come to local on this occasion. 現地案内会(直接現地へご来場ください)日程/毎週土日祝時間/10:00 ~ 17:00■日本一の湖、琵琶湖を広く望む“特等席”へのご招待現在びわ湖ローズタウン「のぞみ住区」では琵琶湖を広く望める第21期分譲の事前案内会を開催しております。是非現地でゆとりの街並、周辺環境、琵琶湖の眺望、「京阪の家」をご体感下さい。■資料請求キャンペーン実施中!資料請求を頂いたお客様で、ご来場頂き、アンケートをご記入頂いた方には素敵なプレゼントをご用意しております。是非この機会に現地にお越し下さいませ。 | Property name 物件名 | | Biwako Rose Town "Nozomi Residential Quarters," the first 21 Phase sale びわ湖ローズタウン「のぞみ住区」第21期分譲 | Price 価格 | | 31,900,000 yen ~ 42,900,000 yen 3190万円 ~ 4290万円 | Floor plan 間取り | | 4LDK ~ 4LDK + 2S (storeroom) 4LDK ~ 4LDK+2S(納戸) | Units sold 販売戸数 | | 10 units 10戸 | Total units 総戸数 | | 263 units 263戸 | Land area 土地面積 | | 154.74 sq m ~ 277.71 sq m (46.80 tsubo ~ 84.00 tsubo) (Registration) 154.74m2 ~ 277.71m2(46.80坪 ~ 84.00坪)(登記) | Building area 建物面積 | | 108.47 sq m ~ 120.59 sq m (32.81 tsubo ~ 36.47 square meters) 108.47m2 ~ 120.59m2(32.81坪 ~ 36.47坪) | Completion date 完成時期(築年月) | | Early June 2013 2013年6月初旬 | Address 住所 | | Otsu, Shiga Prefecture Mano 6-10-13 滋賀県大津市真野6-10-13 | Traffic 交通 | | JR Kosei Line "Ono" walk 5 minutes JR湖西線「小野」歩5分
| Related links 関連リンク | | [Related Sites of this company] 【この会社の関連サイト】 | Contact お問い合せ先 | | Keihan Electric Railway Real Estate Corporation "Nozomi Residential Quarters" sales center TEL: 0120-185-603 [Toll free] (mobile phone ・ Also available from PHS. ) Please contact the "saw SUUMO (Sumo)" 京阪電鉄不動産株式会社「のぞみ住区」販売センターTEL:0120-185-603【通話料無料】(携帯電話・PHSからもご利用いただけます。)「SUUMO(スーモ)を見た」と問い合わせください | Sale schedule 販売スケジュール | | ※ Application accepted location / "Nozomi Residential Quarters" sales center ※ Registration Hours / 10 am ~ 5:00 pm ※ Please have a seal when the application is ※申込受付場所/「のぞみ住区」販売センター※申込受付時間/午前10時 ~ 午後5時※申込の際は印鑑をお持ちください | Most price range 最多価格帯 | | 33 million yen (3 units) 3300万円台(3戸) | Expenses 諸費用 | | Other expenses: garbage measures Fund: 20,000 yen / Bulk, Town council expense: autonomy fee: 10,000 yen / Bulk (council join Fund), CATV initial cost: 26,250 yen, Flat fee: 1785 yen / Month, Different by the contract form その他諸費用:ゴミ対策基金:2万円/一括、町会費:自治会費:1万円/一括(自治会加入基金)、CATV初期費用:2万6250円、定額料金:1785円/月、契約形態により異なる | Building coverage, floor area ratio 建ぺい率・容積率 | | Building coverage: 60%, Volume ratio: 200% 建ぺい率:60%、容積率:200% | Time residents 入居時期 | | Consultation 相談 | Land of the right form 土地の権利形態 | | Ownership 所有権 | Structure and method of construction 構造・工法 | | Wooden 2-story (2 × 4 construction method) 木造2階建(2×4工法) | Use district 用途地域 | | One dwelling 1種住居 | Land category 地目 | | Residential land 宅地 | Other limitations その他制限事項 | | Regulations have by the Landscape Act, Residential land development construction regulation area, Advanced use district, Height minimum Available, Shade limit Yes, Building Agreement Yes, Green space agreement Yes 景観法による規制有、宅地造成工事規制区域、高度利用地区、高さ最低限度有、日影制限有、建築協定有、緑地協定有 | Overview and notices その他概要・特記事項 | | Building confirmation number: No. KKK01205413 other, Development total area: 1950000 sq m Nozomi Residential District: 66040 sq m , The total number of plans compartment: 5000 units, Kansai Electric Power Co., Inc., Public Water Supply, This sewage, City gas 建築確認番号:第KKK01205413号 他、開発総面積:1950000m2 のぞみ住区:66040m2、総計画区画数:5000戸、関西電力、公営水道、本下水、都市ガス | Company profile 会社概要 | | <Employer ・ Land seller> Minister of Land, Infrastructure and Transport (13) No. 1008 (the company) Osaka Building Lots and Buildings Transaction Business Association (Company) Kyoto Building Lots and Buildings Transaction Business Association (Corporation) Kinki district Real Estate Fair Trade Council member Keihan Electric Railway Co., Ltd. Development Division Yubinbango540-1659, Chuo-ku, Osaka-shi Otemae 1-chome No. 7 No. 31 <employer ・ Building seller ・ Land sales tie-up (agency)> Minister of Land, Infrastructure and Transport (3) No. 6056 Minister of Land, Infrastructure and Transport (JP -19) No. 22384 (company) Osaka Building Lots and Buildings Transaction Business Association (Company) Kyoto Building Lots and Buildings Transaction Business Association (Corporation), Shiga Prefecture, Building Lots and Buildings Transaction Business Association (S) and Kinki district Real Estate Fair Trade Council member Keihan Electric Railway Co., Ltd. real estate Yubinbango540-6591, Chuo-ku, Osaka-shi Otemae 1-chome No. 7 No. 31 <事業主・土地売主>国土交通大臣(13)第1008号(社)大阪府宅地建物取引業協会会員 (社)京都府宅地建物取引業協会会員 (公社)近畿地区不動産公正取引協議会加盟京阪電気鉄道株式会社開発事業部〒540-1659 大阪府大阪市中央区大手前1丁目7番31号<事業主・建物売主・土地販売提携(代理)>国土交通大臣(3)第6056号 国土交通大臣(特-19)第22384号(社)大阪府宅地建物取引業協会会員 (社)京都府宅地建物取引業協会会員 (公社)滋賀県宅地建物取引業協会会員 (社)近畿地区不動産公正取引協議会加盟京阪電鉄不動産株式会社〒540-6591 大阪府大阪市中央区大手前1丁目7番31号 |
 Characteristic Lake Biwa view mansion is large facing large balcony on the Lake Biwa side. In addition to the spacious grounds bright south-facing, Storage capacity rich, Come your experience do the planning with an awareness of housework flow line.
琵琶湖側に大きく面した大型バルコニーが特徴的な琵琶湖眺望邸宅。南向きで明るく広々とした敷地に加え、収納力豊富、家事動線を意識したプランニングを是非ご体感下さい。
 Model house photo. Possible view of Lake Biwa from 21 quires more than LDK. Cupboard, Floor heating, pantry, Underfloor Storage standard equipment (except for some dwelling unit). 21 period also storage capacity rich plan many life easy floor plan is a large number.
モデルハウス写真。21帖超のLDKからは琵琶湖の眺望が可能。カップボード、床暖房、パントリー、床下収納も標準装備(一部住戸除く)。21期も収納力豊富なプランが多く生活しやすい間取りが多数。
Local appearance photo現地外観写真  Nozomi Residential Quarters, also say the culmination of mature Biwako Rhodes Town. Otherworldly mansion district Keihan group is to deliver along with the beautiful Lake Biwa of view. House can feel the comfort and peace that was achieved because of the land.
成熟したびわ湖ローズタウンの集大成とも言えるのぞみ住区。美しい琵琶湖の眺望と共に京阪グループがお届けする別世界の邸宅街。この地だからこそ実現したゆとりと安らぎを実感出来る住まい。
View photos from the dwelling unit住戸からの眺望写真  Lake Biwa, Located on a hill to feel the sky near the "Nozomi Residential Quarters". Luxurious daily life to send overlooking the Lake Biwa that would turn now is look at the seasons. By all means, please experience this superb view.
琵琶湖、大空を近くに感じる高台に立地する「のぞみ住区」。四季折々で表情が移ろう琵琶湖を眺めながら送る贅沢な日常生活。是非この絶景をご体感下さい。
Local photos, including front road前面道路含む現地写真  Streets and spacious at the front road 6m. You can send a life that Lake Biwa of view is full of missing sense of openness.
前面道路6mでゆったりとした街並。琵琶湖の眺望が抜け開放感にあふれた生活が送れます。
Other Equipmentその他設備  Underfloor Storage, pantry, Set up a cupboard. Storage space around the water are many easy-to-use kitchen. Dishwasher, of course, Items to life more comfortable is the standard specification. It will produce a comfortable kitchen per floor heating also in the kitchen.
床下収納、パントリー、カップボードを設置。水周りの収納スペースが多く使いやすいキッチン。食器洗い機は勿論、暮らしをもっと快適にするアイテムが標準仕様です。キッチンにも床暖房がつき快適なキッチンを演出します。
 Washroom of "Keihan house" anyway widely storage capacity wealth. In addition to the wash basin of a size larger than condominium, Since storage space is large for us to clean the overflow return water around in something thing. (Sale completed dwelling unit)
“京阪の家”の洗面所はとにかく広くて収納力豊富。分譲マンションより大きなサイズの洗面台に加え、収納スペースが大きいので何かと物で溢れ返る水周りをすっきりさせてくれます。(分譲済住戸)
 Kept low the height of the stride of the tub, Safety considerations at the time of bathing. Also adopted a "thermos bath" with a thermal insulation structure. It will produce a pleasant bath time. Abundant chosen standard equipment taking into account the functionality and comfort. (Sale completed dwelling unit)
浴槽のまたぎの高さを低く抑え、入浴時の安全に配慮。また断熱構造付の「魔法びん浴槽」を採用。心地好いバスタイムを演出します。機能性と快適性を考慮して選ばれた標準設備も豊富。(分譲済住戸)
Aerial photograph航空写真  Biwako Rhodes Town that has nurtured a rich and generous living environment to take the time from 1974 of town Biraki until today. Large subdivision to represent the Keiji district. Lake is passed on to the next generation countries.
1974年の街びらきから今日までじっくり時間をかけて豊かでおおらかな住環境を育んできたびわ湖ローズタウン。京滋地区を代表する大型分譲地。次代に受け継がれる湖国。
Route map路線図  Ono Station 5-minute walk, Kyoto Station 24 minutes, Transportation convenience of the Osaka Station 54 minutes. Access to the city is happy to In the present JR1, Time of family and petting in a variety of leisure spot of leisure near his home. (Access view)
小野駅徒歩5分、京都駅24分、大阪駅54分の交通利便性。都会へのアクセスはJR1本でラクラク、余暇は自宅近くの多彩なレジャースポットで家族と触れ合いの時間。(交通アクセス図)
Construction ・ Construction method ・ specification構造・工法・仕様  floor ・ wall ・ The ceiling is made as a surface from the beginning, Shape Zukuru 2 × 4 construction method of the house so as to create a box (6 tetrahedra) with its surface. The surface structure to basic, It prevents the concentration on one point of the load by receiving the external force, such as earthquakes and typhoons in the entire surface distributed, Demonstrate the strength (conceptual diagram)
床・壁・天井がはじめから面としてつくられ、その面で箱(6面体)をつくるように家をカタチづくる2×4工法。面構造を基本にし、地震や台風などの外力を面全体で受け止めることで荷重の一点への集中を防ぎ分散し、強さを発揮(概念図)
 It adopted the appropriate reinforcement ironmongery in various parts of the structure, It is subjected to certain high winds measures. Hurricane Thailand (tilt prevention hardware) is firmly Tightened the rafters and the structural walls of the roof, Achieve a robust structure to protect the roof from strong winds.
構造の様々な部位に適切な補強金物類を採用し、確かな強風対策を施している。ハリケーンタイ(あおり防止金物)が屋根の垂木と構造壁をがっちり緊結し、強風から屋根を守る強固な構造を実現。
 If the building is subjected to a horizontal force by the earthquake, etc., In order to counteract the pulling force applied to the bearing wall, Basis or foundation and the pillars on the first floor, Upper and lower floors of the pillars, Mounted or in columns and beams, Significant reinforcement hardware to ensure the earthquake resistance.
建物が地震等により水平力を受けた場合に、耐力壁にかかる引抜き力に対抗するために、1階では基礎又は土台と柱、上下階の柱と柱、又は柱と梁に取り付ける、耐震性を確保する重要な補強金物。
 Adopt a "basic packing method" cross-section loss of the foundation does not occur. To ensure the flow of air moisture is discharged smoothly every corner of the floor, Create an ideal environment under the floor. Also, Since the foundation and the foundation does not directly contact, Can be expected is highly effective in terms of the foundation of the corrosion prevention.
基礎の断面欠損が生じない「基礎パッキン方式」を採用。床下の隅々まで湿気がスムーズに排出される空気の流れを確保して、理想的な床下環境をつくる。また、基礎と土台が直接接触しないので、土台の腐食防止の面からも高い効果が期待できる。
 2 × 4 construction method framework material and the like of the floors and walls to be a path of fire becomes a fire-stop material to shut off the flow of air, It will halt the fire. Also gypsum board, Because it is also covered by the heat insulating material, Double, To minimize damage in the event of fire as a triple fire protection function.
2×4工法は火の通り道となる床や壁の枠組材等がファイヤーストップ材となって空気の流れを遮断し、火を食い止めます。また石膏ボード、断熱材にも覆われているため、2重、3重の防火機能として火災時の被害を最小限に抑えます。
Park公園  Mano park in the 80m, "Nozomi Residential Quarters," until the 6-chome park. Every day filled with children in the Town, Rest assured that the parent of the eye can reach.
真野六丁目公園まで80m 「のぞみ住区」内の公園。毎日タウン内の子供達で溢れ、親の目が届くので安心。
Kindergarten ・ Nursery幼稚園・保育園  Nursery located in the 400m Town to the private Maya nursery school. Nursery school nearby, Safely in two-earner.
私立真野保育園まで400m タウン内にある保育園。保育園が近くにあり、共働きでも安心。
Primary school小学校  There are many children who go from 1600m "Nozomi Residential Quarters" to Otsu City Maya Elementary School. Rest assured that there is near.
大津市立真野小学校まで1600m 「のぞみ住区」から通う子供も多い。近くにあるので安心。
Junior high school中学校  Junior high school located in the 2000m Town to the Otsu Municipal Maya Junior High School. Many vibrant also the number of students.
大津市立真野中学校まで2000m タウン内にある中学校。生徒数も多く活気が溢れる。
Supermarketスーパー  Refrigerator of 160m "Nozomi Residential Quarters" to Barrow Mano shop. Cheap to buy fresh groceries, There is also popular from the town inside and outside.
バロー真野店まで160m 「のぞみ住区」の冷蔵庫。新鮮な食料品が安く買え、タウン内外からも人気がある。
Bank銀行  Branch of Shiga Bank in Shiga Lake Biwa Rhodes Town branch to 560m in Town. Financial institutions near convenient.
滋賀銀行びわ湖ローズタウン支店まで560m タウン内にある滋賀銀行の支店。金融機関が近く便利。
Otherその他  The core of Keihan group Keihan Electric Railway Co., Ltd.. "safety ・ Considered to continue to protect the peace of mind "is a mission as a railway system developers, "Keihan of the house" is designed.
京阪グループの中核を担う京阪電気鉄道株式会社。「安全・安心」を守り続けることは鉄道系デベロッパーとしての使命であると考え、“京阪の家”は設計されています。
 Keihan Electric Railway real estate showroom "Keihan Fast Reform Plaza". Remodeling business are also actively developing, We will continue to support our customers from the very beginning to live in the "All Keihan" system.
京阪電鉄不動産のショールーム「京阪ファーストリフォームプラザ」。リフォーム事業も積極的に展開しており、まさに「オール京阪」体制で住み始めてからもお客様をサポートし続けます。
 1968, Been developed ahead of the era became a national model of large-scale new town "litter Rose Town". Taking advantage of the comprehensive development force of the track record and the Railway Group unique, Expand the large-scale new town business in Kansai. Rich natural ring
1968年、時代に先駆けて開発され大規模ニュータウンの全国的なモデルとなった「くずはローズタウン」。その実績と電鉄グループならではの総合開発力を活かし、関西各地に大規模ニュータウン事業を展開。豊かな自然環
Floor plan間取り図  JR Kosei Line "Ono" 5-minute walk from the 400m Station to Station. Commuting time is often sit, Commute ・ Convenient to go to play.
JR湖西線「小野」駅まで400m 駅まで徒歩5分。通勤時間は座れることが多く、通勤・遊びに行くのにも便利。
 JR Kosei Line "Ono" 5-minute walk from the 400m Station to Station. Commuting time is often sit, Commute ・ Convenient to go to play.
JR湖西線「小野」駅まで400m 駅まで徒歩5分。通勤時間は座れることが多く、通勤・遊びに行くのにも便利。
 JR Kosei Line "Ono" 5-minute walk from the 400m Station to Station. Commuting time is often sit, Commute ・ Convenient to go to play.
JR湖西線「小野」駅まで400m 駅まで徒歩5分。通勤時間は座れることが多く、通勤・遊びに行くのにも便利。
 JR Kosei Line "Ono" 5-minute walk from the 400m Station to Station. Commuting time is often sit, Commute ・ Convenient to go to play.
JR湖西線「小野」駅まで400m 駅まで徒歩5分。通勤時間は座れることが多く、通勤・遊びに行くのにも便利。
 JR Kosei Line "Ono" 5-minute walk from the 400m Station to Station. Commuting time is often sit, Commute ・ Convenient to go to play.
JR湖西線「小野」駅まで400m 駅まで徒歩5分。通勤時間は座れることが多く、通勤・遊びに行くのにも便利。
 JR Kosei Line "Ono" 5-minute walk from the 400m Station to Station. Commuting time is often sit, Commute ・ Convenient to go to play.
JR湖西線「小野」駅まで400m 駅まで徒歩5分。通勤時間は座れることが多く、通勤・遊びに行くのにも便利。
 JR Kosei Line "Ono" 5-minute walk from the 400m Station to Station. Commuting time is often sit, Commute ・ Convenient to go to play.
JR湖西線「小野」駅まで400m 駅まで徒歩5分。通勤時間は座れることが多く、通勤・遊びに行くのにも便利。
 JR Kosei Line "Ono" 5-minute walk from the 400m Station to Station. Commuting time is often sit, Commute ・ Convenient to go to play.
JR湖西線「小野」駅まで400m 駅まで徒歩5分。通勤時間は座れることが多く、通勤・遊びに行くのにも便利。
Station駅  JR Kosei Line "Ono" 5-minute walk from the 400m Station to Station. Commuting time is often sit, Commute ・ Convenient to go to play.
JR湖西線「小野」駅まで400m 駅まで徒歩5分。通勤時間は座れることが多く、通勤・遊びに行くのにも便利。
Security equipment防犯設備  Adopted a crime prevention laminated glass on the indoor side glass. (part). Preventing an intermediate film that has been subjected between two glass scattering and penetration of glass fragments. Also high thermal insulation properties, Also reduce unpleasant condensation by an air layer. It will cut about 50 percent more than the sunlight of heat to the outdoor side glass, Adopt a thermal barrier Low-E glass to protect the indoor environment from the strong sunlight of summer. The winter exhibit thermal insulation effect of hard to escape the heat, Help to save energy costs by increasing the cooling and heating efficiency.
室内側ガラスには防犯合わせガラスを採用。(一部)。2枚のガラスの間に施された中間膜がガラス片の飛散や貫通を防止。また断熱性が高く、空気層により不快な結露も軽減。室外側ガラスには太陽光の熱を約50%以上カットし、夏の強い陽射しから室内環境を守る遮熱Low-Eガラスを採用。冬には熱を逃げにくくする断熱効果を発揮し、冷暖房効率を高めて光熱費の節約に役立つ。
 Local guide map
現地案内図
Access view交通アクセス図  Progress in the development of Kosai road, Significantly and up is also good access to the Kyoto direction Hokuriku district. (Access view)
湖西道路の整備が進み、京都方面北陸方面へのアクセスの良さも格段とアップ。(交通アクセス図)
The entire compartment Figure全体区画図  Big Town with views of the Lake Biwa, Biwako Rose Town "Nozomi Residential Quarters" The entire compartment Figure
琵琶湖を望むビッグタウン、びわ湖ローズタウン「のぞみ住区」 全体区画図
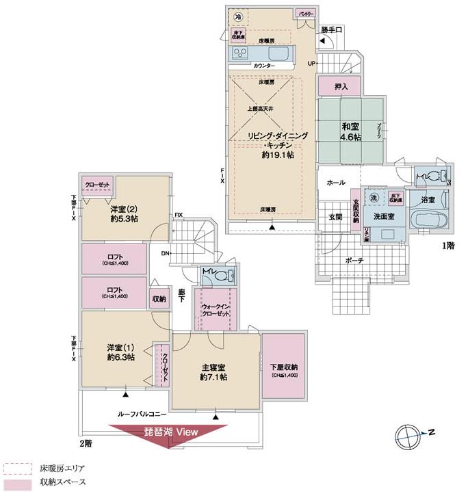
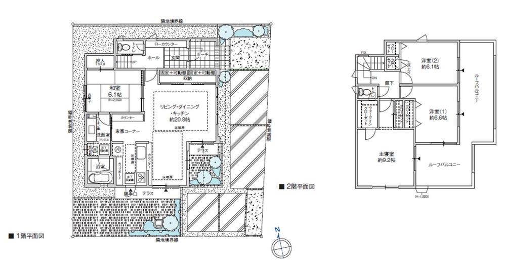
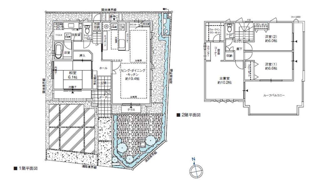
Floor plan間取り図  (26-6 No. land), Price 42,900,000 yen, 4LDK, Land area 161.09 sq m , Building area 114.27 sq m
(26-6号地)、価格4290万円、4LDK、土地面積161.09m2、建物面積114.27m2
 Floor plan
間取り図
Hospital病院  Pediatrics of 400m Station to Kanaya clinic ・ Physician. Convenient nearby hospital is also at the time of the emergency.
金谷クリニックまで400m 駅前の小児科・内科医。万が一の時にも病院が近くにあり便利。
 400m in front of the station dental clinic until Yoshida dental clinic. There are many people who visit from the town inside and outside.
吉田歯科医院まで400m 駅前の歯科医院。タウン内外から訪れる人が多い。
Location
|