New Homes » Kansai » Shiga Prefecture » Otsu


Otsu, Shiga Prefecture
JR Kosei Line "Omimaiko" walk 9 minutes
JR Omimaiko Station Walk 9 minutes! Is a prime location overlooking the Lake Biwa
◆ Bathroom with heating dryer ◆ Outdoor outlet standard equipment for EV ◆ Intercom with color monitor ◆ Entrance door of the electrical locking smart control keys mounted ◆ The kitchen is, Quiet sink ・ Artificial marble top plate ・ Water purification function with faucet ・ Full slide
Features pickup
Parking two Allowed / Immediate Available / lake ・ See the pond / System kitchen / Yang per good / All room storage / LDK15 tatami mats or more / Or more before road 6m / Japanese-style room / Face-to-face kitchen / Toilet 2 places / Southeast direction / South balcony / TV monitor interphone / Water filter / Flat terrain
Price
13.8 million yen
Floor plan
4LDK
Units sold
1 units
Total units
2 units
Land area
158.88 sq m
Building area
99.22 sq m
Driveway burden-road
Nothing, Southeast 6m width
Completion date
October 2013
Address
Otsu, Shiga Prefecture Minamikomatsu
Traffic
JR Kosei Line "Omimaiko" walk 9 minutes
Person in charge
Personnel Nakamura Kazutoyo Age: 50 Daigyokai experience: up to 10 years the city is, of course rural life, We are good at your suggestions of lifestyle in general. Vague request also will be cordial effort toward the realization of a dream.
Contact
TEL: 0800-809-9004 [Toll free] mobile phone ・ Also available from PHS
Caller ID is not notified
Please contact the "saw SUUMO (Sumo)"
If it does not lead, If the real estate company
Building coverage, floor area ratio
60% ・ 200%
Time residents
Immediate available
Land of the right form
Ownership
Structure and method of construction
Wooden 2-story
Use district
One dwelling
Overview and notices
Contact: Nakamura Kazutoyo, Facilities: Public Water Supply, This sewage, Individual LPG, Parking: car space
Company profile
<Mediation> governor of Osaka Prefecture (1) No. 056573 (Ltd.) Eco-living Yubinbango530-0012 Osaka-shi, Osaka, Kita-ku Shibata 2-8-10 honored building 2D


Local appearance photo

Local appearance photo. 2013 November shooting
2013 November shooting

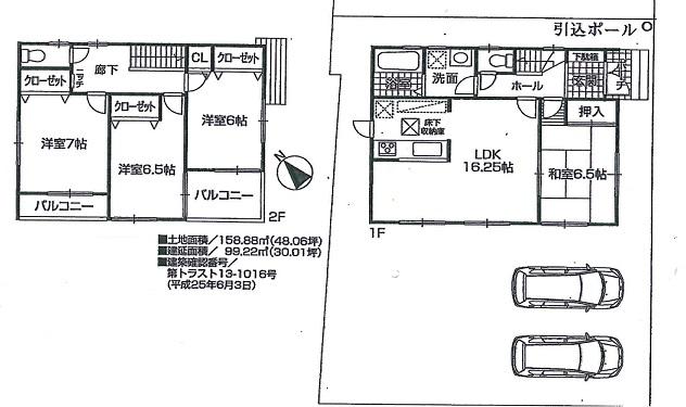
Floor plan

Floor plan. 13.8 million yen, 4LDK, Land area 158.88 sq m , Building area 99.22 sq m   ※ If the present situation and drawings are different, It will honor the current state
13.8 million yen, 4LDK, Land area 158.88 sq m , Building area 99.22 sq m ※ If the present situation and drawings are different, It will honor the current state

Living

Living. 2013 November shooting
2013 November shooting

Local appearance photo

Local appearance photo. 2013 November shooting
2013 November shooting

Bathroom

Bathroom. 2013 November shooting
2013 November shooting

Kitchen

Kitchen. 2013 November shooting
2013 November shooting

Non-living room

Non-living room. 2013 November shooting
2013 November shooting

Wash basin, toilet

Wash basin, toilet. 2013 November shooting
2013 November shooting

Toilet

Toilet. 2013 November shooting
2013 November shooting

Parking lot

Parking lot. 2013 November shooting
2013 November shooting

Primary school

Primary school. 877m to Otsu Municipal Komatsu Elementary School
877m to Otsu Municipal Komatsu Elementary School

Other introspection

Other introspection. 2013 November shooting
2013 November shooting

Sale already cityscape photo

Sale already cityscape photo. 2013 November shooting
2013 November shooting

View photos from the dwelling unit

View photos from the dwelling unit. 2013 November shooting
2013 November shooting

Other

Other. Road leading to Omimaiko Station
Road leading to Omimaiko Station

Non-living room

Non-living room. 2013 November shooting
2013 November shooting

Other introspection

Other introspection. 2013 November shooting
2013 November shooting

Non-living room

Non-living room. 2013 November shooting
2013 November shooting

Non-living room. 2013 November shooting
2013 November shooting



Location