2014January
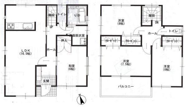
28.8 million yen, 4LDK, 101.02 sq m
New Homes » Kansai » Shiga Prefecture » Otsu
 
| | Otsu, Shiga Prefecture 滋賀県大津市 |
| JR Tokaido Line "Seta" bus 6 minutes Ogaya 6-chome NishiAyumi 5 minutes JR東海道本線「瀬田」バス6分大萱6丁目西歩5分 |
| ☆ Large-scale commercial facility is close to convenient! ☆大型商業施設近く便利です! |
Features pickup 特徴ピックアップ | | Facing south / Siemens south road / Or more before road 6m / 2-story / City gas 南向き /南側道路面す /前道6m以上 /2階建 /都市ガス | Price 価格 | | 28.8 million yen 2880万円 | Floor plan 間取り | | 4LDK 4LDK | Units sold 販売戸数 | | 1 units 1戸 | Land area 土地面積 | | 112.7 sq m (registration) 112.7m2(登記) | Building area 建物面積 | | 101.02 sq m 101.02m2 | Driveway burden-road 私道負担・道路 | | Nothing, South 6m width 無、南6m幅 | Completion date 完成時期(築年月) | | January 2014 2014年1月 | Address 住所 | | Otsu, Shiga Prefecture Ogaya 7 滋賀県大津市大萱7 | Traffic 交通 | | JR Tokaido Line "Seta" bus 6 minutes Ogaya 6-chome NishiAyumi 5 minutes JR東海道本線「瀬田」バス6分大萱6丁目西歩5分
| Related links 関連リンク | | [Related Sites of this company] 【この会社の関連サイト】 | Contact お問い合せ先 | | Century 21sublime real estate sales (Ltd.) TEL: 0800-603-4584 [Toll free] mobile phone ・ Also available from PHS Caller ID is not notified Please contact the "saw SUUMO (Sumo)" If it does not lead, If the real estate company センチュリー21sublime不動産販売(株)TEL:0800-603-4584【通話料無料】携帯電話・PHSからもご利用いただけます 発信者番号は通知されません 「SUUMO(スーモ)を見た」と問い合わせください つながらない方、不動産会社の方は
| Building coverage, floor area ratio 建ぺい率・容積率 | | 60% ・ 200% 60%・200% | Time residents 入居時期 | | Consultation 相談 | Land of the right form 土地の権利形態 | | Ownership 所有権 | Structure and method of construction 構造・工法 | | Wooden 2-story 木造2階建 | Use district 用途地域 | | One dwelling 1種住居 | Overview and notices その他概要・特記事項 | | Facilities: Public Water Supply, This sewage, City gas, Building confirmation number: 1 設備:公営水道、本下水、都市ガス、建築確認番号:1 | Company profile 会社概要 | | <Marketing alliance (agency)> Governor of Shiga Prefecture (1) No. 003327 Century 21sublime Real Estate Sales Co., Ltd. Yubinbango524-0044 Shiga Prefecture Moriyama Old High Town, 252 <販売提携(代理)>滋賀県知事(1)第003327号センチュリー21sublime不動産販売(株)〒524-0044 滋賀県守山市古高町252 |
 Local appearance photo
現地外観写真
Floor plan間取り図  28.8 million yen, 4LDK, Land area 112.7 sq m , Building area 101.02 sq m
2880万円、4LDK、土地面積112.7m2、建物面積101.02m2
 Other
その他
Location
|