New Homes » Kanto » Tokyo » Adachi-ku
 
| | Adachi-ku, Tokyo 東京都足立区 |
| Isesaki Tobu "Umejima" walk 14 minutes 東武伊勢崎線「梅島」歩14分 |
| ◆ New price ◆ There is a total of nine compartments south to the children's park, Per yang is a good thing. Mansion of Zentonushi bedrooms 6 quires more leeway ◆新価格◆全9区画南側に児童公園があり、陽当り良好な物件です。全棟主寝室6帖以上のゆとりの邸宅 |
| Umejima Station 14 mins ・ Living more than 15 pledge by bus 10 minutes popular counter kitchen to Kita-Senju Station ・ Storage space is also enhanced 3-storey ・ Dish washing dryer and lighting ・ Curtain rail ・ Also has been enhanced facilities, including a screen door. ++++++++ Per the completed property, You can immediately guidance. Please feel free to contact us. 梅島駅徒歩14分・北千住駅へバス10分人気のカウンターキッチンでリビングは15帖以上・収納スペースも充実3階建て・食器洗乾燥機や照明・カーテンレール・網戸など設備も充実しています。++++++++完成済み物件につき、すぐにご案内できます。お気軽にお問い合わせください。 |
Features pickup 特徴ピックアップ | | Facing south / System kitchen / Bathroom Dryer / Yang per good / Siemens south road / LDK15 tatami mats or more / Corner lot / Washbasin with shower / Face-to-face kitchen / Toilet 2 places / 2 or more sides balcony / Warm water washing toilet seat / Underfloor Storage / Dish washing dryer / Three-story or more / City gas / Fireworks viewing 南向き /システムキッチン /浴室乾燥機 /陽当り良好 /南側道路面す /LDK15畳以上 /角地 /シャワー付洗面台 /対面式キッチン /トイレ2ヶ所 /2面以上バルコニー /温水洗浄便座 /床下収納 /食器洗乾燥機 /3階建以上 /都市ガス /花火大会鑑賞 | Price 価格 | | 31.5 million yen ~ 33,800,000 yen 3150万円 ~ 3380万円 | Floor plan 間取り | | 4LDK 4LDK | Units sold 販売戸数 | | 6 units 6戸 | Total units 総戸数 | | 10 units 10戸 | Land area 土地面積 | | 66 sq m ~ 71.42 sq m 66m2 ~ 71.42m2 | Building area 建物面積 | | 93.56 sq m ~ 105.58 sq m 93.56m2 ~ 105.58m2 | Driveway burden-road 私道負担・道路 | | Road width: 5.2m 道路幅:5.2m | Completion date 完成時期(築年月) | | 2013 end of October 2013年10月末 | Address 住所 | | Adachi-ku, Tokyo Sekihara 1 東京都足立区関原1 | Traffic 交通 | | Isesaki Tobu "Umejima" walk 14 minutes Tokyo Metro Chiyoda Line "Senju" 10 minutes Nishiarai Bridge walk 2 minutes by bus Isesaki Tobu "Nishiarai" walk 22 minutes 東武伊勢崎線「梅島」歩14分 東京メトロ千代田線「北千住」バス10分西新井橋歩2分 東武伊勢崎線「西新井」歩22分
| Related links 関連リンク | | [Related Sites of this company] 【この会社の関連サイト】 | Person in charge 担当者より | | Responsible Shataku Kenseki Toyohiko started working in the real estate industry 23 years passed since, Son at the time 1-year-old now has become the other respectable member of society. Recently, also standing in the customer's point of view the future but we have made many ages of customers of about son, Or let me help you with house hunting 担当者宅建関 豊彦不動産業界で働き始めて23年が経ち、当時1歳の息子は今はもう立派な社会人になっております。最近では息子ぐらいの年代のお客様も多くなっておりますが今後もお客様の立場に立ち、家探しのお手伝いをさせて頂きま | Contact お問い合せ先 | | TEL: 0800-602-4422 [Toll free] mobile phone ・ Also available from PHS Caller ID is not notified Please contact the "saw SUUMO (Sumo)" If it does not lead, If the real estate company TEL:0800-602-4422【通話料無料】携帯電話・PHSからもご利用いただけます 発信者番号は通知されません 「SUUMO(スーモ)を見た」と問い合わせください つながらない方、不動産会社の方は
| Most price range 最多価格帯 | | 33 million yen (5 units) 3300万円台(5戸) | Building coverage, floor area ratio 建ぺい率・容積率 | | Kenpei rate: 80%, Volume ratio: 200% 建ペい率:80%、容積率:200% | Time residents 入居時期 | | Consultation 相談 | Land of the right form 土地の権利形態 | | Ownership 所有権 | Structure and method of construction 構造・工法 | | Wooden three-story 木造3階建 | Use district 用途地域 | | Semi-industrial 準工業 | Land category 地目 | | Residential land 宅地 | Other limitations その他制限事項 | | Regulations have by the Landscape Act 景観法による規制有 | Overview and notices その他概要・特記事項 | | Contact: Seki Toyohiko, Building confirmation number: 12UDI12S Ken 03486 ~ 担当者:関 豊彦、建築確認番号:12UDI12S建03486 ~ | Company profile 会社概要 | | <Mediation> Governor of Tokyo (1) Article 091 879 Issue new Nissho Ju販 Co. Yubinbango123-0863 Adachi-ku, Tokyo Yazaike 1-2-7 <仲介>東京都知事(1)第091879号新日商住販(株)〒123-0863 東京都足立区谷在家1-2-7 |
Local appearance photo現地外観写真  Local (March 2013) Shooting
現地(2013年3月)撮影
Kitchenキッチン  Local (March 2013) Shooting
現地(2013年3月)撮影
Bathroom浴室  Local (March 2013) Shooting
現地(2013年3月)撮影
Floor plan間取り図  (2), Price 33,500,000 yen, 4LDK, Land area 66.09 sq m , Building area 104.33 sq m
(2)、価格3350万円、4LDK、土地面積66.09m2、建物面積104.33m2
Rendering (appearance)完成予想図(外観)  Rendering
完成予想図
Livingリビング  (10 Building) same specification
(10号棟)同仕様
Junior high school中学校  1130m to Adachi Ward ninth junior high school
足立区立第九中学校まで1130m
 The entire compartment Figure
全体区画図
Other localその他現地  Local before park. It is beautifully landscaped park.
現地前公園。綺麗に整備された公園です。
Floor plan間取り図  (3), Price 33,500,000 yen, 4LDK, Land area 66.02 sq m , Building area 97.91 sq m
(3)、価格3350万円、4LDK、土地面積66.02m2、建物面積97.91m2
Primary school小学校  582m to Adachi Ward Motoki Elementary School
足立区立本木小学校まで582m
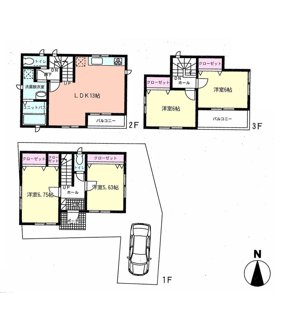
Floor plan間取り図  (4), Price 33,800,000 yen, 4LDK, Land area 67.06 sq m , Building area 93.56 sq m
(4)、価格3380万円、4LDK、土地面積67.06m2、建物面積93.56m2
Station駅  Tobu Isesaki Line Nishiarai Station to 1900m Nishiarai 23-minute walk to the Train Station
東武伊勢崎線 西新井駅まで1900m 西新井駅まで徒歩23分
Floor plan間取り図  (5), Price 33 million yen, 4LDK, Land area 66.03 sq m , Building area 95.63 sq m
(5)、価格3300万円、4LDK、土地面積66.03m2、建物面積95.63m2
Station駅  Tobu Isesaki Line Until Umejima Station 1120m Umejima Station to walk 14 minutes
東武伊勢崎線 梅島駅まで1120m 梅島駅まで徒歩14分
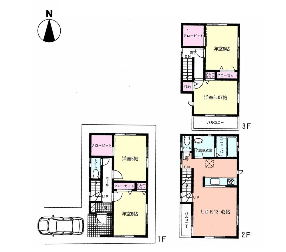
Floor plan間取り図  (6), Price 33,500,000 yen, 4LDK, Land area 66 sq m , Building area 105.58 sq m
(6)、価格3350万円、4LDK、土地面積66m2、建物面積105.58m2
Station駅  Toneri liner line 28-minute walk from the 2200m fan Ohashi Station to fan Ohashi Station
舎人ライナー線 扇大橋駅まで2200m 扇大橋駅まで徒歩28分
Floor plan間取り図  (7), Price 31.5 million yen, 4LDK, Land area 71.42 sq m , Building area 96.59 sq m
(7)、価格3150万円、4LDK、土地面積71.42m2、建物面積96.59m2
Location
|