New Homes » Kanto » Tokyo » Adachi-ku
 
| | Adachi-ku, Tokyo 東京都足立区 |
| Tsukuba Express "six-cho" walk 23 minutes つくばエクスプレス「六町」歩23分 |
| ◎ 2014 March new construction condominiums late scheduled for completion! ◎ built-in garage! 3-story 2LDK + storeroom! ◎ living in stairs! High open face-to-face kitchen! ◎平成26年3月下旬完成予定の新築分譲住宅!◎ビルトインガレージ付き!3階建て2LDK+納戸!◎リビングイン階段!ハイオープンの対面キッチン! |
| ◇ built-in garage of the car is also safe! ◇ There are housed in each room of the third floor, You can use clean room! ◇ living upstairs! Bright living room of the high open the face-to-face kitchen ◇ is the flower garden first elementary school and a 5-minute walk from the flower garden junior high school (390m). School children is also safe! Shopping facilities are also located in the neighborhood, Living environment is good! ※ Built-in garage area 14.80 sq m (4.46 square meters) contains the building area. ※ The time required by the walk has been calculated at 1 minute = 80m. ※ Please leave our founding 43 years in the local! Tobu Isesaki Line is Nitta Station east exit 5-minute walk! Porras birthplace of! Please visit us by all means! We look forward to inquiries from everyone! ◇愛車も安心のビルトインガレージ付き!◇3階の各居室には収納があり、室内すっきり使えます!◇リビング2階!ハイオープンの対面キッチンの明るいリビングです◇花畑第一小学校&花畑中学校まで徒歩5分(390m)です。お子様の通学も安心です!買物施設も周辺にあり、住環境良好です!※ビルトインガレージ面積14.80m2(4.46坪)は建物面積に含みます。※上記徒歩による所要時間は1分=80mで算出しています。※地元で創業43年の当社にお任せ下さい!東武伊勢崎線新田駅東口徒歩5分です!ポラス発祥の地!ぜひご来店ください!皆様からのお問い合わせをお待ちしております! |
Features pickup 特徴ピックアップ | | System kitchen / A quiet residential area / LDK15 tatami mats or more / Face-to-face kitchen / Bathroom 1 tsubo or more / 2 or more sides balcony / Zenshitsuminami direction / Ventilation good / All living room flooring / Built garage / Three-story or more / Living stairs / City gas / Storeroom / All rooms are two-sided lighting / Flat terrain システムキッチン /閑静な住宅地 /LDK15畳以上 /対面式キッチン /浴室1坪以上 /2面以上バルコニー /全室南向き /通風良好 /全居室フローリング /ビルトガレージ /3階建以上 /リビング階段 /都市ガス /納戸 /全室2面採光 /平坦地 | Price 価格 | | 26,800,000 yen 2680万円 | Floor plan 間取り | | 2LDK + S (storeroom) 2LDK+S(納戸) | Units sold 販売戸数 | | 1 units 1戸 | Total units 総戸数 | | 1 units 1戸 | Land area 土地面積 | | 71.16 sq m (21.52 tsubo) (Registration) 71.16m2(21.52坪)(登記) | Building area 建物面積 | | 106.08 sq m (32.08 tsubo) (Registration), Among the first floor garage 14.8 sq m 106.08m2(32.08坪)(登記)、うち1階車庫14.8m2 | Driveway burden-road 私道負担・道路 | | 19.07 sq m , West 4m width 19.07m2、西4m幅 | Completion date 完成時期(築年月) | | March 2014 2014年3月 | Address 住所 | | Adachi-ku, Tokyo Minamihanabatake 4 東京都足立区南花畑4 | Traffic 交通 | | Tsukuba Express "six-cho" walk 23 minutes Isesaki Tobu "Yatsuka" walk 36 minutes Isesaki Tobu "Takenotsuka" walk 39 minutes つくばエクスプレス「六町」歩23分 東武伊勢崎線「谷塚」歩36分 東武伊勢崎線「竹ノ塚」歩39分
| Related links 関連リンク | | [Related Sites of this company] 【この会社の関連サイト】 | Person in charge 担当者より | | Person in charge of real-estate and building Ichimura Akihisa Age: 30 Daigyokai Experience: 14 years [Birthplace] Kanagawa Prefecture [House] Saitama Prefecture Koshigaya [hobby] reading ・ Watching Sports ・ For lack of exercise eliminate, Recently I began cycling. 担当者宅建市村 明久年齢:30代業界経験:14年【出身地】神奈川県【住まい】埼玉県越谷市【趣味】読書・スポーツ観戦・運動不足解消のために、最近サイクリングを始めました。 | Contact お問い合せ先 | | TEL: 0800-603-0721 [Toll free] mobile phone ・ Also available from PHS Caller ID is not notified Please contact the "saw SUUMO (Sumo)" If it does not lead, If the real estate company TEL:0800-603-0721【通話料無料】携帯電話・PHSからもご利用いただけます 発信者番号は通知されません 「SUUMO(スーモ)を見た」と問い合わせください つながらない方、不動産会社の方は
| Building coverage, floor area ratio 建ぺい率・容積率 | | 60% ・ 200% 60%・200% | Time residents 入居時期 | | March 2014 schedule 2014年3月予定 | Land of the right form 土地の権利形態 | | Ownership 所有権 | Structure and method of construction 構造・工法 | | Wooden three-story 木造3階建 | Use district 用途地域 | | Two mid-high 2種中高 | Other limitations その他制限事項 | | Height district, Quasi-fire zones, Second kind altitude district Driveway area / 93.74 sq m × 1 / 12, 33.75 sq m × 1 / 3 高度地区、準防火地域、第2種高度地区 私道面積/93.74m2×1/12、33.75m2×1/3 | Overview and notices その他概要・特記事項 | | Contact: Ichimura Akihisa, Facilities: Public Water Supply, Individual septic tank, City gas, Building confirmation number: No. 13UDI2S Ken 01025, Parking: Garage 担当者:市村 明久、設備:公営水道、個別浄化槽、都市ガス、建築確認番号:第13UDI2S建01025号、駐車場:車庫 | Company profile 会社概要 | | <Mediation> Minister of Land, Infrastructure and Transport (11) No. 002401 (Corporation) Prefecture Building Lots and Buildings Transaction Business Association (Corporation) metropolitan area real estate Fair Trade Council member (Ltd.) a central residential Soka Information Center Yubinbango340-0052 Soka KimuAkira cho 329-1 <仲介>国土交通大臣(11)第002401号(公社)埼玉県宅地建物取引業協会会員 (公社)首都圏不動産公正取引協議会加盟(株)中央住宅草加情報センター〒340-0052 埼玉県草加市金明町329-1 |
Local appearance photo現地外観写真  Local (August 2013) shooting westward is positive per good! Heisei newly built single-family 26 years in late March will be completed! Surrounding environment favorable! Please feel free to contact us
現地(2013年8月)撮影西向き陽当り良好です!平成26年3月下旬完成予定の新築一戸建て!周辺環境良好!お気軽にお問合せ下さい
Local photos, including front road前面道路含む現地写真  Local (August 2013) Shooting
現地(2013年8月)撮影
 Local (August 2013) Shooting
現地(2013年8月)撮影
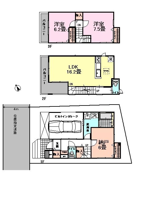
Floor plan間取り図  26,800,000 yen, 2LDK + S (storeroom), Land area 71.16 sq m , Building area 106.08 sq m
2680万円、2LDK+S(納戸)、土地面積71.16m2、建物面積106.08m2
Local photos, including front road前面道路含む現地写真  Local (August 2013) Shooting
現地(2013年8月)撮影
Junior high school中学校  390m to Adachi Ward flower garden junior high school
足立区立花畑中学校まで390m
Kindergarten ・ Nursery幼稚園・保育園  Flower garden Yachiyo 590m to kindergarten
花畑八千代幼稚園まで590m
 830m to the east, flower garden nursery
東花畑保育園まで830m
Hospital病院  Flower garden 790m until chome clinic
花畑一丁目クリニックまで790m
Location
|