New Homes » Kanto » Tokyo » Adachi-ku
 
| | Adachi-ku, Tokyo 東京都足立区 |
| Tobu Isesaki Line "Yatsuka" 8 minutes Soka Memorial Gymnasium walk 4 minutes by bus 東武伊勢崎線「谷塚」バス8分草加記念体育館歩4分 |
| 6m public road, Large 4LDK, Land about 34.7 square meters 6m公道、大型4LDK、土地約34.7坪 |
| Soon complete! Because in the land readjustment land, Living environment favorable. Flat 35S (interest rate Plan B) corresponding. 1 pyeong type of walking closet Yes もうすぐ完成!区画整理地内の為、住環境良好。フラット35S(金利Bプラン)対応。1坪タイプのウォーキングクロゼット有 |
Features pickup 特徴ピックアップ | | Corresponding to the flat-35S / Year Available / Parking two Allowed / 2 along the line more accessible / System kitchen / LDK15 tatami mats or more / Or more before road 6m / Face-to-face kitchen / Toilet 2 places / Bathroom 1 tsubo or more / 2-story / Warm water washing toilet seat / Mu front building / All living room flooring / Walk-in closet / All room 6 tatami mats or more / Flat terrain / Readjustment land within フラット35Sに対応 /年内入居可 /駐車2台可 /2沿線以上利用可 /システムキッチン /LDK15畳以上 /前道6m以上 /対面式キッチン /トイレ2ヶ所 /浴室1坪以上 /2階建 /温水洗浄便座 /前面棟無 /全居室フローリング /ウォークインクロゼット /全居室6畳以上 /平坦地 /区画整理地内 | Price 価格 | | 30,800,000 yen 3080万円 | Floor plan 間取り | | 4LDK 4LDK | Units sold 販売戸数 | | 1 units 1戸 | Total units 総戸数 | | 1 units 1戸 | Land area 土地面積 | | 115 sq m (measured) 115m2(実測) | Building area 建物面積 | | 105.57 sq m (measured) 105.57m2(実測) | Driveway burden-road 私道負担・道路 | | Nothing, Northeast 6m width (contact the road width 20.2m) 無、北東6m幅(接道幅20.2m) | Completion date 完成時期(築年月) | | December 2013 2013年12月 | Address 住所 | | Adachi-ku, Tokyo flower garden 7 東京都足立区花畑7 | Traffic 交通 | | Tobu Isesaki Line "Yatsuka" 8 minutes Soka Memorial Gymnasium walk 4 minutes by bus Tsukuba Express "six-cho" bus 14 minutes eagle shrine entrance walk 3 minutes 東武伊勢崎線「谷塚」バス8分草加記念体育館歩4分 つくばエクスプレス「六町」バス14分大鷲神社入り口歩3分
| Related links 関連リンク | | [Related Sites of this company] 【この会社の関連サイト】 | Person in charge 担当者より | | Person in charge of real-estate and building Higashiyama Takashi Age: 40 Daigyokai Experience: 13 was good to buy years and, We are looking to say get a nice house and together. It will kindly to correspond become only customers. 担当者宅建東山 孝司年齢:40代業界経験:13年購入して良かったと、言ってもらえる素敵な住宅をいっしょにお探し致します。お客様の身になって親切に対応させていただきます。 | Contact お問い合せ先 | | TEL: 0800-603-0565 [Toll free] mobile phone ・ Also available from PHS Caller ID is not notified Please contact the "saw SUUMO (Sumo)" If it does not lead, If the real estate company TEL:0800-603-0565【通話料無料】携帯電話・PHSからもご利用いただけます 発信者番号は通知されません 「SUUMO(スーモ)を見た」と問い合わせください つながらない方、不動産会社の方は
| Building coverage, floor area ratio 建ぺい率・容積率 | | 60% ・ 200% 60%・200% | Time residents 入居時期 | | Consultation 相談 | Land of the right form 土地の権利形態 | | Ownership 所有権 | Structure and method of construction 構造・工法 | | Wooden 2-story 木造2階建 | Use district 用途地域 | | One dwelling 1種住居 | Other limitations その他制限事項 | | Provisional replotting 仮換地 | Overview and notices その他概要・特記事項 | | Contact: Higashiyama Takashi, Facilities: Public Water Supply, This sewage, City gas, Building confirmation number: 01208, Parking: No 担当者:東山 孝司、設備:公営水道、本下水、都市ガス、建築確認番号:01208、駐車場:無 | Company profile 会社概要 | | <Marketing alliance (agency)> Minister of Land, Infrastructure and Transport (3) No. 006,185 (one company) National Housing Industry Association (Corporation) metropolitan area real estate Fair Trade Council member Asahi housing (stock) Ueno shop Yubinbango110-0005, Taito-ku, Tokyo Ueno 2-13-10 Asahi Seimei Building 6th floor <販売提携(代理)>国土交通大臣(3)第006185号(一社)全国住宅産業協会会員 (公社)首都圏不動産公正取引協議会加盟朝日住宅(株)上野店〒110-0005 東京都台東区上野2-13-10 朝日生命ビル6階 |
 Local appearance photo
現地外観写真
 Local photos, including front road
前面道路含む現地写真
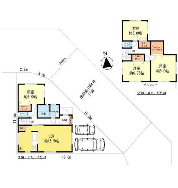
Floor plan間取り図  30,800,000 yen, 4LDK, Land area 115 sq m , Building area 105.57 sq m
3080万円、4LDK、土地面積115m2、建物面積105.57m2
 Living
リビング
 Bathroom
浴室
 Kitchen
キッチン
 Non-living room
リビング以外の居室
 Construction ・ Construction method ・ specification
構造・工法・仕様
 Balcony
バルコニー
Other Environmental Photoその他環境写真  Eagle Shrine 210m
大鷲神社まで210m
 View photos from the dwelling unit
住戸からの眺望写真
 Other local
その他現地
 Construction ・ Construction method ・ specification
構造・工法・仕様
Primary school小学校  Ouka to elementary school 618m
桜花小学校まで618m
Junior high school中学校  Hanahatakitachu 587m to school
花畑北中学校まで587m
Supermarketスーパー  Until Waizumato flower garden shop 980m
ワイズマート花畑店まで980m
Kindergarten ・ Nursery幼稚園・保育園  1000m to Adachi Ward flower garden nursery
足立区立花畑保育園まで1000m
Location
|