2013December
35,800,000 yen, 4LDK, 91.91 sq m
New Homes » Kanto » Tokyo » Adachi-ku
 
| | Adachi-ku, Tokyo 東京都足立区 |
| Tokyo Metro Chiyoda Line "Kitaayase" walk 20 minutes 東京メトロ千代田線「北綾瀬」歩20分 |
Price 価格 | | 35,800,000 yen 3580万円 | Floor plan 間取り | | 4LDK 4LDK | Units sold 販売戸数 | | 1 units 1戸 | Land area 土地面積 | | 89.5 sq m (measured) 89.5m2(実測) | Building area 建物面積 | | 91.91 sq m (measured) 91.91m2(実測) | Driveway burden-road 私道負担・道路 | | Nothing 無 | Completion date 完成時期(築年月) | | December 2013 2013年12月 | Address 住所 | | Adachi-ku, Tokyo Sano 2 東京都足立区佐野2 | Traffic 交通 | | Tokyo Metro Chiyoda Line "Kitaayase" walk 20 minutes 東京メトロ千代田線「北綾瀬」歩20分
| Person in charge 担当者より | | Rep Iizuka Takeshi 担当者飯塚 健之 | Contact お問い合せ先 | | Mitsui Rehouse Kita-Senju store Mitsui Fudosan Realty (Ltd.) TEL: 0120-996321 [Toll free] Please contact the "saw SUUMO (Sumo)" 三井のリハウス北千住店三井不動産リアルティ(株)TEL:0120-996321【通話料無料】「SUUMO(スーモ)を見た」と問い合わせください | Building coverage, floor area ratio 建ぺい率・容積率 | | 60% ・ 200% 60%・200% | Time residents 入居時期 | | Immediate available 即入居可 | Land of the right form 土地の権利形態 | | Ownership 所有権 | Structure and method of construction 構造・工法 | | Wooden 2-story 木造2階建 | Use district 用途地域 | | Two mid-high 2種中高 | Other limitations その他制限事項 | | Building confirmation number: No. HPA-13-04824-1 建築確認番号:第HPA-13-04824-1号 | Overview and notices その他概要・特記事項 | | Contact: Iizuka Takeshi, Parking: car space 担当者:飯塚 健之、駐車場:カースペース | Company profile 会社概要 | | <Mediation> Minister of Land, Infrastructure and Transport (13) No. 000777 (one company) Property distribution management Association (Corporation) metropolitan area real estate Fair Trade Council member Mitsui Rehouse Kita-Senju store Mitsui Fudosan Realty Co. Yubinbango120-0034 Adachi-ku, Tokyo Senju 2-4 Oh hippopotamus Twin Tower Building East second floor <仲介>国土交通大臣(13)第000777号(一社)不動産流通経営協会会員 (公社)首都圏不動産公正取引協議会加盟三井のリハウス北千住店三井不動産リアルティ(株)〒120-0034 東京都足立区千住2-4 オカバツインタワービルイースト2階 |
 Local appearance photo
現地外観写真
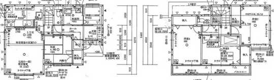
 Floor plan
間取り図
Location
|