New Homes » Kanto » Tokyo » Adachi-ku


Adachi-ku, Tokyo
Isesaki Tobu "Umejima" walk 11 minutes
November 23 (Sat) 24 (Sunday) will be local sales purchased meetings! ! All 15 buildings of large newly built subdivision. 3 Station Available. Car Space Available.
Fully equipped and comfortable space you want to select precisely because closet, etc. housed rich in the room to live a long time clean house necessary to family.
Features pickup
Immediate Available / 2 along the line more accessible / System kitchen / Bathroom Dryer / Siemens south road / Washbasin with shower / Face-to-face kitchen / 2-story / Otobasu / Warm water washing toilet seat / TV monitor interphone
Price
45,800,000 yen
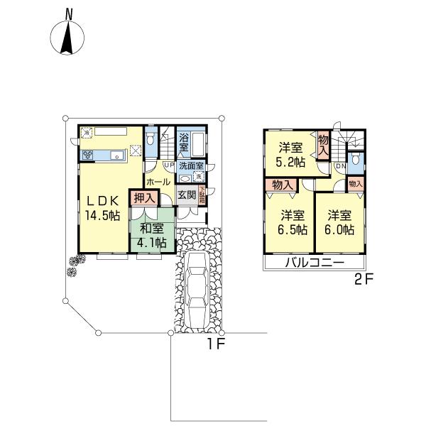
Floor plan
4LDK
Units sold
1 units
Land area
105.74 sq m (31.98 tsubo) (Registration)
Building area
87.76 sq m (26.54 tsubo) (Registration)
Driveway burden-road
Nothing, South 5m width (contact the road width 2.5m)
Completion date
February 2014
Address
Adachi-ku, Tokyo Umeda 7
Traffic
Isesaki Tobu "Umejima" walk 11 minutes
Isesaki Tobu "Nishiarai" walk 21 minutes
Isesaki Tobu "Gotannno" walk 13 minutes
Contact
Pitattohausu Nishiarai shop Starts Pitattohausu (Ltd.) TEL: 0800-603-4008 [Toll free] mobile phone ・ Also available from PHS
Caller ID is not notified
Please contact the "saw SUUMO (Sumo)"
If it does not lead, If the real estate company
Building coverage, floor area ratio
60% ・ 300%
Time residents
Immediate available
Land of the right form
Ownership
Structure and method of construction
Wooden 2-story
Use district
One dwelling
Other limitations
The third kind altitude district ・ Quasi-fire zones
Overview and notices
Facilities: Public Water Supply, Building confirmation number: No. 13UDI1C Ken 02195
Company profile
<Mediation> Minister of Land, Infrastructure and Transport (2) the first 007,129 No. Pitattohausu Nishiarai shop Starts Pitattohausu Co. Yubinbango123-0843 Adachi-ku, Tokyo Nishiaraisakae cho 2-3-3


Rendering (appearance)

Rendering (appearance). Local Photos
Local Photos

Other introspection

Other introspection. Local Photos
Local Photos

Garden
Garden

Floor plan

Floor plan. 45,800,000 yen, 4LDK, Land area 105.74 sq m , Building area 87.76 sq m floor plan
45,800,000 yen, 4LDK, Land area 105.74 sq m , Building area 87.76 sq m floor plan

Local photos, including front road

Local photos, including front road. Frontal road
Frontal road

Parking lot

Parking lot. Car space
Car space

Other introspection

Other introspection. South
South

Other local

Other local. Compartment figure
Compartment figure

Local photos, including front road

Local photos, including front road. Frontal road
Frontal road

Other local

Other local. Information map
Information map

Local photos, including front road

Local photos, including front road. Local entry
Local entry

Other local

Other local. Local Photos
Local Photos



Location