New Homes » Kanto » Tokyo » Adachi-ku
 
| | Adachi-ku, Tokyo 東京都足立区 |
| Isesaki Tobu "Umejima" walk 13 minutes 東武伊勢崎線「梅島」歩13分 |
| Where gather in everyone, After all, a wide place is good! It is the property to fulfill the wishes ☆ Since the guidance of 彡当 date is also possible, Feel free to contact us, please contact us, Until 0800-603-3161 みんなで集まる所は、やっぱり広いところが良い!その願いを叶える物件です☆彡当日のご案内も可能ですので、お気軽にお問い合わせ下さいお問い合わせは、0800-603-3161まで |
| □ All building 4LDK ・ Spacious LDK18 quires more ■ Conversation is lively during the cooking, Popular face-to-face kitchen □ Rare southeast corner lot ■ All room 6 quires more □ Flat 35S applied housing □全棟4LDK・広々LDK18帖以上■お料理中も会話が弾む、人気の対面キッチン□希少な東南角地■全居室6帖以上□フラット35S適用住宅 |
Features pickup 特徴ピックアップ | | Corresponding to the flat-35S / Pre-ground survey / Year Available / LDK20 tatami mats or more / Energy-saving water heaters / Facing south / System kitchen / Bathroom Dryer / Yang per good / All room storage / Flat to the station / Siemens south road / Corner lot / Shaping land / Washbasin with shower / Face-to-face kitchen / Toilet 2 places / Bathroom 1 tsubo or more / 2 or more sides balcony / South balcony / Double-glazing / Warm water washing toilet seat / Underfloor Storage / The window in the bathroom / High-function toilet / Ventilation good / All living room flooring / All room 6 tatami mats or more / Water filter / Three-story or more / Living stairs / City gas / All rooms are two-sided lighting / Flat terrain / Development subdivision in フラット35Sに対応 /地盤調査済 /年内入居可 /LDK20畳以上 /省エネ給湯器 /南向き /システムキッチン /浴室乾燥機 /陽当り良好 /全居室収納 /駅まで平坦 /南側道路面す /角地 /整形地 /シャワー付洗面台 /対面式キッチン /トイレ2ヶ所 /浴室1坪以上 /2面以上バルコニー /南面バルコニー /複層ガラス /温水洗浄便座 /床下収納 /浴室に窓 /高機能トイレ /通風良好 /全居室フローリング /全居室6畳以上 /浄水器 /3階建以上 /リビング階段 /都市ガス /全室2面採光 /平坦地 /開発分譲地内 | Event information イベント情報 | | Local guide Board (Please be sure to ask in advance) schedule / Every Saturday, Sunday and public holidays time / 10:00 ~ 18:00 local guide meeting held in! ! Actual building You can see the soil ・ Day not only, Weekday and night of guidance, On the day of because the guidance is also possible, Please not hesitate to contact us ☆ 彡 inquiry, Free to dial "0800-603-3161" Sale land Takenotsuka shop! We look forward to 現地案内会(事前に必ずお問い合わせください)日程/毎週土日祝時間/10:00 ~ 18:00現地案内会開催中!!実際の建物がご覧いただけます土・日だけでなく、平日や夜間のご案内、当日のご案内も可能ですので、お気軽にお問い合わせ下さいませ☆彡お問い合わせは、フリーダイヤル『0800-603-3161』セールランド竹ノ塚店まで!お待ちしてます | Price 価格 | | 32,800,000 yen ~ 39,800,000 yen 3280万円 ~ 3980万円 | Floor plan 間取り | | 3LDK + S (storeroom) ・ 4LDK 3LDK+S(納戸)・4LDK | Units sold 販売戸数 | | 10 units 10戸 | Total units 総戸数 | | 11 units 11戸 | Land area 土地面積 | | 70.1 sq m ~ 88.3 sq m 70.1m2 ~ 88.3m2 | Building area 建物面積 | | 103.26 sq m ~ 119.07 sq m 103.26m2 ~ 119.07m2 | Driveway burden-road 私道負担・道路 | | Road width: 4.5m ・ 5.73m, Asphaltic pavement 道路幅:4.5m・5.73m、アスファルト舗装 | Completion date 完成時期(築年月) | | 2013 end of November 2013年11月末 | Address 住所 | | Adachi-ku, Tokyo Umeda 4-38-4 東京都足立区梅田4-38-4 | Traffic 交通 | | Isesaki Tobu "Umejima" walk 13 minutes Isesaki Tobu "Nishiarai" walk 20 minutes Isesaki Tobu "Gotannno" walk 23 minutes 東武伊勢崎線「梅島」歩13分 東武伊勢崎線「西新井」歩20分 東武伊勢崎線「五反野」歩23分
| Related links 関連リンク | | [Related Sites of this company] 【この会社の関連サイト】 | Person in charge 担当者より | | Rep Kawa嵜 IsamuShin Age: 20 Daigyokai Experience: 3 years inborn speed, The brightness of the motto listening to improve your experience, I would like to help in the important shopping! 担当者川嵜 勇真年齢:20代業界経験:3年持ち前のスピード、明るさをモットーにお客様のお声を聞き、大切なお買い物のお手伝いをさせて頂きたいと思います! | Contact お問い合せ先 | | TEL: 0800-603-3161 [Toll free] mobile phone ・ Also available from PHS Caller ID is not notified Please contact the "saw SUUMO (Sumo)" If it does not lead, If the real estate company TEL:0800-603-3161【通話料無料】携帯電話・PHSからもご利用いただけます 発信者番号は通知されません 「SUUMO(スーモ)を見た」と問い合わせください つながらない方、不動産会社の方は
| Most price range 最多価格帯 | | 36 million yen ・ 37 million yen (each 3 units) 3600万円台・3700万円台(各3戸) | Building coverage, floor area ratio 建ぺい率・容積率 | | Kenpei rate: 60%, Volume ratio: 200% 建ペい率:60%、容積率:200% | Time residents 入居時期 | | 1 month after the contract 契約後1ヶ月 | Land of the right form 土地の権利形態 | | Ownership 所有権 | Structure and method of construction 構造・工法 | | Wooden three-story (framing method) 木造3階建(軸組工法) | Use district 用途地域 | | Industry 工業 | Land category 地目 | | Residential land 宅地 | Other limitations その他制限事項 | | Height district, Quasi-fire zones 高度地区、準防火地域 | Overview and notices その他概要・特記事項 | | Contact: Kawa嵜 IsamuShin , Building confirmation number: No. 13UDI2S Ken 00279 担当者:川嵜 勇真 、建築確認番号:第13UDI2S建00279号 | Company profile 会社概要 | | <Mediation> Governor of Tokyo (3) The 080,734 No. Century 21 (Ltd.) Sale land Takenotsuka store sales Section 1 Yubinbango121-0064 Adachi-ku, Tokyo Hokima 1-7-3 <仲介>東京都知事(3)第080734号センチュリー21(株)セールランド竹ノ塚店営業一課〒121-0064 東京都足立区保木間1-7-3 |
Floor plan間取り図  (11 Building), Price 37,800,000 yen, 4LDK, Land area 70.1 sq m , Building area 115.42 sq m
(11号棟)、価格3780万円、4LDK、土地面積70.1m2、建物面積115.42m2
Shopping centreショッピングセンター  Shopping Town ・ 602m to the Caribbean Umejima shop
ショッピングタウン・カリブ梅島店まで602m
Floor plan間取り図  (10 Building), Price 38,800,000 yen, 4LDK, Land area 70.11 sq m , Building area 115.42 sq m
(10号棟)、価格3880万円、4LDK、土地面積70.11m2、建物面積115.42m2
Supermarketスーパー  600m until Tsurukame Umejima shop
つるかめ梅島店まで600m
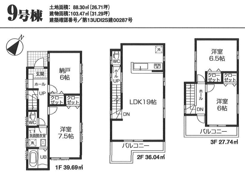
Floor plan間取り図  (9 Building), Price 37,800,000 yen, 3LDK+S, Land area 88.3 sq m , Building area 103.47 sq m
(9号棟)、価格3780万円、3LDK+S、土地面積88.3m2、建物面積103.47m2
Supermarketスーパー  Cousin Sekihara to the store 933m
カズン関原店まで933m
Floor plan間取り図  (8 Building), Price 36,800,000 yen, 4LDK, Land area 80.09 sq m , Building area 114.21 sq m
(8号棟)、価格3680万円、4LDK、土地面積80.09m2、建物面積114.21m2
Junior high school中学校  617m to Adachi Ward ninth junior high school
足立区立第九中学校まで617m
Floor plan間取り図  (6 Building), Price 36,800,000 yen, 4LDK, Land area 71.09 sq m , Building area 110.55 sq m
(6号棟)、価格3680万円、4LDK、土地面積71.09m2、建物面積110.55m2
Primary school小学校  164m to Adachi Ward Umejima second elementary school
足立区立梅島第二小学校まで164m
Floor plan間取り図  (5 Building), Price 32,800,000 yen, 4LDK, Land area 72.28 sq m , Building area 103.26 sq m
(5号棟)、価格3280万円、4LDK、土地面積72.28m2、建物面積103.26m2
Kindergarten ・ Nursery幼稚園・保育園  482m to Umeda nursery
梅田保育園まで482m
Floor plan間取り図  (4 Building), Price 34,800,000 yen, 4LDK, Land area 71.1 sq m , Building area 103.66 sq m
(4号棟)、価格3480万円、4LDK、土地面積71.1m2、建物面積103.66m2
Kindergarten ・ Nursery幼稚園・保育園  Shintonarikan to nursery school 652m
親隣館保育園まで652m
Floor plan間取り図  (3 Building), Price 39,800,000 yen, 4LDK, Land area 71.09 sq m , Building area 117.85 sq m
(3号棟)、価格3980万円、4LDK、土地面積71.09m2、建物面積117.85m2
Hospital病院  867m until the medical corporation Foundation Umeda hospital
医療法人財団梅田病院まで867m
Floor plan間取り図  (Building 2), Price 37,800,000 yen, 4LDK, Land area 71.08 sq m , Building area 119.07 sq m
(2号棟)、価格3780万円、4LDK、土地面積71.08m2、建物面積119.07m2
 (1 Building), Price 36,800,000 yen, 4LDK, Land area 71.1 sq m , Building area 114.2 sq m
(1号棟)、価格3680万円、4LDK、土地面積71.1m2、建物面積114.2m2
Construction ・ Construction method ・ specification構造・工法・仕様  Specification
仕様書
 Specification
仕様書
 Specification
仕様書
 Specification
仕様書
Location
|