|
|
Adachi-ku, Tokyo
東京都足立区
|
|
Tokyo Metro Chiyoda Line "Kitaayase" walk 13 minutes
東京メトロ千代田線「北綾瀬」歩13分
|
|
Bright house wrapped in plenty of sunlight
たっぷりの陽光に包まれる明るい住まい
|
|
Walk daily at Oyata Memorial Park ・ You can jogging.
大谷田記念公園で毎日の散歩・ジョギングができます。
|
Features pickup 特徴ピックアップ | | System kitchen / All room storage / Shaping land / Washbasin with shower / Barrier-free / Toilet 2 places / 2-story / All living room flooring / City gas システムキッチン /全居室収納 /整形地 /シャワー付洗面台 /バリアフリー /トイレ2ヶ所 /2階建 /全居室フローリング /都市ガス |
Price 価格 | | 29 million yen 2900万円 |
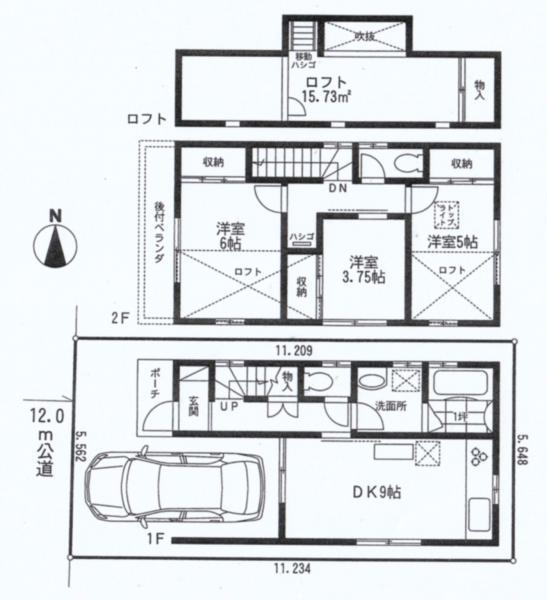
Floor plan 間取り | | 3DK 3DK |
Units sold 販売戸数 | | 1 units 1戸 |
Land area 土地面積 | | 63.07 sq m (measured) 63.07m2(実測) |
Building area 建物面積 | | 77.83 sq m (measured) 77.83m2(実測) |
Driveway burden-road 私道負担・道路 | | Nothing, West 12m width 無、西12m幅 |
Completion date 完成時期(築年月) | | November 2013 2013年11月 |
Address 住所 | | Adachi-ku, Tokyo Oyata 5 東京都足立区大谷田5 |
Traffic 交通 | | Tokyo Metro Chiyoda Line "Kitaayase" walk 13 minutes 東京メトロ千代田線「北綾瀬」歩13分
|
Related links 関連リンク | | [Related Sites of this company] 【この会社の関連サイト】 |
Person in charge 担当者より | | The person in charge Tanaka Known Age: 40 Daigyokai experience: we will introduce the house to fulfill a dream together with the 25-year customer. 担当者田中 公知年齢:40代業界経験:25年お客様と一緒になって夢を叶える住宅をご紹介させて頂きます。 |
Contact お問い合せ先 | | TEL: 0800-603-0565 [Toll free] mobile phone ・ Also available from PHS Caller ID is not notified Please contact the "saw SUUMO (Sumo)" If it does not lead, If the real estate company TEL:0800-603-0565【通話料無料】携帯電話・PHSからもご利用いただけます 発信者番号は通知されません 「SUUMO(スーモ)を見た」と問い合わせください つながらない方、不動産会社の方は
|
Building coverage, floor area ratio 建ぺい率・容積率 | | 60% ・ 200% 60%・200% |
Time residents 入居時期 | | Consultation 相談 |
Land of the right form 土地の権利形態 | | Ownership 所有権 |
Structure and method of construction 構造・工法 | | Wooden 2-story 木造2階建 |
Use district 用途地域 | | Two dwellings 2種住居 |
Overview and notices その他概要・特記事項 | | Contact: Tanaka Known, Facilities: Public Water Supply, This sewage, City gas, Building confirmation number: 1313070038, Parking: Garage 担当者:田中 公知、設備:公営水道、本下水、都市ガス、建築確認番号:1313070038、駐車場:車庫 |
Company profile 会社概要 | | <Mediation> Minister of Land, Infrastructure and Transport (3) No. 006,185 (one company) National Housing Industry Association (Corporation) metropolitan area real estate Fair Trade Council member Asahi housing (stock) Ueno shop Yubinbango110-0005, Taito-ku, Tokyo Ueno 2-13-10 Asahi Seimei Building 6th floor <仲介>国土交通大臣(3)第006185号(一社)全国住宅産業協会会員 (公社)首都圏不動産公正取引協議会加盟朝日住宅(株)上野店〒110-0005 東京都台東区上野2-13-10 朝日生命ビル6階 |