New Homes » Kanto » Tokyo » Adachi-ku
 
| | Adachi-ku, Tokyo 東京都足立区 |
| Isesaki Tobu "Umejima" walk 11 minutes 東武伊勢崎線「梅島」歩11分 |
| small ・ Convenient good location to go to school in the nearby junior high school! Only to customers who call or document request, Get the Kuokado of 10,000 yen for those of every month 10 pairs 小・中学校近くで通学に便利な好立地!お電話または資料請求頂いたお客様に限り、毎月10組の方に10,000円のクオカードをプレゼント |
| ・ Every day of your laundry happy comfortable in the south balcony ・ Face-to-face kitchen can feel your family close ・ Consideration construction housing performance with evaluation also in terms of security in the TV monitor interphone, Design house performance with evaluation, Pre-ground survey, Vibration Control ・ Seismic isolation ・ Earthquake resistant, Parking two Allowed, LDK18 tatami mats or more, Energy-saving water heaters, Super close, It is close to the city, Facing south, System kitchen, All room storage, LDK15 tatami mats or moreese-style room, Washbasin with shower, Barrier-free, Toilet 2 places, 2-story, Double-glazing, Zenshitsuminami direction, Otobasu, Warm water washing toilet seat, Underfloor Storage, The window in the bathroom, All living room flooring, Three-story or more, Living stairs, City gas, All rooms are two-sided lighting ・南バルコニーで毎日のお洗濯もラクラク快適・ご家族を近くに感じられる対面キッチン・TVモニタ付インタホンでセキュリティ面にも配慮建設住宅性能評価付、設計住宅性能評価付、地盤調査済、制震・免震・耐震、駐車2台可、LDK18畳以上、省エネ給湯器、スーパーが近い、市街地が近い、南向き、システムキッチン、全居室収納、LDK15畳以上、和室、シャワー付洗面台、バリアフリー、トイレ2ヶ所、2階建、複層ガラス、全室南向き、オートバス、温水洗浄便座、床下収納、浴室に窓、全居室フローリング、3階建以上、リビング階段、都市ガス、全室2面採光 |
Features pickup 特徴ピックアップ | | Construction housing performance with evaluation / Design house performance with evaluation / Pre-ground survey / Vibration Control ・ Seismic isolation ・ Earthquake resistant / Parking two Allowed / LDK18 tatami mats or more / Energy-saving water heaters / Super close / It is close to the city / Facing south / System kitchen / All room storage / LDK15 tatami mats or more / Japanese-style room / Washbasin with shower / Face-to-face kitchen / Barrier-free / Toilet 2 places / 2-story / South balcony / Double-glazing / Zenshitsuminami direction / Otobasu / Warm water washing toilet seat / Underfloor Storage / The window in the bathroom / TV monitor interphone / All living room flooring / Three-story or more / Living stairs / City gas / All rooms are two-sided lighting 建設住宅性能評価付 /設計住宅性能評価付 /地盤調査済 /制震・免震・耐震 /駐車2台可 /LDK18畳以上 /省エネ給湯器 /スーパーが近い /市街地が近い /南向き /システムキッチン /全居室収納 /LDK15畳以上 /和室 /シャワー付洗面台 /対面式キッチン /バリアフリー /トイレ2ヶ所 /2階建 /南面バルコニー /複層ガラス /全室南向き /オートバス /温水洗浄便座 /床下収納 /浴室に窓 /TVモニタ付インターホン /全居室フローリング /3階建以上 /リビング階段 /都市ガス /全室2面採光 | Price 価格 | | 33,800,000 yen ~ 45,800,000 yen 3380万円 ~ 4580万円 | Floor plan 間取り | | 4LDK 4LDK | Units sold 販売戸数 | | 12 units 12戸 | Total units 総戸数 | | 15 units 15戸 | Land area 土地面積 | | 72.09 sq m ~ 120.65 sq m (21.80 tsubo ~ 36.49 tsubo) (Registration) 72.09m2 ~ 120.65m2(21.80坪 ~ 36.49坪)(登記) | Building area 建物面積 | | 85.91 sq m ~ 98.32 sq m (25.98 tsubo ~ 29.74 tsubo) (Registration) 85.91m2 ~ 98.32m2(25.98坪 ~ 29.74坪)(登記) | Driveway burden-road 私道負担・道路 | | Road width: 5m, Driveway equity 535 sq m × 3455 / 150000 250.16 sq m × 1 / 15 道路幅:5m、私道持分535m2×3455/150000 250.16m2×1/15 | Completion date 完成時期(築年月) | | February 2014 late schedule 2014年2月下旬予定 | Address 住所 | | Adachi-ku, Tokyo Umeda 7 東京都足立区梅田7 | Traffic 交通 | | Isesaki Tobu "Umejima" walk 11 minutes Isesaki Tobu "Gotannno" walk 14 minutes Isesaki Tobu "Nishiarai" walk 22 minutes 東武伊勢崎線「梅島」歩11分 東武伊勢崎線「五反野」歩14分 東武伊勢崎線「西新井」歩22分
| Related links 関連リンク | | [Related Sites of this company] 【この会社の関連サイト】 | Person in charge 担当者より | | Person in charge of Otaki Looking for 30 Daiyume of My Home: Masato age! Customers will do everything so that the highest of the house is found that matches the desired !!! 担当者大滝 正人年齢:30代夢のマイホーム探し!お客様の希望に合った最高の家が見つかるように全力を尽くします!!! | Contact お問い合せ先 | | TEL: 0800-603-8258 [Toll free] mobile phone ・ Also available from PHS Caller ID is not notified Please contact the "saw SUUMO (Sumo)" If it does not lead, If the real estate company TEL:0800-603-8258【通話料無料】携帯電話・PHSからもご利用いただけます 発信者番号は通知されません 「SUUMO(スーモ)を見た」と問い合わせください つながらない方、不動産会社の方は
| Most price range 最多価格帯 | | 36 million yen (3 units) 3600万円台(3戸) | Building coverage, floor area ratio 建ぺい率・容積率 | | Kenpei rate: 60%, Volume ratio: 200% 建ペい率:60%、容積率:200% | Time residents 入居時期 | | February 2014 late schedule 2014年2月下旬予定 | Land of the right form 土地の権利形態 | | Ownership 所有権 | Structure and method of construction 構造・工法 | | Wooden 2-story, Wooden three-story 木造2階建、木造3階建 | Use district 用途地域 | | One dwelling 1種住居 | Other limitations その他制限事項 | | Height district, Quasi-fire zones, Unused land equity 2.73 sq m × 1 / 15 Garbage yard equity 2.84 sq m × 1 / 15 On the day you can visit. 高度地区、準防火地域、未利用地持分2.73m2×1/15 ゴミ置場持分2.84m2×1/15 当日見学可能です。 | Overview and notices その他概要・特記事項 | | Contact: Otaki Masato, Building confirmation number: 13UDI1C Ken 02192 other 担当者:大滝 正人、建築確認番号:13UDI1C建02192他 | Company profile 会社概要 | | <Mediation> Saitama Governor (2) the first 021,116 No. Century 21 (Ltd.) House Navi Yubinbango333-0866 Kawaguchi City Prefecture, Oaza turf 4438-1 <仲介>埼玉県知事(2)第021116号センチュリー21(株)ハウスナビ〒333-0866 埼玉県川口市大字芝4438-1 |
Otherその他  This property is possible guidance on the day. 9 o'clock ~ If you can contact us at 23 o'clock, Please contact "0800-603-8258" so you can visit. It is also possible to ask to pick up your designated station. Also of interest you after work!
こちらの物件は当日ご案内が可能です。9時 ~ 23時までご連絡いただければ、見学できますのでお気軽に『0800-603-8258』までお問い合わせください。ご指定の駅までお迎えに伺うことも可能です。お仕事帰りにもどうぞ!
Local appearance photo現地外観写真  Local (12 May 2013) Shooting I Building
現地(2013年12月)撮影 I号棟
Local photos, including front road前面道路含む現地写真  Local (12 May 2013) Shooting
現地(2013年12月)撮影
Otherその他  Tobu Isesaki Line Umejima Station
東武伊勢崎線 梅島駅
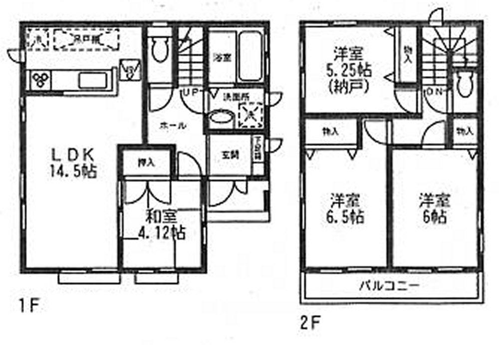
Floor plan間取り図  (E Building), Price 34,800,000 yen, 4LDK, Land area 102.34 sq m , Building area 86.11 sq m
(E号棟)、価格3480万円、4LDK、土地面積102.34m2、建物面積86.11m2
Local appearance photo現地外観写真  Local (12 May 2013) Shooting J ・ K Building
現地(2013年12月)撮影 J・K号棟
Shopping centreショッピングセンター  Shopping Town ・ 448m to the Caribbean Umejima shop
ショッピングタウン・カリブ梅島店まで448m
 The entire compartment Figure
全体区画図
Floor plan間取り図  (K Building), Price 33,800,000 yen, 4LDK, Land area 94.53 sq m , Building area 92.32 sq m
(K号棟)、価格3380万円、4LDK、土地面積94.53m2、建物面積92.32m2
Local appearance photo現地外観写真  Local (11 May 2013) Shooting A Building
現地(2013年11月)撮影 A号棟
Supermarketスーパー  Tsurukame until Umejima shop 421m
つるかめ梅島店まで421m
Floor plan間取り図  (A Building), Price 37,800,000 yen, 4LDK, Land area 120.65 sq m , Building area 90.67 sq m
(A号棟)、価格3780万円、4LDK、土地面積120.65m2、建物面積90.67m2
Local appearance photo現地外観写真  Local (11 May 2013) Shooting C Building
現地(2013年11月)撮影 C号棟
Supermarketスーパー  683m to Cocos Nakamura Umejima shop
ココスナカムラ梅島店まで683m
Floor plan間取り図  (C Building), Price 36,800,000 yen, 4LDK, Land area 108.61 sq m , Building area 86.11 sq m
(C号棟)、価格3680万円、4LDK、土地面積108.61m2、建物面積86.11m2
Local appearance photo現地外観写真  Local (12 May 2013) Shooting E Building
現地(2013年12月)撮影 E号棟
Junior high school中学校  503m to Adachi Ward ninth junior high school
足立区立第九中学校まで503m
Floor plan間取り図  (F Building), Price 45,800,000 yen, 4LDK, Land area 105.74 sq m , Building area 87.76 sq m
(F号棟)、価格4580万円、4LDK、土地面積105.74m2、建物面積87.76m2
Local appearance photo現地外観写真  Local (11 May 2013) Shooting F Building
現地(2013年11月)撮影 F号棟
Primary school小学校  680m to Adachi Ward Umejima Elementary School
足立区立梅島小学校まで680m
Floor plan間取り図  (G Building), Price 43,800,000 yen, 4LDK, Land area 93.09 sq m , Building area 95.64 sq m
(G号棟)、価格4380万円、4LDK、土地面積93.09m2、建物面積95.64m2
Local appearance photo現地外観写真  Local (11 May 2013) Shooting G Building
現地(2013年11月)撮影 G号棟
Presentプレゼント  Only to customers who call or document request, Get the Kuokado of 10,000 yen for those of every month 10 pairs ☆ Double chance! "I will present the Kuokado of 2,000 yen to all customers who fill out to visit us We questionnaire with your family" (I will consider it as a one-time set-like)
お電話または資料請求頂いたお客様に限り、毎月10組の方に10,000円のクオカードをプレゼント☆ダブルチャンス!「ご家族でご来店頂きアンケートにご記入頂いたお客様全員に2,000円のクオカードをプレゼント致します」(1組様1回限りとさせて頂きます)
Location
|