New Homes » Kanto » Tokyo » Adachi-ku


Adachi-ku, Tokyo
Tokyo Metro Chiyoda Line "Kitaayase" walk 17 minutes
Roof balcony in the south road surface, It is newly built Ichinohe Ken dated attic storage.
"Adachi-ku Shinmeiminami 2-chome ・ Shinmei area Popular as a detached "quiet residential area new construction. Also it will be able to use six-cho station from the opening of the Tsukuba Express, The new housing will have seen many. The Shinmeiminami 2-chome, Sunny with a roof balcony facing south road, New construction Ichinohe Ken dated attic storage has emerged. The building is currently under construction, Color select if possible now. We also accept various options. Since the jewels model room, Please feel free to contact us.
Features pickup
Parking two Allowed / Facing south / System kitchen / Bathroom Dryer / Yang per good / Siemens south road / A quiet residential area / Shaping land / Washbasin with shower / Face-to-face kitchen / Barrier-free / Toilet 2 places / Bathroom 1 tsubo or more / 2-story / South balcony / Double-glazing / Warm water washing toilet seat / loft / The window in the bathroom / TV monitor interphone / High-function toilet / Ventilation good / All living room flooring / Dish washing dryer / Water filter / Living stairs / City gas / Storeroom / roof balcony
Event information
Local sales meetings (please visitors to direct local) schedule / Every Saturday, Sunday and public holidays time / 11:00 ~ 17:00 You can see weekdays.
Price
33,500,000 yen
Floor plan
2LDK + 2S (storeroom)
Units sold
1 units
Total units
1 units
Land area
85.99 sq m
Building area
89.21 sq m
Driveway burden-road
Nothing, South 5m width (contact the road width 7m)
Completion date
March 2014
Address
Adachi-ku, Tokyo Shinmeiminami 2
Traffic
Tokyo Metro Chiyoda Line "Kitaayase" walk 17 minutes
Tsukuba Express "six-cho" walk 18 minutes
Tsukuba Express "Aoi" walk 30 minutes
Related links
[Related Sites of this company]
Contact
Kadoi real estate (Ltd.) TEL: 0800-603-0656 [Toll free] mobile phone ・ Also available from PHS
Caller ID is not notified
Please contact the "saw SUUMO (Sumo)"
If it does not lead, If the real estate company
Building coverage, floor area ratio
Fifty percent ・ 150%
Time residents
March 2014 schedule
Land of the right form
Ownership
Structure and method of construction
Wooden 2-story
Use district
One low-rise
Overview and notices
Facilities: Public Water Supply, This sewage, City gas, Building confirmation number: No. KS113-3710-00048, Parking: car space
Company profile
<Marketing alliance (agency)> Governor of Tokyo (12) No. 026517 (Corporation) Tokyo Metropolitan Government Building Lots and Buildings Transaction Business Association (Corporation) metropolitan area real estate Fair Trade Council member Kadoi Real Estate Co., Ltd. Yubinbango120-0006 Adachi-ku, Tokyo Yanaka 4-9-21


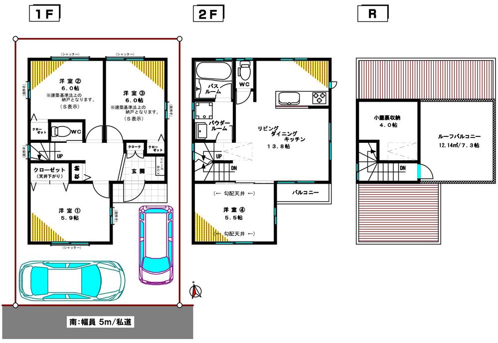
Floor plan

Floor plan. 33,500,000 yen, 2LDK + 2S (storeroom), Land area 85.99 sq m , Building area 89.21 sq m roof balcony, It is with attic storage.
33,500,000 yen, 2LDK + 2S (storeroom), Land area 85.99 sq m , Building area 89.21 sq m roof balcony, It is with attic storage.

Compartment figure

Compartment figure. 33,500,000 yen, 2LDK + 2S (storeroom), Land area 85.99 sq m , It is shaping areas of building area 89.21 sq m 26 tsubo.
33,500,000 yen, 2LDK + 2S (storeroom), Land area 85.99 sq m , It is shaping areas of building area 89.21 sq m 26 tsubo.

Rendering (appearance)
Rendering (appearance)

Supermarket

Supermarket. Ebisuya to shops 360m
Ebisuya to shops 360m

Supermarket. 715m until Benny Super Sano shop
715m until Benny Super Sano shop

Convenience store

Convenience store. 507m until Lawson Adachi Shinmeiminami shop
507m until Lawson Adachi Shinmeiminami shop

Convenience store. 570m to Seven-Eleven Adachi Tatsunuma 1-chome
570m to Seven-Eleven Adachi Tatsunuma 1-chome

Home center

Home center. (Ltd.) to Shimachu Co., Ltd. Oyata shop 1466m
(Ltd.) to Shimachu Co., Ltd. Oyata shop 1466m

Park

park. 1299m until the iris marsh park
1299m until the iris marsh park



Location