2013November
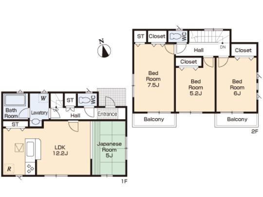
33,800,000 yen, 4LDK, 84.24 sq m
New Homes » Kanto » Tokyo » Akishima
 
| | Tokyo Akishima 東京都昭島市 |
| JR Ome Line "Nishitachikawa" walk 17 minutes JR青梅線「西立川」歩17分 |
Price 価格 | | 33,800,000 yen 3380万円 | Floor plan 間取り | | 4LDK 4LDK | Units sold 販売戸数 | | 1 units 1戸 | Land area 土地面積 | | 100.02 sq m (measured) 100.02m2(実測) | Building area 建物面積 | | 84.24 sq m (measured) 84.24m2(実測) | Driveway burden-road 私道負担・道路 | | 2.63 sq m 2.63m2 | Completion date 完成時期(築年月) | | November 2013 2013年11月 | Address 住所 | | Tokyo Akishima Goji-cho, 2 東京都昭島市郷地町2 | Traffic 交通 | | JR Ome Line "Nishitachikawa" walk 17 minutes JR青梅線「西立川」歩17分
| Contact お問い合せ先 | | TEL: 0800-805-6265 [Toll free] mobile phone ・ Also available from PHS Caller ID is not notified Please contact the "saw SUUMO (Sumo)" If it does not lead, If the real estate company TEL:0800-805-6265【通話料無料】携帯電話・PHSからもご利用いただけます 発信者番号は通知されません 「SUUMO(スーモ)を見た」と問い合わせください つながらない方、不動産会社の方は
| Building coverage, floor area ratio 建ぺい率・容積率 | | 40% ・ 80% 40%・80% | Time residents 入居時期 | | Consultation 相談 | Land of the right form 土地の権利形態 | | Ownership 所有権 | Structure and method of construction 構造・工法 | | Wooden 2-story 木造2階建 | Use district 用途地域 | | One low-rise, Quasi-residence 1種低層、準住居 | Overview and notices その他概要・特記事項 | | Facilities: Public Water Supply, This sewage, Individual LPG, Building confirmation number: No. 01326, Parking: No 設備:公営水道、本下水、個別LPG、建築確認番号:01326号、駐車場:無 | Company profile 会社概要 | | <Mediation> Minister of Land, Infrastructure and Transport (3) The 006,183 No. housing information Museum Akishima store Seongnam Construction (Ltd.) Yubinbango196-0022 Tokyo Akishima Nakagami-cho 3-7-1 <仲介>国土交通大臣(3)第006183号住宅情報館 昭島店城南建設(株)〒196-0022 東京都昭島市中神町3-7-1 |
Local appearance photo現地外観写真  Local Photos
現地写真
Otherその他  Local Photos
現地写真
 Frontal road
前面道路
Floor plan間取り図  33,800,000 yen, 4LDK, Land area 100.02 sq m , Building area 84.24 sq m floor plan
3380万円、4LDK、土地面積100.02m2、建物面積84.24m2 間取り図
Primary school小学校  Force up to elementary school 850m Force Elementary School 11 minutes' walk (about 850m)
共成小学校まで850m 共成小学校 徒歩11分(約850m)
Otherその他  Local Photos
現地写真
Junior high school中学校  1200m Fukushima junior high school until junior high school in Fukushima A 15-minute walk (about 1200m)
福島中学校まで1200m 福島中学校 徒歩15分(約1200m)
Otherその他  Frontal road
前面道路
Location
|