|
|
Tokyo Akishima
東京都昭島市
|
|
JR Ome Line "Akishima" walk 19 minutes
JR青梅線「昭島」歩19分
|
|
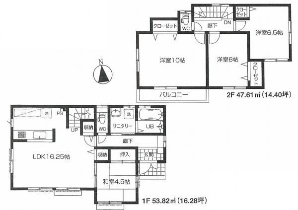
land, Spacious space and all the living room facing south LDK16.25 pledge that there is room in the building area both 30 square meters or more ☆ Each room storage space Please feel free to contact us
土地、建物面積共に30坪以上でゆとりがあります全居室南向きLDK16.25帖と広々空間☆各居室収納スペースお気軽にお問い合わせください
|
|
Parking is with two Allowed bathroom dryer
駐車場2台可浴室乾燥機付きです
|
Features pickup 特徴ピックアップ | | Corresponding to the flat-35S / Parking two Allowed / Facing south / System kitchen / Bathroom Dryer / All room storage / Siemens south road / LDK15 tatami mats or more / Japanese-style room / Washbasin with shower / Face-to-face kitchen / Barrier-free / Toilet 2 places / 2-story / South balcony / Double-glazing / Zenshitsuminami direction / The window in the bathroom / TV monitor interphone フラット35Sに対応 /駐車2台可 /南向き /システムキッチン /浴室乾燥機 /全居室収納 /南側道路面す /LDK15畳以上 /和室 /シャワー付洗面台 /対面式キッチン /バリアフリー /トイレ2ヶ所 /2階建 /南面バルコニー /複層ガラス /全室南向き /浴室に窓 /TVモニタ付インターホン |
Price 価格 | | 29,800,000 yen 2980万円 |
Floor plan 間取り | | 4LDK 4LDK |
Units sold 販売戸数 | | 1 units 1戸 |
Total units 総戸数 | | 5 units 5戸 |
Land area 土地面積 | | 150.8 sq m (registration) 150.8m2(登記) |
Building area 建物面積 | | 101.43 sq m (registration) 101.43m2(登記) |
Driveway burden-road 私道負担・道路 | | Nothing, South 4m width 無、南4m幅 |
Completion date 完成時期(築年月) | | August 2013 2013年8月 |
Address 住所 | | Tokyo Akishima Okami-cho 1 東京都昭島市大神町1 |
Traffic 交通 | | JR Ome Line "Akishima" walk 19 minutes JR青梅線「昭島」歩19分
|
Related links 関連リンク | | [Related Sites of this company] 【この会社の関連サイト】 |
Person in charge 担当者より | | The person in charge Fujiwara Masahide Age: work hard and my best to be according to the request of the 30's customers! 担当者藤原 政秀年齢:30代お客様のご要望に応じられるよう精一杯頑張ります! |
Contact お問い合せ先 | | TEL: 0800-603-0559 [Toll free] mobile phone ・ Also available from PHS Caller ID is not notified Please contact the "saw SUUMO (Sumo)" If it does not lead, If the real estate company TEL:0800-603-0559【通話料無料】携帯電話・PHSからもご利用いただけます 発信者番号は通知されません 「SUUMO(スーモ)を見た」と問い合わせください つながらない方、不動産会社の方は
|
Building coverage, floor area ratio 建ぺい率・容積率 | | 40% ・ 80% 40%・80% |
Time residents 入居時期 | | Consultation 相談 |
Land of the right form 土地の権利形態 | | Ownership 所有権 |
Structure and method of construction 構造・工法 | | Wooden 2-story 木造2階建 |
Use district 用途地域 | | One low-rise 1種低層 |
Other limitations その他制限事項 | | Height district 高度地区 |
Overview and notices その他概要・特記事項 | | Contact: Fujiwara Masahide, Facilities: Public Water Supply, This sewage, Building confirmation number: 13-344, Parking: car space 担当者:藤原 政秀、設備:公営水道、本下水、建築確認番号:13-344、駐車場:カースペース |
Company profile 会社概要 | | <Mediation> Minister of Land, Infrastructure and Transport (3) No. 006,185 (one company) National Housing Industry Association (Corporation) metropolitan area real estate Fair Trade Council member Asahi Housing Corporation Tachikawa shop Yubinbango190-0012 Tokyo Tachikawa Akebonocho 2-9-1 Kikuya Kawaguchi building the fourth floor <仲介>国土交通大臣(3)第006185号(一社)全国住宅産業協会会員 (公社)首都圏不動産公正取引協議会加盟朝日住宅(株)立川店〒190-0012 東京都立川市曙町2-9-1 菊屋川口ビル4階 |