New Homes » Kanto » Tokyo » Akishima


Tokyo Akishima
JR Ome Line "Higashinaka God" walk 5 minutes
System kitchen, Bathroom Dryer, All room storage, LDK15 tatami mats or more, Mist sauna, TV with bathroom, Dish washing dryer, Water filter, Three-story or more
Features pickup
System kitchen / Bathroom Dryer / All room storage / LDK15 tatami mats or more / Mist sauna / TV with bathroom / Dish washing dryer / Water filter / Three-story or more
Price
33,800,000 yen
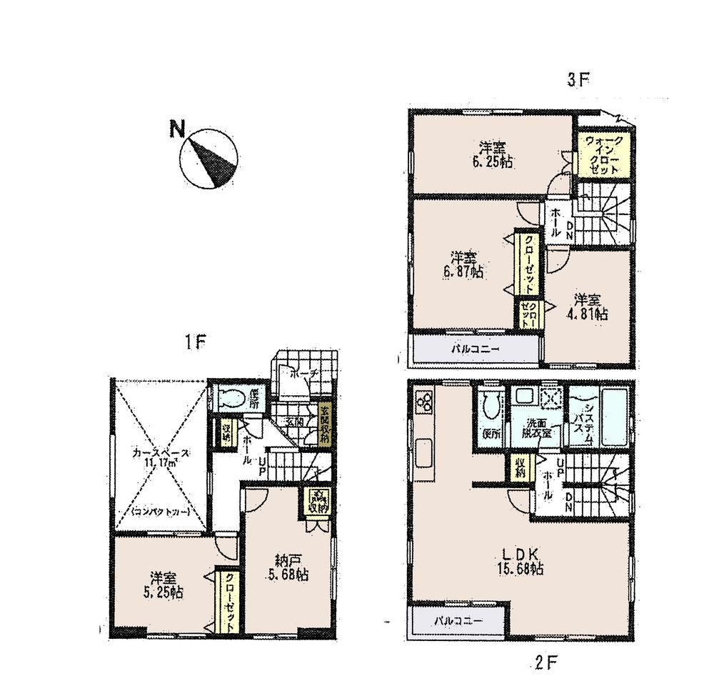
Floor plan
4LDK + S (storeroom)
Units sold
1 units
Land area
61.38 sq m (registration)
Building area
118.4 sq m (measured), Among the first floor garage 11.17 sq m
Driveway burden-road
Nothing, North 2.8m width
Completion date
March 2014
Address
Tokyo Akishima Tamagawa-cho 3
Traffic
JR Ome Line "Higashinaka God" walk 5 minutes
JR Ome Line "Nakagami" walk 7 minutes
JR Ome Line "Nishitachikawa" walk 18 minutes
Related links
[Related Sites of this company]
Person in charge
Rep Ikezoe Kazuya Age: 30 Daigyokai Experience: 6 years My Home Purchase is the largest shopping in life. You are the anxiety precisely because such shopping. Always consider what is changing in how smile the anxiety, I would like to think that it was good to buy.
Contact
TEL: 0800-603-0392 [Toll free] mobile phone ・ Also available from PHS
Caller ID is not notified
Please contact the "saw SUUMO (Sumo)"
If it does not lead, If the real estate company
Building coverage, floor area ratio
80% ・ 300%
Time residents
March 2014 schedule
Land of the right form
Ownership
Structure and method of construction
Wooden three-story
Use district
Residential
Overview and notices
Contact: Ikezoe Kazuya, Building confirmation number: the H25 building certification No. KBI04526, Parking: Garage
Company profile
<Mediation> Governor of Tokyo (3) No. 082486 (Corporation) Tokyo Metropolitan Government Building Lots and Buildings Transaction Business Association (Corporation) metropolitan area real estate Fair Trade Council member THR housing distribution group (Ltd.) JAPAN housing center Tachikawa Yubinbango190-0022 Tokyo Tachikawa Nishikicho 2-6-2 Stella NK building first floor


Floor plan

Floor plan. 33,800,000 yen, 4LDK + S (storeroom), Land area 61.38 sq m , Building area 118.4 sq m floor plan
33,800,000 yen, 4LDK + S (storeroom), Land area 61.38 sq m , Building area 118.4 sq m floor plan

Supermarket

Supermarket. Marufuji Higashinaka until God shop 238m
Marufuji Higashinaka until God shop 238m

Junior high school

Junior high school. Akishima 725m to stand Showa junior high school
Akishima 725m to stand Showa junior high school

Primary school

Primary school. Akishima Municipal Fujimi 690m up the hill elementary school
Akishima Municipal Fujimi 690m up the hill elementary school



Location