New Homes » Kanto » Tokyo » Akishima
 
| | Tokyo Akishima 東京都昭島市 |
| JR Ome Line "Higashinaka God" walk 11 minutes JR青梅線「東中神」歩11分 |
| Higashinaka God, Nishitachikawa and 2 stations use can be a good location! 3-story new construction condominiums of Zento south road contact road. Good is per yang. 東中神、西立川と2駅利用出来る好立地!全棟南側道路接道の3階建て新築分譲住宅。陽当り良好です。 |
| ■ From face-to-face kitchen it is easy to be over voice, Likely conversation even during cooking momentum. ■ Planning the whole building 16 quires more of LDK on the second floor. It is bright space. ■ Bathroom with heating dryer (unit bus). It is warm even in winter. ■ Storage capacity of satisfaction in the walk-in closet. ■ I am happy there is a housed in all rooms. Super close, Facing south, Bathroom Dryer, Yang per good, All room storage, Flat to the station, Siemens south road, LDK15 tatami mats or more, Or more before road 6m, Shaping land, Washbasin with shower, Face-to-face kitchen, Toilet 2 places, Bathroom 1 tsubo or more, 2 or more sides balcony, Warm water washing toilet seat, Underfloor Storage, The window in the bathroom, Dish washing dryer, Walk-in closet, Three-story or more, City gas ■対面式キッチンからはは声もかけ易く、料理中も会話が弾みそう。■全棟16帖以上のLDKを2階にプランニング。明るい空間です。■暖房乾燥機付の浴室(ユニットバス)。冬でもポカポカです。■ウォークインクローゼットで満足の収納力。■全室に収納があるのがうれしいですね。スーパーが近い、南向き、浴室乾燥機、陽当り良好、全居室収納、駅まで平坦、南側道路面す、LDK15畳以上、前道6m以上、整形地、シャワー付洗面台、対面式キッチン、トイレ2ヶ所、浴室1坪以上、2面以上バルコニー、温水洗浄便座、床下収納、浴室に窓、食器洗乾燥機、ウォークインクロゼット、3階建以上、都市ガス |
Features pickup 特徴ピックアップ | | Super close / Facing south / Bathroom Dryer / Yang per good / All room storage / Flat to the station / Siemens south road / LDK15 tatami mats or more / Or more before road 6m / Shaping land / Washbasin with shower / Face-to-face kitchen / Toilet 2 places / Bathroom 1 tsubo or more / 2 or more sides balcony / Warm water washing toilet seat / Underfloor Storage / The window in the bathroom / Dish washing dryer / Walk-in closet / Three-story or more / City gas スーパーが近い /南向き /浴室乾燥機 /陽当り良好 /全居室収納 /駅まで平坦 /南側道路面す /LDK15畳以上 /前道6m以上 /整形地 /シャワー付洗面台 /対面式キッチン /トイレ2ヶ所 /浴室1坪以上 /2面以上バルコニー /温水洗浄便座 /床下収納 /浴室に窓 /食器洗乾燥機 /ウォークインクロゼット /3階建以上 /都市ガス | Price 価格 | | 32,800,000 yen 3280万円 | Floor plan 間取り | | 3LDK 3LDK | Units sold 販売戸数 | | 2 units 2戸 | Total units 総戸数 | | 2 units 2戸 | Land area 土地面積 | | 72.17 sq m ~ 72.18 sq m 72.17m2 ~ 72.18m2 | Building area 建物面積 | | 102.24 sq m ~ 103.27 sq m 102.24m2 ~ 103.27m2 | Completion date 完成時期(築年月) | | 2014 end of June schedule 2014年6月末予定 | Address 住所 | | Tokyo Akishima Azumacho 5 東京都昭島市東町5 | Traffic 交通 | | JR Ome Line "Higashinaka God" walk 11 minutes JR Ome Line "Nishitachikawa" walk 15 minutes JR青梅線「東中神」歩11分 JR青梅線「西立川」歩15分
| Related links 関連リンク | | [Related Sites of this company] 【この会社の関連サイト】 | Person in charge 担当者より | | Person in charge of real-estate and building Sato In 19 years the real estate business devoted 19 year career and knowledge: Hiroyuki Age: 40 Daigyokai experience, We will do our best best for your smile. Not please put you voice feel free to. 担当者宅建佐藤 寛之年齢:40代業界経験:19年不動産営業一筋19年のキャリアと知識で、お客様の笑顔のために最善最良を尽くします。お気軽にお声掛け下さいませ。 | Contact お問い合せ先 | | TEL: 0800-603-2021 [Toll free] mobile phone ・ Also available from PHS Caller ID is not notified Please contact the "saw SUUMO (Sumo)" If it does not lead, If the real estate company TEL:0800-603-2021【通話料無料】携帯電話・PHSからもご利用いただけます 発信者番号は通知されません 「SUUMO(スーモ)を見た」と問い合わせください つながらない方、不動産会社の方は
| Building coverage, floor area ratio 建ぺい率・容積率 | | Building coverage: 60%, Volume ratio: 200% 建ぺい率:60%、容積率:200% | Time residents 入居時期 | | July 2014 mid-scheduled 2014年7月中旬予定 | Land of the right form 土地の権利形態 | | Ownership 所有権 | Use district 用途地域 | | One middle and high 1種中高 | Land category 地目 | | Residential land 宅地 | Other limitations その他制限事項 | | Regulations have by the Aviation Law, Height district, Quasi-fire zones, Some city planning road 航空法による規制有、高度地区、準防火地域、一部都市計画道路 | Overview and notices その他概要・特記事項 | | Contact: Sato Hiroyuki, Building confirmation number: 01845 No. other 担当者:佐藤 寛之、建築確認番号:01845号他 | Company profile 会社概要 | | <Mediation> Governor of Tokyo (8) No. 046478 (Corporation) Tokyo Metropolitan Government Building Lots and Buildings Transaction Business Association (Corporation) metropolitan area real estate Fair Trade Council member Century 21 Haijima Housing Industry Co., Ltd. Akishima Ekimae Yubinbango196-0015 Tokyo Akishima Showacho 2-3-7 Crest Omi building first floor <仲介>東京都知事(8)第046478号(公社)東京都宅地建物取引業協会会員 (公社)首都圏不動産公正取引協議会加盟センチュリー21拝島住宅産業(株)昭島駅前店〒196-0015 東京都昭島市昭和町2-3-7 クレスト近江ビル1階 |
Rendering (appearance)完成予想図(外観)  Rendering Such as cars and planting, Not included in the price. Please put in advance consent.
完成予想図 車や植栽などは、価格に含まれておりません。予めご承知おきください。
Rendering (introspection)完成予想図(内観)  (1 Building) living Rendering Furniture, etc., Not included in the price. Please put in advance consent.
(1号棟)リビング完成予想図 家具などは、価格に含まれておりません。予めご承知おきください。
 (Building 2) living Rendering Furniture, etc., Not included in the price. Please put in advance consent.
(2号棟)リビング完成予想図 家具などは、価格に含まれておりません。予めご承知おきください。
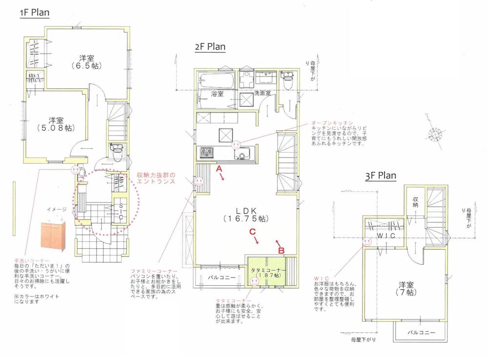
Floor plan間取り図  (1 Building), Price 32,800,000 yen, 3LDK, Land area 72.17 sq m , Building area 102.24 sq m
(1号棟)、価格3280万円、3LDK、土地面積72.17m2、建物面積102.24m2
Construction ・ Construction method ・ specification構造・工法・仕様  The burden on the building received at such as earthquakes and typhoons, Since the cover in the entire building as well as pillars, Provides excellent durability.
地震や台風などで受ける建物への負担を、柱だけでなく建物全体でカバーするので、優れた耐久性を発揮します。
Other Equipmentその他設備  The photograph is an image.
写真はイメージです。
Primary school小学校  Tamagawa until elementary school 550m
玉川小学校まで550m
Floor plan間取り図  (Building 2), Price 32,800,000 yen, 3LDK, Land area 72.18 sq m , Building area 103.27 sq m
(2号棟)、価格3280万円、3LDK、土地面積72.18m2、建物面積103.27m2
Construction ・ Construction method ・ specification構造・工法・仕様  The outer peripheral surface foundation, The outer wall surface, It has adopted a comfortably cover outside Zhang insulation construction method the roof.
外周面基礎、外壁面、屋根をすっぽり覆う外張断熱工法を採用しています。
Other Equipmentその他設備  The photograph is an image. It is different from the actual color.
写真はイメージです。実際のお色とは異なります。
Supermarketスーパー  Until Marufuji 690m
マルフジまで690m
Construction ・ Construction method ・ specification構造・工法・仕様  Strong solid foundation. Try the excellent Yazukuri in durability and strength, It has adopted a basic width of 150mm.
強固なベタ基礎。耐久性や強度に優れた家作りを心がけ、150mmの基礎幅を採用しています。
Other Equipmentその他設備  The photograph is an image.
写真はイメージです。
Convenience storeコンビニ  160m to Seven-Eleven
セブンイレブンまで160m
Construction ・ Construction method ・ specification構造・工法・仕様  If you leave always dried the foundation house keeps the durability.
土台を常に乾燥させておくと家は耐久性を保ちます。
Other Equipmentその他設備  Unit bus with a bathroom dryer.
浴室乾燥機付のユニットバス。
Park公園  200m to Showa Park
昭和公園まで200m
Cooling and heating ・ Air conditioning冷暖房・空調設備  The photograph is an image.
写真はイメージです。
Park公園  1400m until the Showa Memorial Park
昭和記念公園まで1400m
Other Equipmentその他設備  The photograph is an image.
写真はイメージです。
Location
|