|
|
Arakawa-ku, Tokyo
東京都荒川区
|
|
Tokyo Metro Chiyoda Line "Machiya" walk 10 minutes
東京メトロ千代田線「町屋」歩10分
|
Features pickup 特徴ピックアップ | | Corresponding to the flat-35S / 2 along the line more accessible / Super close / Facing south / Bathroom Dryer / All room storage / Shaping land / Face-to-face kitchen / Toilet 2 places / TV monitor interphone / All living room flooring / Three-story or more / City gas / roof balcony / Flat terrain / rooftop フラット35Sに対応 /2沿線以上利用可 /スーパーが近い /南向き /浴室乾燥機 /全居室収納 /整形地 /対面式キッチン /トイレ2ヶ所 /TVモニタ付インターホン /全居室フローリング /3階建以上 /都市ガス /ルーフバルコニー /平坦地 /屋上 |
Price 価格 | | 41 million yen 4100万円 |
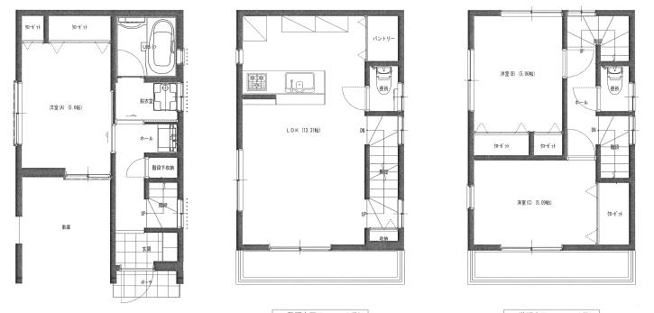
Floor plan 間取り | | 3LDK 3LDK |
Units sold 販売戸数 | | 1 units 1戸 |
Land area 土地面積 | | 43.85 sq m 43.85m2 |
Building area 建物面積 | | 90.14 sq m (registration), Among the first floor garage 6.27 sq m 90.14m2(登記)、うち1階車庫6.27m2 |
Driveway burden-road 私道負担・道路 | | 9.4 sq m , South 4m width (contact the road width 5.1m) 9.4m2、南4m幅(接道幅5.1m) |
Completion date 完成時期(築年月) | | February 2014 2014年2月 |
Address 住所 | | Arakawa-ku, Tokyo Machiya 3 東京都荒川区町屋3 |
Traffic 交通 | | Tokyo Metro Chiyoda Line "Machiya" walk 10 minutes Toden Arakawa Line "Machiyaekimae" walk 9 minutes Toden Arakawa Line "Higashiogu Third Street" walk 12 minutes 東京メトロ千代田線「町屋」歩10分 都電荒川線「町屋駅前」歩9分 都電荒川線「東尾久三丁目」歩12分
|
Related links 関連リンク | | [Related Sites of this company] 【この会社の関連サイト】 |
Person in charge 担当者より | | Rep Iwata 担当者岩田 |
Contact お問い合せ先 | | (Ltd.) Yanagiya Corporation TEL: 0800-602-3422 [Toll free] mobile phone ・ Also available from PHS Caller ID is not notified Please contact the "saw SUUMO (Sumo)" If it does not lead, If the real estate company (株)柳屋コーポレーションTEL:0800-602-3422【通話料無料】携帯電話・PHSからもご利用いただけます 発信者番号は通知されません 「SUUMO(スーモ)を見た」と問い合わせください つながらない方、不動産会社の方は
|
Building coverage, floor area ratio 建ぺい率・容積率 | | 80% ・ 240 percent 80%・240% |
Land of the right form 土地の権利形態 | | Ownership 所有権 |
Structure and method of construction 構造・工法 | | Wooden three-story (framing method) 木造3階建(軸組工法) |
Use district 用途地域 | | Semi-industrial 準工業 |
Other limitations その他制限事項 | | Regulations have by the Landscape Act, Quasi-fire zones, Third kind altitudes Special industrial zone Machiya 3.4.5 chome district plan 景観法による規制有、準防火地域、第3種高度地域 特別工業地区 町屋3.4.5丁目地区計画 |
Overview and notices その他概要・特記事項 | | Contact: Iwata, Facilities: Public Water Supply, This sewage, City gas, Building confirmation number: SJK-KX1313070138, Parking: No 担当者:岩田、設備:公営水道、本下水、都市ガス、建築確認番号:SJK-KX1313070138、駐車場:無 |
Company profile 会社概要 | | <Seller> Governor of Tokyo (1) No. 090761 (Ltd.) Yanagiya Corporation Yubinbango116-0001 Arakawa-ku, Tokyo Machiya 8-3-12 <売主>東京都知事(1)第090761号(株)柳屋コーポレーション〒116-0001 東京都荒川区町屋8-3-12 |