|
|
Arakawa-ku, Tokyo
東京都荒川区
|
|
Tokyo Metro Chiyoda Line "Machiya" walk 4 minutes
東京メトロ千代田線「町屋」歩4分
|
|
◆ Good per sun per southeast corner lot ◆ There roof balcony ◆
◆東南角地につき陽当たり良好◆ルーフバルコニーあり◆
|
|
◆ Full equipment specifications ◆
◆充実した設備仕様◆
|
Features pickup 特徴ピックアップ | | 2 along the line more accessible / Facing south / System kitchen / Yang per good / All room storage / Flat to the station / A quiet residential area / LDK15 tatami mats or more / Around traffic fewer / Corner lot / Shaping land / Washbasin with shower / Face-to-face kitchen / Security enhancement / Toilet 2 places / Bathroom 1 tsubo or more / Warm water washing toilet seat / The window in the bathroom / TV monitor interphone / High-function toilet / Urban neighborhood / All living room flooring / Built garage / Three-story or more / Living stairs / City gas / All rooms are two-sided lighting / roof balcony / Flat terrain 2沿線以上利用可 /南向き /システムキッチン /陽当り良好 /全居室収納 /駅まで平坦 /閑静な住宅地 /LDK15畳以上 /周辺交通量少なめ /角地 /整形地 /シャワー付洗面台 /対面式キッチン /セキュリティ充実 /トイレ2ヶ所 /浴室1坪以上 /温水洗浄便座 /浴室に窓 /TVモニタ付インターホン /高機能トイレ /都市近郊 /全居室フローリング /ビルトガレージ /3階建以上 /リビング階段 /都市ガス /全室2面採光 /ルーフバルコニー /平坦地 |
Price 価格 | | 42,800,000 yen 4280万円 |
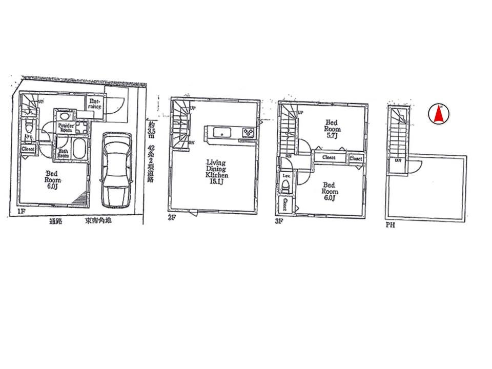
Floor plan 間取り | | 3LDK 3LDK |
Units sold 販売戸数 | | 1 units 1戸 |
Total units 総戸数 | | 1 units 1戸 |
Land area 土地面積 | | 46.17 sq m (measured) 46.17m2(実測) |
Building area 建物面積 | | 81.03 sq m (measured) 81.03m2(実測) |
Driveway burden-road 私道負担・道路 | | Nothing, East 3.5m width 無、東3.5m幅 |
Completion date 完成時期(築年月) | | March 2014 2014年3月 |
Address 住所 | | Arakawa-ku, Tokyo Arakawa 7 東京都荒川区荒川7 |
Traffic 交通 | | Tokyo Metro Chiyoda Line "Machiya" walk 4 minutes Keisei Main Line "Machiya" walk 4 minutes Toden Arakawa Line "Arakawa seven-chome" walk 2 minutes 東京メトロ千代田線「町屋」歩4分 京成本線「町屋」歩4分 都電荒川線「荒川七丁目」歩2分
|
Related links 関連リンク | | [Related Sites of this company] 【この会社の関連サイト】 |
Person in charge 担当者より | | Person in charge of real-estate and building Sasaki Hiroshi Age: 30 Daigyokai experience: looking for 10 years you live is that the most of the tricks performed while fun. We do business I try every day to be able to offer the stage of looking for such a nice living in your. Come Please feel free to contact us. 担当者宅建佐々木 裕年齢:30代業界経験:10年お住まいさがしは楽しみながら行う事が一番のコツです。そんな素敵なお住まい探しのステージをお客様にご提供できるように日々心掛けて業務を行っております。是非お気軽にご相談下さい。 |
Contact お問い合せ先 | | TEL: 0800-602-6092 [Toll free] mobile phone ・ Also available from PHS Caller ID is not notified Please contact the "saw SUUMO (Sumo)" If it does not lead, If the real estate company TEL:0800-602-6092【通話料無料】携帯電話・PHSからもご利用いただけます 発信者番号は通知されません 「SUUMO(スーモ)を見た」と問い合わせください つながらない方、不動産会社の方は
|
Building coverage, floor area ratio 建ぺい率・容積率 | | 80% ・ 300% 80%・300% |
Time residents 入居時期 | | March 2014 schedule 2014年3月予定 |
Land of the right form 土地の権利形態 | | Ownership 所有権 |
Structure and method of construction 構造・工法 | | Wooden three-story 木造3階建 |
Use district 用途地域 | | Semi-industrial 準工業 |
Other limitations その他制限事項 | | Height district, Quasi-fire zones, Yes south passage 高度地区、準防火地域、南側通路あり |
Overview and notices その他概要・特記事項 | | Contact: Sasaki Hiroshi, Facilities: Public Water Supply, This sewage, City gas, Building confirmation number: No. H25A-BA00402-01, Parking: Garage 担当者:佐々木 裕、設備:公営水道、本下水、都市ガス、建築確認番号:第H25A-BA00402-01号、駐車場:車庫 |
Company profile 会社概要 | | <Mediation> Governor of Tokyo (1) No. 093403 (Ltd.) living concier Yubinbango116-0013 Arakawa-ku, Tokyo Nishinippori 2-25-1 station Garden Tower second floor <仲介>東京都知事(1)第093403号(株)リビングコンシェル〒116-0013 東京都荒川区西日暮里2-25-1 ステーションガーデンタワー2階 |