New Homes » Kanto » Tokyo » Chofu
 
| | Chofu, Tokyo 東京都調布市 |
| Keio Line "Fuda" walk 12 minutes 京王線「布田」歩12分 |
| (Seller direct sales !!) Heart full Town Chofu III (Chofu Somechi 2-chome) Station 12 minutes! Now in the final 1 buildings ~ New price! Chance now! ~ Imposing completed ~ It is a direct sales Property! (売主直売!!)ハートフルタウン調布III(調布市染地2丁目) 駅12分!最終1棟になりました ~ 新価格!今がチャンス! ~ 堂々完成 ~ 直売物件です! |
| ◆ Seller direct sales! Imposing completed! Now in the final 1 buildings! Price cut decisive action! Ahead of us! ◆ ○ Keio Line "Fuda" station 12 mins Kokuryō Station A 15-minute walk ○ peripheral is also good living environment in a quiet residential area. Also near elementary school, Child-rearing environment ◎ ○ front road also there is a feeling of freedom at about 5m. ○ 2-story Family-friendly 3LDK On the first floor of 13 quires than living The second floor is equipped with a loft & blow ○ bonus repayment Mu Even 100% loan It is available for purchase at 110,000 yen. Please document request compared to the now rent + parking Badai ・ Because of local your tour do not hesitate busy season, We will accept by phone. Kichijoji office 0120-15-8848 until ◆売主直売!堂々完成!最終1棟になりました!値下げ断行!お早目に!◆○京王線 『布田』駅 徒歩12分 国領駅 徒歩15分○周辺は閑静な住宅街で住環境も良好。 小学校も近くて、子育て環境も◎○前面道路も約5mで解放感があります。○2階建 ファミリー向け3LDK 1階が13帖超のリビングに 2階はロフト&吹抜け付です○ボーナス返済無 100%ローンでも 11万円台で購入可能です。 今の家賃+駐車場代と比べて下さい資料請求・現地ご見学はお気軽に繁忙期のため、お電話にて受付をいたします。吉祥寺営業所 0120‐15‐8848迄 |
Features pickup 特徴ピックアップ | | Construction housing performance with evaluation / Design house performance with evaluation / Corresponding to the flat-35S / Pre-ground survey / Vibration Control ・ Seismic isolation ・ Earthquake resistant / Seismic fit / Parking two Allowed / Fiscal year Available / Energy-saving water heaters / System kitchen / All room storage / Flat to the station / Siemens south road / Shaping land / Washbasin with shower / Face-to-face kitchen / Toilet 2 places / Bathroom 1 tsubo or more / 2-story / Double-glazing / Warm water washing toilet seat / loft / Underfloor Storage / The window in the bathroom / Leafy residential area / Ventilation good / All living room flooring / Water filter / Living stairs / Flat terrain 建設住宅性能評価付 /設計住宅性能評価付 /フラット35Sに対応 /地盤調査済 /制震・免震・耐震 /耐震適合 /駐車2台可 /年度内入居可 /省エネ給湯器 /システムキッチン /全居室収納 /駅まで平坦 /南側道路面す /整形地 /シャワー付洗面台 /対面式キッチン /トイレ2ヶ所 /浴室1坪以上 /2階建 /複層ガラス /温水洗浄便座 /ロフト /床下収納 /浴室に窓 /緑豊かな住宅地 /通風良好 /全居室フローリング /浄水器 /リビング階段 /平坦地 | Event information イベント情報 | | (Please be sure to ask in advance) [We have completed, The Company You do not have to sell the Board, but on weekdays ・ Saturday and Sunday the actual building at any time, regardless Guests tour the. ~ Thank you for your reservation as soon as possible. ~ ] Because of the busy season, Thank you accepted by phone. Free dial 0120-15-8848 Property Map ・ Specification ・ We will send blueprint. The exact (including planned) that blueprint and are using please tell us when and housing equipment is hope the specification has been posted. Construction of a building ・ Earthquake-proof ・ durability ・ After-sales service, It is that you do not know and do not actually listen directly to the employees of Idasangyo. (Our attitude Ya, Please listen to the policy! ) It can be lasting relations after lived, From heart Why not try to buy from Kichijoji office, We look forward to. (事前に必ずお問い合わせください)【完成しております、当社では販売会をしておりませんが平日・土日問わずいつでも実際の建物 をご見学いただけます。 ~ お早めにご予約をお願いします。 ~ 】繁忙期のため、お電話にて受付をお願いします。フリーダイヤル 0120-15-8848物件の地図・仕様書・設計図お送りいたします。正確な設計図や使用している(予定を含む)住宅機器などが掲載している仕様書をご希望されるときはお申し付けください。建物の構造・耐震性・耐久性・アフターサービスは、実際に飯田産業の社員に直接聞かないとわからないことです。(当社の姿勢や、ポリシーをお聞きください!)住んだ後も末永いお付き合いができる、吉祥寺営業所から購入してみてはいかがでしょうかこころより、お待ちしております。 | Price 価格 | | 40,800,000 yen 4080万円 | Floor plan 間取り | | 3LDK 3LDK | Units sold 販売戸数 | | 1 units 1戸 | Total units 総戸数 | | 2 units 2戸 | Land area 土地面積 | | 92.6 sq m (measured) 92.6m2(実測) | Building area 建物面積 | | 71.11 sq m (measured) 71.11m2(実測) | Driveway burden-road 私道負担・道路 | | Road width: 5m, Asphaltic pavement, Public road 道路幅:5m、アスファルト舗装、公道 | Completion date 完成時期(築年月) | | In early September 2013 2013年9月初旬 | Address 住所 | | Chofu, Tokyo Somechi 2-14-22 東京都調布市染地2-14-22 | Traffic 交通 | | Keio Line "Fuda" walk 12 minutes Keio Line "Kokuryo" walk 15 minutes Keio Line "Chofu" walk 20 minutes 京王線「布田」歩12分 京王線「国領」歩15分 京王線「調布」歩20分
| Related links 関連リンク | | [Related Sites of this company] 【この会社の関連サイト】 | Person in charge 担当者より | | Person in charge of real-estate and building Kurosaki Fumie Age: 20 Daigyokai Experience: 2 years from now, Residential a smart buy era! My name is Kurosaki of Idasangyo Kichijoji office. Idasangyo is the only direct sales specialty store. Our heart full Town is home to long-lasting and strong strong earthquake. 担当者宅建黒崎 史恵年齢:20代業界経験:2年これからは、住宅をかしこく買う時代です!飯田産業吉祥寺営業所の黒崎と申します。飯田産業唯一の直売専門店です。当社のハートフルタウンは地震に強い丈夫で長持ちする住宅です。 | Contact お問い合せ先 | | TEL: 0800-808-5143 [Toll free] mobile phone ・ Also available from PHS Caller ID is not notified Please contact the "saw SUUMO (Sumo)" If it does not lead, If the real estate company TEL:0800-808-5143【通話料無料】携帯電話・PHSからもご利用いただけます 発信者番号は通知されません 「SUUMO(スーモ)を見た」と問い合わせください つながらない方、不動産会社の方は
| Sale schedule 販売スケジュール | | ◆ Seller direct sales! Imposing completed! Price cut decisive action! Now in the final 1 buildings! Your visit is ahead of us! ◆ ○ Keio Line "Fuda" station 12 mins Kokuryō Station A 15-minute walk ○ peripheral is also good living environment in a quiet residential area. Also near elementary school, Child-rearing environment ◎ ○ front road also there is a feeling of freedom at about 5m. ○ 2-story Family-friendly 3LDK On the first floor of 13 quires than living The second floor is equipped with a loft & blow ○ bonus repayment Mu Even 100% loan It is available for purchase at 110,000 yen. Please document request compared to the now rent + parking Badai ・ Because of local your tour do not hesitate busy season, We will accept by phone. Kichijoji office 0120-15-8848 until ◆売主直売!堂々完成!値下げ断行!最終1棟になりました!ご見学はお早目に!◆○京王線 『布田』駅 徒歩12分 国領駅 徒歩15分○周辺は閑静な住宅街で住環境も良好。 小学校も近くて、子育て環境も◎○前面道路も約5mで解放感があります。○2階建 ファミリー向け3LDK 1階が13帖超のリビングに 2階はロフト&吹抜け付です○ボーナス返済無 100%ローンでも 11万円台で購入可能です。 今の家賃+駐車場代と比べて下さい資料請求・現地ご見学はお気軽に繁忙期のため、お電話にて受付をいたします。吉祥寺営業所 0120‐15‐8848迄 | Building coverage, floor area ratio 建ぺい率・容積率 | | Kenpei rate: 40%, Volume ratio: 80% 建ペい率:40%、容積率:80% | Time residents 入居時期 | | Immediate available 即入居可 | Land of the right form 土地の権利形態 | | Ownership 所有権 | Structure and method of construction 構造・工法 | | Wooden 2-story (panel method) 木造2階建(パネル工法) | Construction 施工 | | Idasangyo Co., Ltd. (peace of mind and reliability of its design ・ Construction ・ Condominium sales) 株式会社飯田産業(安心と信頼の自社設計・施工・分譲販売) | Use district 用途地域 | | One low-rise 1種低層 | Land category 地目 | | Residential land 宅地 | Other limitations その他制限事項 | | Height district 高度地区 | Overview and notices その他概要・特記事項 | | Contact: Kurosaki Fumie, Building confirmation number: No. HPA-13-02439-1 other 担当者:黒崎 史恵、建築確認番号:第HPA-13-02439-1号他 | Company profile 会社概要 | | <Seller> Minister of Land, Infrastructure and Transport (8) No. 003306 (Ltd.) Idasangyo Kichijoji office Information Center Yubinbango180-0004 Musashino-shi, Tokyo Kichijojihon cho 1-13-9 Daiei Building 1F <売主>国土交通大臣(8)第003306号(株)飯田産業吉祥寺営業所インフォメーションセンター〒180-0004 東京都武蔵野市吉祥寺本町1-13-9大栄ビル1F |
Local photos, including front road前面道路含む現地写真  Local (10 May 2013) Shooting
現地(2013年10月)撮影
Floor plan間取り図  (1 Building), Price 40,800,000 yen, 3LDK, Land area 92.6 sq m , Building area 71.11 sq m
(1号棟)、価格4080万円、3LDK、土地面積92.6m2、建物面積71.11m2
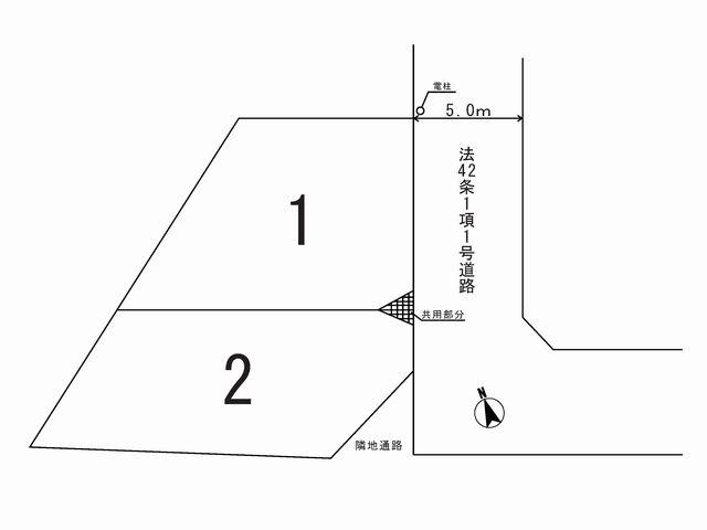
 The entire compartment Figure
全体区画図
Local photos, including front road前面道路含む現地写真  Local (September 2013) Shooting
現地(2013年9月)撮影
Kitchenキッチン  Indoor (10 May 2013) Shooting
室内(2013年10月)撮影
Local appearance photo現地外観写真  Local (10 May 2013) Shooting
現地(2013年10月)撮影
 Local (10 May 2013) Shooting
現地(2013年10月)撮影
Livingリビング  Indoor (September 2013) Shooting
室内(2013年9月)撮影
 Indoor (September 2013) Shooting
室内(2013年9月)撮影
View photos from the dwelling unit住戸からの眺望写真  Local (September 2013) Shooting
現地(2013年9月)撮影
Bathroom浴室  Indoor (September 2013) Shooting
室内(2013年9月)撮影
Receipt収納  Indoor (September 2013) Shooting
室内(2013年9月)撮影
Local photos, including front road前面道路含む現地写真  Local (September 2013) Shooting
現地(2013年9月)撮影
Entrance玄関  Indoor (September 2013) Shooting
室内(2013年9月)撮影
Non-living roomリビング以外の居室  Indoor (September 2013) Shooting
室内(2013年9月)撮影
Toiletトイレ  Indoor (September 2013) Shooting
室内(2013年9月)撮影
Kindergarten ・ Nursery幼稚園・保育園  Chofu Tama River to kindergarten 597m
調布多摩川幼稚園まで597m
 556m until Leo nursery
レオ保育園まで556m
Primary school小学校  Chofu Municipal Sugimori to elementary school 340m
調布市立杉森小学校まで340m
Junior high school中学校  Chofu Tatsudai 507m until the third junior high school
調布市立第三中学校まで507m
Supermarketスーパー  666m until Inageya ina21 Chofu Somechi shop
いなげやina21調布染地店まで666m
Otherその他  Residential a smart buy era! Idasangyo is a member of the only direct sales specialty store Kichijoji office. Heart full Town of the Company (the seller) is the house that long-lasting and strong strong earthquake.
住宅をかしこく買う時代です!飯田産業唯一の直売専門店吉祥寺営業所のメンバーです。当社(売主)のハートフルタウンは地震に強い丈夫で長持ちする住宅です。
 Thanks in Tokyo and number one!
おかげさまで東京都ナンバーワン!
 Nice house of strong Iida to earthquake
地震に強い飯田のいい家
Construction ・ Construction method ・ specification構造・工法・仕様  Get the housing performance evaluation report of the third-party organization in all properties!
全物件で第3者機関の住宅性能評価書を取得!
 Even without damage for the fourth consecutive times of seismic experiment!
連続4回の耐震実験でも損傷なし!
Otherその他  Everyone is granted to buy a house
誰もが当たり前に家を買える
Location
|