New Homes » Kanto » Tokyo » Chofu
 
| | Chofu, Tokyo 東京都調布市 |
| Keio Line "Kokuryo" walk 5 minutes 京王線「国領」歩5分 |
| === Happy living in mind and body. Estate Hakuba === north, I feel a sense of openness because the south side is open. ===こころとカラダに嬉しい暮らし。エステート白馬===北側、南側が開けているので開放感を感じられます。 |
Features pickup 特徴ピックアップ | | LDK20 tatami mats or more / It is close to the city / System kitchen / Yang per good / Flat to the station / Shaping land / Three-story or more / Living stairs / City gas / Flat terrain LDK20畳以上 /市街地が近い /システムキッチン /陽当り良好 /駅まで平坦 /整形地 /3階建以上 /リビング階段 /都市ガス /平坦地 | Price 価格 | | 48,800,000 yen ~ 49,800,000 yen 4880万円 ~ 4980万円 | Floor plan 間取り | | 4LDK + S (storeroom) 4LDK+S(納戸) | Units sold 販売戸数 | | 5 units 5戸 | Total units 総戸数 | | 5 units 5戸 | Land area 土地面積 | | 72.51 sq m ~ 75.32 sq m (registration) 72.51m2 ~ 75.32m2(登記) | Building area 建物面積 | | 115.88 sq m (measured) 115.88m2(実測) | Completion date 完成時期(築年月) | | February 2014 schedule 2014年2月予定 | Address 住所 | | Chofu, Tokyo Kokuryo cho 5 東京都調布市国領町5 | Traffic 交通 | | Keio Line "Kokuryo" walk 5 minutes Keio Line "Fuda" walk 5 minutes Keio Line "Chofu" walk 17 minutes 京王線「国領」歩5分 京王線「布田」歩5分 京王線「調布」歩17分
| Person in charge 担当者より | | Person in charge of real-estate and building FP Kato Yoshihira Age: 30 Daigyokai experience: as a real estate agent rather than as a 10-year real estate agent, If you have any questions or worries about the real estate, Please feel free to contact us. 担当者宅建FP加藤 義平年齢:30代業界経験:10年不動産屋としてではなく不動産エージェントとして、不動産に関するご質問やお悩みが御座いましたら、お気軽にご相談下さい。 | Contact お問い合せ先 | | TEL: 0120-846898 [Toll free] Please contact the "saw SUUMO (Sumo)" TEL:0120-846898【通話料無料】「SUUMO(スーモ)を見た」と問い合わせください | Building coverage, floor area ratio 建ぺい率・容積率 | | Building coverage 60%, Volume rate of 200% 建蔽率60%、容積率200% | Time residents 入居時期 | | March 2014 schedule 2014年3月予定 | Land of the right form 土地の権利形態 | | Ownership 所有権 | Use district 用途地域 | | One middle and high 1種中高 | Overview and notices その他概要・特記事項 | | Contact: Kato Yoshihira, Building confirmation number: 1 担当者:加藤 義平、建築確認番号:1 | Company profile 会社概要 | | <Mediation> Minister of Land, Infrastructure and Transport (4) No. 005817 (Corporation) All Japan Real Estate Association (Corporation) metropolitan area real estate Fair Trade Council member (Ltd.) Estate Hakuba Kokubunji store Yubinbango185-0012 Tokyo Kokubunji Honcho 4-19-10 Big Glad Kokubunji second floor <仲介>国土交通大臣(4)第005817号(公社)全日本不動産協会会員 (公社)首都圏不動産公正取引協議会加盟(株)エステート白馬国分寺店〒185-0012 東京都国分寺市本町4-19-10 ビッググラッド国分寺2階 |
Local appearance photo現地外観写真  Local under construction
建築中の現地
 Local under construction
建築中の現地
 Local under construction
建築中の現地
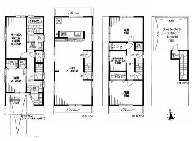
Floor plan間取り図  Price 48,800,000 yen, 4LDK+S, Land area 73.96 sq m , Building area 115.88 sq m
価格4880万円、4LDK+S、土地面積73.96m2、建物面積115.88m2
Local photos, including front road前面道路含む現地写真  It is a quiet residential area.
閑静な住宅街です。
Station駅  Keio Line "Kokuryo" 400m to the station
京王線「国領」駅まで400m
Otherその他  Location
ロケーション
Primary school小学校  Chofu 420m until the second elementary school
調布第二小学校まで420m
Junior high school中学校  Chofu 940m to the third junior high school
調布第三中学校まで940m
Kindergarten ・ Nursery幼稚園・保育園  640m until the fifth nursery
第五保育園まで640m
Hospital病院  1250m to University Third Hospital
附属第三病院まで1250m
Location
|