New Homes » Kanto » Tokyo » Chofu
 
| | Chofu, Tokyo 東京都調布市 |
| Keio Line "Chofu" walk 20 minutes 京王線「調布」歩20分 |
| ◇ newly built condominiums in Chofu Jindaiji! ! We recommend the property is in a quiet residential area! ! ◇ ◇調布市深大寺にある新築分譲住宅!!閑静な住宅街にあるおすすめの物件です!!◇ |
| ◆ Also go out to the popular shopping area such as Kichijoji by bus use! ◆ Secure a space for a large cupboard also enter Ease The kitchen is back! ◆ Communication is also easy to take with your family in the living room stairs ☆ ◆ Storage capacity of safe in stylish family in the large closet and walk-in closet ☆ For more information ○ is [Document request] Please feel free to contact us more! ☆ ... ‥ - * - ‥ ■ Keio Line ・ Center line ・ To the property if the Company's Odakyu line! ■ HP only of information and non-public property is also a large number! ■ You can access from the Related Links ☆ "Customer dream to its previous ..." ‥ - * - ‥ ... ☆ ◆バス利用で吉祥寺など人気のお買い物エリアにも出かけられます!◆キッチン背面には大きめの食器棚もラクラク入るスペースを確保!◆リビング階段でご家族とのコミュニケーションも取りやすい☆◆大きめクローゼットとウォークインクローゼットでおしゃれなご家族にも安心の収納力☆○詳しくは【資料請求】よりお気軽にお問い合わせください!☆…‥―*―‥ ■京王線・中央線・小田急線の物件なら当社へ! ■HPのみの情報や未公開物件も多数! ■関連リンクよりアクセスできます☆ 『お客様の夢のその先へ…』 ‥―*―‥…☆ |
Features pickup 特徴ピックアップ | | Vibration Control ・ Seismic isolation ・ Earthquake resistant / Energy-saving water heaters / Super close / Facing south / System kitchen / Siemens south road / A quiet residential area / LDK15 tatami mats or more / Corner lot / Shaping land / Toilet 2 places / Bathroom 1 tsubo or more / 2-story / South balcony / Warm water washing toilet seat / Underfloor Storage / The window in the bathroom / Leafy residential area / Ventilation good / All living room flooring / Walk-in closet / Water filter / Flat terrain 制震・免震・耐震 /省エネ給湯器 /スーパーが近い /南向き /システムキッチン /南側道路面す /閑静な住宅地 /LDK15畳以上 /角地 /整形地 /トイレ2ヶ所 /浴室1坪以上 /2階建 /南面バルコニー /温水洗浄便座 /床下収納 /浴室に窓 /緑豊かな住宅地 /通風良好 /全居室フローリング /ウォークインクロゼット /浄水器 /平坦地 | Price 価格 | | 44,800,000 yen 4480万円 | Floor plan 間取り | | 3LDK 3LDK | Units sold 販売戸数 | | 1 units 1戸 | Total units 総戸数 | | 10 units 10戸 | Land area 土地面積 | | 100.01 sq m (registration) 100.01m2(登記) | Building area 建物面積 | | 79.38 sq m (registration) 79.38m2(登記) | Driveway burden-road 私道負担・道路 | | Nothing, East 4.5m width, South 4m width 無、東4.5m幅、南4m幅 | Completion date 完成時期(築年月) | | February 2014 2014年2月 | Address 住所 | | Chofu, Tokyo Jindaijimoto cho 2 東京都調布市深大寺元町2 | Traffic 交通 | | Keio Line "Chofu" walk 20 minutes Keio Line "Fuda" walk 21 minutes Keio Line "Kokuryo" walk 23 minutes 京王線「調布」歩20分 京王線「布田」歩21分 京王線「国領」歩23分
| Related links 関連リンク | | [Related Sites of this company] 【この会社の関連サイト】 | Person in charge 担当者より | | Person in charge of Shiga Taeko Age: 30s customers in a nice My home will be happy to help so that you looking for ☆ As you have after your purchase also peace of mind, Since we will be your suggestions to suit your lifestyle, Please feel free to contact us ☆ 担当者志賀 妙子年齢:30代お客様に素敵なマイホームがお探しいただけるようお手伝いさせていただきます☆ご購入後も安心していただけるように、ライフスタイルに合わせたご提案をさせていただきますので、お気軽にお問合せくださいませ☆ | Contact お問い合せ先 | | TEL: 0800-603-8577 [Toll free] mobile phone ・ Also available from PHS Caller ID is not notified Please contact the "saw SUUMO (Sumo)" If it does not lead, If the real estate company TEL:0800-603-8577【通話料無料】携帯電話・PHSからもご利用いただけます 発信者番号は通知されません 「SUUMO(スーモ)を見た」と問い合わせください つながらない方、不動産会社の方は
| Building coverage, floor area ratio 建ぺい率・容積率 | | 40% ・ 80% 40%・80% | Time residents 入居時期 | | Consultation 相談 | Land of the right form 土地の権利形態 | | Ownership 所有権 | Structure and method of construction 構造・工法 | | Wooden 2-story 木造2階建 | Use district 用途地域 | | One low-rise 1種低層 | Other limitations その他制限事項 | | Height district, Height district 高度地区、高度地区 | Overview and notices その他概要・特記事項 | | Contact: Shiga Taeko, Facilities: Public Water Supply, This sewage, City gas, Building confirmation number: No., Parking: car space 担当者:志賀 妙子、設備:公営水道、本下水、都市ガス、建築確認番号:第、駐車場:カースペース | Company profile 会社概要 | | <Mediation> Governor of Tokyo (2) No. 089073 (Ltd.) Dream House Yubinbango182-0002 Chofu, Tokyo Sengawa cho 3-9-22 <仲介>東京都知事(2)第089073号(株)ドリームハウス〒182-0002 東京都調布市仙川町3-9-22 |
Rendering (appearance)完成予想図(外観)  Building complete image
建物完成イメージ
Local appearance photo現地外観写真  Local construction in
現地施工中
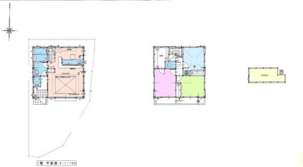
Floor plan間取り図  44,800,000 yen, 3LDK, Land area 100.01 sq m , Building area 79.38 sq m floor plan
4480万円、3LDK、土地面積100.01m2、建物面積79.38m2 間取り図
Local appearance photo現地外観写真  Local Photos
現地写真
Same specifications photos (living)同仕様写真(リビング)  Living example of construction
リビング施工例
Same specifications photo (bathroom)同仕様写真(浴室)  Bathroom construction cases
浴室施工例
Same specifications photo (kitchen)同仕様写真(キッチン)  Kitchen construction cases
キッチン施工例
Local photos, including front road前面道路含む現地写真  Local front road
現地前面道路
Primary school小学校  Chofu Municipal Jindaiji to elementary school 900m walk 11 minutes
調布市立深大寺小学校まで900m 徒歩11分
Same specifications photos (Other introspection)同仕様写真(その他内観)  Western-style construction cases
洋室施工例
Compartment figure区画図  44,800,000 yen, 3LDK, Land area 100.01 sq m , Building area 79.38 sq m compartment view
4480万円、3LDK、土地面積100.01m2、建物面積79.38m2 区画図
Other localその他現地  Local neighborhood
現地周辺
Local appearance photo現地外観写真  Local Photos
現地写真
Local photos, including front road前面道路含む現地写真  Local front road
現地前面道路
Junior high school中学校  Chofu Tatsugami bill 1500m walk 19 minutes to the junior high school
調布市立神代中学校まで1500m 徒歩19分
Other localその他現地  Local neighborhood
現地周辺
Local appearance photo現地外観写真  Local Photos
現地写真
Other Environmental Photoその他環境写真  Keio Line "Chofu" 1600m walk 20 minutes to the peripheral station
京王線『調布』駅周辺まで1600m 徒歩20分
Local appearance photo現地外観写真  Local Photos
現地写真
Supermarketスーパー  Maruetsu, Inc. Until Chofu shop 850m walk 10 minutes
マルエツ 調布店まで850m 徒歩10分
Government office役所  Chofu 1900m walk 23 minutes to the city hall
調布市役所まで1900m 徒歩23分
Location
|