New Homes » Kanto » Tokyo » Chofu
 
| | Chofu, Tokyo 東京都調布市 |
| Keio Line "Kokuryo" walk 11 minutes 京王線「国領」歩11分 |
| South-facing living happy newly built condominiums in the location abundant storage space of 11 minutes walk from the Kokuryō Station 国領駅まで徒歩11分のロケーション豊富な収納スペースに南向きリビングがうれしい新築分譲住宅 |
| Yes Keio Line "Kokuryo" station Western-style LDK16.7 Pledge Yes south-facing 12 Pledge of walk 11 minutes Yes counter kitchen adoption can be changed from the partition possible Rei_3LDK to 4LDK Yes there small attic storage 〇_TES floor heating ・ Entrance Yes the south side of the dishwasher dryer Yes card key support is a very good day because they become open space 〇京王線「国領」駅 徒歩11分〇カウンターキッチン採用のLDK16.7帖〇南向き12帖の洋室は間仕切り可能〇3LDKから4LDKへの変更できます〇小屋根裏収納ございます〇TES床暖房・食器洗浄乾燥機〇カードキー対応の玄関〇南側は空地になっているので日当たりとてもいいです |
Features pickup 特徴ピックアップ | | Pre-ground survey / Super close / Facing south / Bathroom Dryer / Yang per good / Flat to the station / A quiet residential area / LDK15 tatami mats or more / Around traffic fewer / garden / Face-to-face kitchen / Wide balcony / Bathroom 1 tsubo or more / 2-story / South balcony / Double-glazing / loft / Nantei / The window in the bathroom / Leafy residential area / Ventilation good / Dish washing dryer / Water filter / City gas / All rooms are two-sided lighting / A large gap between the neighboring house / Flat terrain / Attic storage / Floor heating 地盤調査済 /スーパーが近い /南向き /浴室乾燥機 /陽当り良好 /駅まで平坦 /閑静な住宅地 /LDK15畳以上 /周辺交通量少なめ /庭 /対面式キッチン /ワイドバルコニー /浴室1坪以上 /2階建 /南面バルコニー /複層ガラス /ロフト /南庭 /浴室に窓 /緑豊かな住宅地 /通風良好 /食器洗乾燥機 /浄水器 /都市ガス /全室2面採光 /隣家との間隔が大きい /平坦地 /屋根裏収納 /床暖房 | Price 価格 | | 52,800,000 yen 5280万円 | Floor plan 間取り | | 4LDK 4LDK | Units sold 販売戸数 | | 1 units 1戸 | Total units 総戸数 | | 3 units 3戸 | Land area 土地面積 | | 116.8 sq m (35.33 tsubo) (measured) 116.8m2(35.33坪)(実測) | Building area 建物面積 | | 92.86 sq m (28.09 tsubo) (Registration) 92.86m2(28.09坪)(登記) | Driveway burden-road 私道負担・道路 | | Nothing, Northeast 5m width 無、北東5m幅 | Completion date 完成時期(築年月) | | March 2014 2014年3月 | Address 住所 | | Chofu, Tokyo Kokuryo cho 7 東京都調布市国領町7 | Traffic 交通 | | Keio Line "Kokuryo" walk 11 minutes Keio Line "Fuda" walk 17 minutes Keio Line "Shibasaki" walk 18 minutes 京王線「国領」歩11分 京王線「布田」歩17分 京王線「柴崎」歩18分
| Person in charge 担当者より | | Rep Takami Kurokawa 担当者黒川孝海 | Contact お問い合せ先 | | TEL: 0800-603-3448 [Toll free] mobile phone ・ Also available from PHS Caller ID is not notified Please contact the "saw SUUMO (Sumo)" If it does not lead, If the real estate company TEL:0800-603-3448【通話料無料】携帯電話・PHSからもご利用いただけます 発信者番号は通知されません 「SUUMO(スーモ)を見た」と問い合わせください つながらない方、不動産会社の方は
| Building coverage, floor area ratio 建ぺい率・容積率 | | 40% ・ 80% 40%・80% | Time residents 入居時期 | | March 2014 schedule 2014年3月予定 | Land of the right form 土地の権利形態 | | Ownership 所有権 | Structure and method of construction 構造・工法 | | Wooden 2-story 木造2階建 | Use district 用途地域 | | One low-rise 1種低層 | Overview and notices その他概要・特記事項 | | Contact: Takami Kurokawa, Facilities: Public Water Supply, This sewage, City gas, Building confirmation number: H25 confirmation architecture KBI05366, Parking: car space 担当者:黒川孝海、設備:公営水道、本下水、都市ガス、建築確認番号:H25確認建築KBI05366、駐車場:カースペース | Company profile 会社概要 | | <Mediation> Governor of Tokyo (2) No. 082920 (Corporation) Tokyo Metropolitan Government Building Lots and Buildings Transaction Business Association (Corporation) metropolitan area real estate Fair Trade Council member am tick (Ltd.) Kichijoji headquarters sales department Yubinbango180-0002 Musashino-shi, Tokyo Kichijojihigashi cho 1-19-21 <仲介>東京都知事(2)第082920号(公社)東京都宅地建物取引業協会会員 (公社)首都圏不動産公正取引協議会加盟アムティック(株)吉祥寺本社営業部〒180-0002 東京都武蔵野市吉祥寺東町1-19-21 |
 Rendering (appearance)
完成予想図(外観)
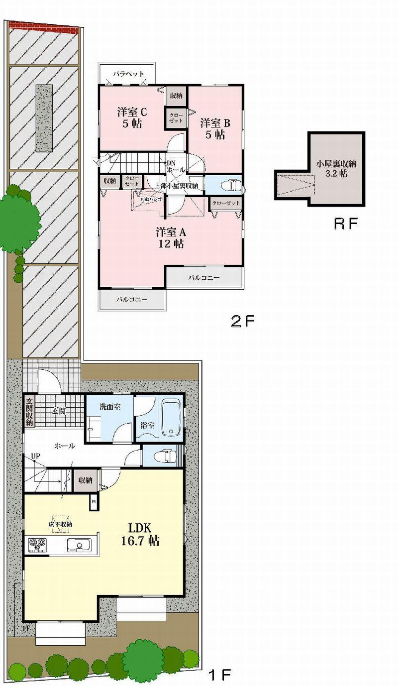
Floor plan間取り図  52,800,000 yen, 4LDK, Land area 116.8 sq m , Building area 92.86 sq m
5280万円、4LDK、土地面積116.8m2、建物面積92.86m2
 Local appearance photo
現地外観写真
 Local appearance photo
現地外観写真
 Local photos, including front road
前面道路含む現地写真
Kindergarten ・ Nursery幼稚園・保育園  Chofu Tama River to kindergarten 544m
調布多摩川幼稚園まで544m
 Local appearance photo
現地外観写真
 Chofu Wakatake to kindergarten 720m
調布若竹幼稚園まで720m
 Surugadai 701m until the first kindergarten
駿河台大学第一幼稚園まで701m
 Chofu Kuore to nursery school 829m
調布クオレ保育園まで829m
Junior high school中学校  Chofu Tatsudai 1187m until the third junior high school
調布市立第三中学校まで1187m
Primary school小学校  Chofu Municipal Somechi to elementary school 186m
調布市立染地小学校まで186m
 Chofu stand up to the second elementary school 674m
調布市立第二小学校まで674m
 Chofu stand up to the second elementary school 674m
調布市立第二小学校まで674m
Location
|