|
|
Chofu, Tokyo
東京都調布市
|
|
Keio Line "Shibasaki" walk 15 minutes
京王線「柴崎」歩15分
|
|
Leafy quiet residential area! Public road corner lot Fully equipped Garage with three (large and small)
緑の多い閑静な住宅街! 公道角地 設備充実 車庫3台付(大型と小型)
|
|
Leafy of a quiet residential area, Garage with three is the (large and small) new construction House.
緑の多い閑静な住宅街の、車庫3台付(大型と小型)新築戸建てです。
|
Features pickup 特徴ピックアップ | | Parking two Allowed / Parking three or more possible / System kitchen / Bathroom Dryer / Yang per good / All room storage / Corner lot / Toilet 2 places / Warm water washing toilet seat / Ventilation good / Three-story or more 駐車2台可 /駐車3台以上可 /システムキッチン /浴室乾燥機 /陽当り良好 /全居室収納 /角地 /トイレ2ヶ所 /温水洗浄便座 /通風良好 /3階建以上 |
Price 価格 | | 35,800,000 yen 3580万円 |
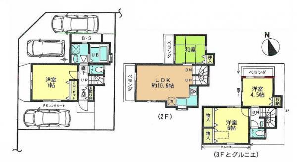
Floor plan 間取り | | 3LDK 3LDK |
Units sold 販売戸数 | | 1 units 1戸 |
Total units 総戸数 | | 1 units 1戸 |
Land area 土地面積 | | 79.9 sq m (registration) 79.9m2(登記) |
Building area 建物面積 | | 74.4 sq m (registration) 74.4m2(登記) |
Driveway burden-road 私道負担・道路 | | Nothing, West 6m width, North 4m width 無、西6m幅、北4m幅 |
Completion date 完成時期(築年月) | | June 2013 2013年6月 |
Address 住所 | | Chofu, Tokyo Shibasaki 2 東京都調布市柴崎2 |
Traffic 交通 | | Keio Line "Shibasaki" walk 15 minutes Keio Line "tsutsujigaoka" walk 17 minutes 京王線「柴崎」歩15分 京王線「つつじヶ丘」歩17分
|
Related links 関連リンク | | [Related Sites of this company] 【この会社の関連サイト】 |
Contact お問い合せ先 | | TEL: 0800-603-0575 [Toll free] mobile phone ・ Also available from PHS Caller ID is not notified Please contact the "saw SUUMO (Sumo)" If it does not lead, If the real estate company TEL:0800-603-0575【通話料無料】携帯電話・PHSからもご利用いただけます 発信者番号は通知されません 「SUUMO(スーモ)を見た」と問い合わせください つながらない方、不動産会社の方は
|
Building coverage, floor area ratio 建ぺい率・容積率 | | 40% ・ 80% 40%・80% |
Time residents 入居時期 | | Consultation 相談 |
Land of the right form 土地の権利形態 | | Ownership 所有権 |
Structure and method of construction 構造・工法 | | Wooden three-story 木造3階建 |
Use district 用途地域 | | One low-rise 1種低層 |
Overview and notices その他概要・特記事項 | | Facilities: Public Water Supply, This sewage, City gas, Parking: car space 設備:公営水道、本下水、都市ガス、駐車場:カースペース |
Company profile 会社概要 | | <Mediation> Minister of Land, Infrastructure and Transport (3) No. 006,185 (one company) National Housing Industry Association (Corporation) metropolitan area real estate Fair Trade Council member Asahi Housing Corporation Shinjuku 160-0023 Tokyo Nishi-Shinjuku, Shinjuku-ku, 1-19-6 Shinjuku Yamate building 7th floor <仲介>国土交通大臣(3)第006185号(一社)全国住宅産業協会会員 (公社)首都圏不動産公正取引協議会加盟朝日住宅(株)新宿店〒160-0023 東京都新宿区西新宿1-19-6 山手新宿ビル7階 |