New Homes » Kanto » Tokyo » Edogawa
 
| | Edogawa-ku, Tokyo 東京都江戸川区 |
| JR Sobu Line "Koiwa" walk 11 minutes JR総武線「小岩」歩11分 |
| [Preview being accepted] 9:00 ~ 20:00 Since the (closed on Wednesdays) is already completed, You can preview 【内覧受付中】9:00 ~ 20:00(水曜定休)完成済みですので、内覧できます |
| ■ Easy two-story living in a quiet residential area ■ LDK is bright and airy providing a blow ■ Housing Performance Evaluation Report with in is safe ========================== field trips during the reception! 9:00 ~ 20:00 The hope of customers, Nearby properties also weekday of guidance that we will introduce is also possible. Feel free to toll-free, please contact us 0800-603-6439 ========================== ↓ For more information, please refer to the photo below ↓ ■閑静な住宅街に生活のしやすい2階建て■LDKは吹抜けを設け明るく開放的■住宅性能評価書付きで安心です==========================現地見学受付中!9:00 ~ 20:00ご希望のお客様には、近隣物件もご紹介させていただきます平日のご案内も可能です。お気軽にお問い合わせくださいフリーダイヤル 0800-603-6439==========================↓詳細は下の写真をご覧下さい↓ |
Features pickup 特徴ピックアップ | | Construction housing performance with evaluation / Design house performance with evaluation / Measures to conserve energy / Corresponding to the flat-35S / Pre-ground survey / Vibration Control ・ Seismic isolation ・ Earthquake resistant / Year Available / Energy-saving water heaters / Facing south / System kitchen / Bathroom Dryer / Yang per good / All room storage / Flat to the station / Siemens south road / A quiet residential area / Around traffic fewer / Or more before road 6m / Japanese-style room / Shaping land / Washbasin with shower / Face-to-face kitchen / Barrier-free / Toilet 2 places / Bathroom 1 tsubo or more / 2-story / South balcony / Double-glazing / Otobasu / Warm water washing toilet seat / loft / Underfloor Storage / The window in the bathroom / Atrium / TV monitor interphone / Leafy residential area / Ventilation good / Built garage / Water filter / City gas / All rooms are two-sided lighting / Flat terrain 建設住宅性能評価付 /設計住宅性能評価付 /省エネルギー対策 /フラット35Sに対応 /地盤調査済 /制震・免震・耐震 /年内入居可 /省エネ給湯器 /南向き /システムキッチン /浴室乾燥機 /陽当り良好 /全居室収納 /駅まで平坦 /南側道路面す /閑静な住宅地 /周辺交通量少なめ /前道6m以上 /和室 /整形地 /シャワー付洗面台 /対面式キッチン /バリアフリー /トイレ2ヶ所 /浴室1坪以上 /2階建 /南面バルコニー /複層ガラス /オートバス /温水洗浄便座 /ロフト /床下収納 /浴室に窓 /吹抜け /TVモニタ付インターホン /緑豊かな住宅地 /通風良好 /ビルトガレージ /浄水器 /都市ガス /全室2面採光 /平坦地 | Price 価格 | | 38,300,000 yen 3830万円 | Floor plan 間取り | | 3LDK 3LDK | Units sold 販売戸数 | | 1 units 1戸 | Total units 総戸数 | | 3 units 3戸 | Land area 土地面積 | | 76.7 sq m (measured) 76.7m2(実測) | Building area 建物面積 | | 75.14 sq m 75.14m2 | Driveway burden-road 私道負担・道路 | | South width 6m public road 南側幅員6m公道 | Completion date 完成時期(築年月) | | In late September 2013 2013年9月下旬 | Address 住所 | | Edogawa-ku, Tokyo Higashikoiwa 4 東京都江戸川区東小岩4 | Traffic 交通 | | JR Sobu Line "Koiwa" walk 11 minutes JR総武線「小岩」歩11分 | Related links 関連リンク | | [Related Sites of this company] 【この会社の関連サイト】 | Person in charge 担当者より | | Person in charge of real-estate and building Ogawa Atsushi Age: 30 Daigyokai experience: in order to solve the real estate-related problems of five years everybody, I run around every day. Good footwork, Let me advance dealings from the customers' point of view. Please leave us in peace. 担当者宅建小川 篤年齢:30代業界経験:5年皆様の不動産関連の問題を解決すべく、毎日走り回っています。フットワーク良く、お客様の立場に立ったお取引を進めさせて頂きます。安心して私たちにお任せ下さい。 | Contact お問い合せ先 | | TEL: 0800-603-6439 [Toll free] mobile phone ・ Also available from PHS Caller ID is not notified Please contact the "saw SUUMO (Sumo)" If it does not lead, If the real estate company TEL:0800-603-6439【通話料無料】携帯電話・PHSからもご利用いただけます 発信者番号は通知されません 「SUUMO(スーモ)を見た」と問い合わせください つながらない方、不動産会社の方は
| Building coverage, floor area ratio 建ぺい率・容積率 | | Building coverage 60% Volume rate of 200% 建ぺい率60% 容積率200% | Time residents 入居時期 | | Consultation 相談 | Land of the right form 土地の権利形態 | | Ownership 所有権 | Use district 用途地域 | | One dwelling 1種住居 | Overview and notices その他概要・特記事項 | | Contact: Ogawa Atsushi, Building confirmation number: 02477-1 other 担当者:小川 篤、建築確認番号:02477-1他 | Company profile 会社概要 | | <Mediation> Governor of Tokyo (2) No. 085476 (Corporation) Tokyo Metropolitan Government Building Lots and Buildings Transaction Business Association (Corporation) metropolitan area real estate Fair Trade Council member (Ltd.) realistic Navi Yubinbango132-0035 Hirai Edogawa-ku, Tokyo 4-9-12 <仲介>東京都知事(2)第085476号(公社)東京都宅地建物取引業協会会員 (公社)首都圏不動産公正取引協議会加盟(株)リアルナビ〒132-0035 東京都江戸川区平井4-9-12 |
Local appearance photo現地外観写真  It became nearing completion. Since the rooms are finished, Tours are available.
完成間近となりました。お部屋はできあがってますので、見学可能です。
 Local photos, including front road
前面道路含む現地写真
Same specifications photos (appearance)同仕様写真(外観)  Appearance image
外観イメージ
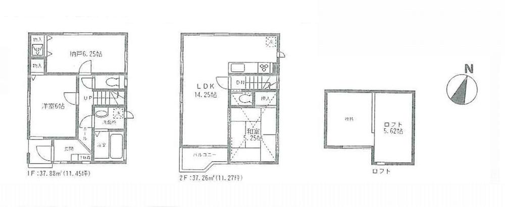
Floor plan間取り図  (1 Building), Price 38,300,000 yen, 3LDK, Land area 76.7 sq m , Building area 75.14 sq m
(1号棟)、価格3830万円、3LDK、土地面積76.7m2、建物面積75.14m2
Same specifications photos (living)同仕様写真(リビング)  Living Image
リビングイメージ
Same specifications photo (bathroom)同仕様写真(浴室)  Bathroom image
浴室イメージ
Same specifications photo (kitchen)同仕様写真(キッチン)  Kitchen image
キッチンイメージ
Supermarketスーパー  Yamaichi until Koiwa shop 680m
ヤマイチ小岩店まで680m
 The entire compartment Figure
全体区画図
Convenience storeコンビニ  Three F until Koiwa shop 501m
スリーエフ小岩店まで501m
Drug storeドラッグストア  Drag Papas until Minamikoiwa shop 635m
どらっぐぱぱす南小岩店まで635m
Junior high school中学校  488m to Edogawa Ward Koiwa first junior high school
江戸川区立小岩第一中学校まで488m
Primary school小学校  114m to Edogawa Ward Higashikoiwa Elementary School
江戸川区立東小岩小学校まで114m
 763m to Edogawa Ward Koiwa Elementary School
江戸川区立小岩小学校まで763m
Kindergarten ・ Nursery幼稚園・保育園  Social welfare corporation Edogawa Higashikoiwa sun to nursery school 487m
社会福祉法人えどがわ東小岩おひさま保育園まで487m
Hospital病院  Jinseisha 458m to Edogawa Hospital
仁生社江戸川病院まで458m
Library図書館  468m to Edogawa Ward Koiwa Library
江戸川区立小岩図書館まで468m
Location
|