|
|
Edogawa-ku, Tokyo
東京都江戸川区
|
|
JR Sobu Line "Koiwa" walk 6 minutes
JR総武線「小岩」歩6分
|
|
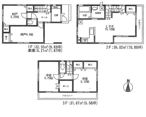
Minamikoiwa Station 6 min. Walk L-shaped kitchen Walk-in closet
南小岩駅徒歩6分 L型キッチン ウォークインクローゼット
|
Features pickup 特徴ピックアップ | | Bathroom Dryer / Yang per good / LDK15 tatami mats or more / Or more before road 6m / Face-to-face kitchen / Bathroom 1 tsubo or more / All living room flooring / Walk-in closet / Three-story or more / City gas / Flat terrain 浴室乾燥機 /陽当り良好 /LDK15畳以上 /前道6m以上 /対面式キッチン /浴室1坪以上 /全居室フローリング /ウォークインクロゼット /3階建以上 /都市ガス /平坦地 |
Price 価格 | | 44,800,000 yen 4480万円 |
Floor plan 間取り | | 4LDK 4LDK |
Units sold 販売戸数 | | 1 units 1戸 |
Total units 総戸数 | | 1 units 1戸 |
Land area 土地面積 | | 70.29 sq m (registration) 70.29m2(登記) |
Building area 建物面積 | | 106.4 sq m (registration), Among the first floor garage 6.21 sq m 106.4m2(登記)、うち1階車庫6.21m2 |
Driveway burden-road 私道負担・道路 | | Nothing, East 3.8m width 無、東3.8m幅 |
Completion date 完成時期(築年月) | | June 2013 2013年6月 |
Address 住所 | | Edogawa-ku, Tokyo Minamikoiwa 6 東京都江戸川区南小岩6 |
Traffic 交通 | | JR Sobu Line "Koiwa" walk 6 minutes JR総武線「小岩」歩6分 |
Related links 関連リンク | | [Related Sites of this company] 【この会社の関連サイト】 |
Person in charge 担当者より | | Person in charge of real-estate and building FP Hexi Keiji Age: 30 Daigyokai experience: I will do my best to enjoy the looking Listing to a 12-year customer. 担当者宅建FP河西 慶治年齢:30代業界経験:12年お客様に物件探しを楽しんでいただけるように頑張ります。 |
Contact お問い合せ先 | | TEL: 0800-603-0565 [Toll free] mobile phone ・ Also available from PHS Caller ID is not notified Please contact the "saw SUUMO (Sumo)" If it does not lead, If the real estate company TEL:0800-603-0565【通話料無料】携帯電話・PHSからもご利用いただけます 発信者番号は通知されません 「SUUMO(スーモ)を見た」と問い合わせください つながらない方、不動産会社の方は
|
Building coverage, floor area ratio 建ぺい率・容積率 | | 60% ・ 300% 60%・300% |
Time residents 入居時期 | | Consultation 相談 |
Land of the right form 土地の権利形態 | | Ownership 所有権 |
Structure and method of construction 構造・工法 | | Wooden three-story 木造3階建 |
Use district 用途地域 | | One dwelling 1種住居 |
Overview and notices その他概要・特記事項 | | Contact: Hexi Keiji, Facilities: Public Water Supply, This sewage, City gas, Building confirmation number: 00805, Parking: Garage 担当者:河西 慶治、設備:公営水道、本下水、都市ガス、建築確認番号:00805、駐車場:車庫 |
Company profile 会社概要 | | <Mediation> Minister of Land, Infrastructure and Transport (3) No. 006,185 (one company) National Housing Industry Association (Corporation) metropolitan area real estate Fair Trade Council member Asahi housing (stock) Ueno shop Yubinbango110-0005, Taito-ku, Tokyo Ueno 2-13-10 Asahi Seimei Building 6th floor <仲介>国土交通大臣(3)第006185号(一社)全国住宅産業協会会員 (公社)首都圏不動産公正取引協議会加盟朝日住宅(株)上野店〒110-0005 東京都台東区上野2-13-10 朝日生命ビル6階 |