New Homes » Kanto » Tokyo » Edogawa


Edogawa-ku, Tokyo
JR Sobu Line "Shinkoiwa" walk 23 minutes
◆ The outer wall fire protection ・ Thermal insulation properties ・ Over Bell to excellent sound insulation Asahi Kasei power board thickness 37mm!
Features pickup
LDK18 tatami mats or more / System kitchen / Face-to-face kitchen / South balcony / All living room flooring
Price
37,800,000 yen ~ 38,800,000 yen
Floor plan
3LDK
Units sold
2 units
Total units
3 units
Land area
80.89 sq m ~ 84.89 sq m (measured)
Building area
93.98 sq m ~ 94.4 sq m (registration)
Completion date
2013 mid-December
Address
Edogawa-ku, Tokyo Matsushima 2-1
Traffic
JR Sobu Line "Shinkoiwa" walk 23 minutes JR Sobu Line "Hirai" walk 36 minutes Toei Shinjuku Line "Higashi-Ojima" walk 41 minutes
Related links
[Related Sites of this company]
Contact
TEL: 0800-602-6353 [Toll free] mobile phone ・ Also available from PHS
Caller ID is not notified
Please contact the "saw SUUMO (Sumo)"
If it does not lead, If the real estate company
Building coverage, floor area ratio
Kenpei rate: 60% ・ 80%, Volume ratio: 200% ・ 300%
Time residents
Consultation
Land of the right form
Ownership
Structure and method of construction
Wooden 2-story
Construction
Aidi Home Co., Ltd.
Use district
One dwelling, Residential
Overview and notices
Building confirmation number: No. SJK-KX1313010107
Company profile
<Mediation> Saitama Governor (2) the first 021,042 No. Dream Staff Co., Ltd. Yubinbango362-0013 Saitama Prefecture Ageo Oaza Ageo village 1287-2-A


Same specifications photo (kitchen)

Same specifications photo (kitchen). Same specifications
Same specifications

Same specifications photo (bathroom)

Same specifications photo (bathroom). Same specifications
Same specifications

Same specifications photos (appearance)

Same specifications photos (appearance). Same specifications
Same specifications

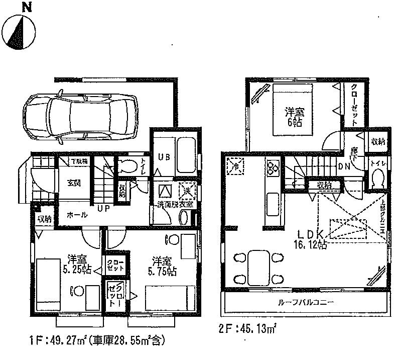
Floor plan

Floor plan. Price 38,800,000 yen, 3LDK, Land area 80.89 sq m , Building area 93.98 sq m
Price 38,800,000 yen, 3LDK, Land area 80.89 sq m , Building area 93.98 sq m

Local appearance photo

Local appearance photo. Local (11 May 2013) Shooting
Local (11 May 2013) Shooting

Other

Other. Second Matsue Elementary School
Second Matsue Elementary School

Floor plan

Floor plan. Price 37,800,000 yen, 3LDK, Land area 84.18 sq m , Building area 94.4 sq m
Price 37,800,000 yen, 3LDK, Land area 84.18 sq m , Building area 94.4 sq m

Other

Other. Matsue second junior high school
Matsue second junior high school



Location