New Homes » Kanto » Tokyo » Edogawa


Edogawa-ku, Tokyo
JR Sobu Line "Shinkoiwa" walk 25 minutes
The entire surface of 6.4m on public roads LDK18 Pledge 2-story
Features pickup
LDK18 tatami mats or more / System kitchen / Bathroom Dryer / Bathroom 1 tsubo or more / 2-story / Double-glazing / Warm water washing toilet seat / Underfloor Storage / TV monitor interphone / All living room flooring / City gas
Price
35,800,000 yen
Floor plan
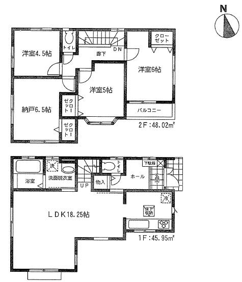
4LDK
Units sold
1 units
Total units
1 units
Land area
81.41 sq m (registration)
Building area
93.97 sq m (registration)
Driveway burden-road
Nothing, East 6.4m width
Completion date
November 2013
Address
Edogawa-ku, Tokyo Osugi 5
Traffic
JR Sobu Line "Shinkoiwa" walk 25 minutes
Related links
[Related Sites of this company]
Person in charge
Person in charge of real-estate and building FP Hexi Keiji Age: 30 Daigyokai experience: I will do my best to enjoy the looking Listing to a 12-year customer.
Contact
TEL: 0800-603-0565 [Toll free] mobile phone ・ Also available from PHS
Caller ID is not notified
Please contact the "saw SUUMO (Sumo)"
If it does not lead, If the real estate company
Building coverage, floor area ratio
60% ・ 150%
Time residents
Consultation
Land of the right form
Ownership
Structure and method of construction
Wooden 2-story
Use district
One middle and high
Overview and notices
Contact: Hexi Keiji, Facilities: Public Water Supply, This sewage, City gas, Building confirmation number: 00540, Parking: Garage
Company profile
<Mediation> Minister of Land, Infrastructure and Transport (3) No. 006,185 (one company) National Housing Industry Association (Corporation) metropolitan area real estate Fair Trade Council member Asahi housing (stock) Ueno shop Yubinbango110-0005, Taito-ku, Tokyo Ueno 2-13-10 Asahi Seimei Building 6th floor


Local appearance photo
Local appearance photo

Local photos, including front road
Local photos, including front road

Floor plan

Floor plan. 35,800,000 yen, 4LDK, Land area 81.41 sq m , Building area 93.97 sq m
35,800,000 yen, 4LDK, Land area 81.41 sq m , Building area 93.97 sq m

Living
Living

Bathroom
Bathroom

Kitchen
Kitchen

Living
Living



Location