|
|
Edogawa-ku, Tokyo
東京都江戸川区
|
|
Toei Shinjuku Line "Ichinoe" walk 18 minutes
都営新宿線「一之江」歩18分
|
|
Counter Kitchen Bus stop a 1-minute walk
カウンターキッチン バス停徒歩1分
|
Features pickup 特徴ピックアップ | | Construction housing performance with evaluation / Design house performance with evaluation / Corresponding to the flat-35S / Immediate Available / All room storage / Flat to the station / Or more before road 6m / Face-to-face kitchen / Bathroom 1 tsubo or more / 2-story / South balcony / Underfloor Storage / TV monitor interphone / All living room flooring 建設住宅性能評価付 /設計住宅性能評価付 /フラット35Sに対応 /即入居可 /全居室収納 /駅まで平坦 /前道6m以上 /対面式キッチン /浴室1坪以上 /2階建 /南面バルコニー /床下収納 /TVモニタ付インターホン /全居室フローリング |
Price 価格 | | 37,800,000 yen 3780万円 |
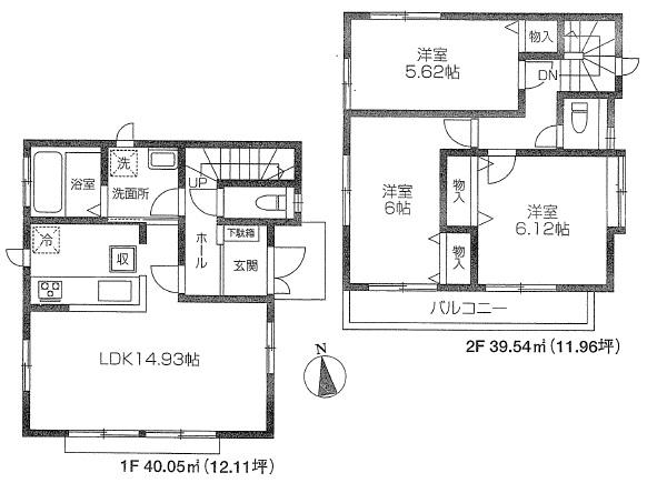
Floor plan 間取り | | 3LDK 3LDK |
Units sold 販売戸数 | | 1 units 1戸 |
Total units 総戸数 | | 1 units 1戸 |
Land area 土地面積 | | 102.23 sq m (registration) 102.23m2(登記) |
Building area 建物面積 | | 79.59 sq m (registration) 79.59m2(登記) |
Driveway burden-road 私道負担・道路 | | Nothing, East 6.8m width 無、東6.8m幅 |
Completion date 完成時期(築年月) | | October 2013 2013年10月 |
Address 住所 | | Edogawa-ku, Tokyo Edogawa 5 東京都江戸川区江戸川5 |
Traffic 交通 | | Toei Shinjuku Line "Ichinoe" walk 18 minutes Tokyo Metro Tozai Line "Kasai" 8 minutes Edogawa Chome walk 1 minute bus 都営新宿線「一之江」歩18分 東京メトロ東西線「葛西」バス8分江戸川五丁目歩1分
|
Related links 関連リンク | | [Related Sites of this company] 【この会社の関連サイト】 |
Person in charge 担当者より | | Person in charge of real-estate and building FP Hexi Keiji Age: 30 Daigyokai experience: I will do my best to enjoy the looking Listing to a 12-year customer. 担当者宅建FP河西 慶治年齢:30代業界経験:12年お客様に物件探しを楽しんでいただけるように頑張ります。 |
Contact お問い合せ先 | | TEL: 0800-603-0565 [Toll free] mobile phone ・ Also available from PHS Caller ID is not notified Please contact the "saw SUUMO (Sumo)" If it does not lead, If the real estate company TEL:0800-603-0565【通話料無料】携帯電話・PHSからもご利用いただけます 発信者番号は通知されません 「SUUMO(スーモ)を見た」と問い合わせください つながらない方、不動産会社の方は
|
Building coverage, floor area ratio 建ぺい率・容積率 | | 60% ・ 150% 60%・150% |
Time residents 入居時期 | | Consultation 相談 |
Land of the right form 土地の権利形態 | | Ownership 所有権 |
Structure and method of construction 構造・工法 | | Wooden 2-story 木造2階建 |
Use district 用途地域 | | One middle and high 1種中高 |
Overview and notices その他概要・特記事項 | | Contact: Hexi Keiji, Facilities: Public Water Supply, This sewage, City gas, Building confirmation number: 02807, Parking: Garage 担当者:河西 慶治、設備:公営水道、本下水、都市ガス、建築確認番号:02807、駐車場:車庫 |
Company profile 会社概要 | | <Mediation> Minister of Land, Infrastructure and Transport (3) No. 006,185 (one company) National Housing Industry Association (Corporation) metropolitan area real estate Fair Trade Council member Asahi housing (stock) Ueno shop Yubinbango110-0005, Taito-ku, Tokyo Ueno 2-13-10 Asahi Seimei Building 6th floor <仲介>国土交通大臣(3)第006185号(一社)全国住宅産業協会会員 (公社)首都圏不動産公正取引協議会加盟朝日住宅(株)上野店〒110-0005 東京都台東区上野2-13-10 朝日生命ビル6階 |