New Homes » Kanto » Tokyo » Edogawa


Edogawa-ku, Tokyo
Toei Shinjuku Line "Funabori" walk 15 minutes
Features pickup
Pre-ground survey / 2 along the line more accessible / System kitchen / Bathroom Dryer / A quiet residential area / Washbasin with shower / Toilet 2 places / Double-glazing / Underfloor Storage / TV monitor interphone / All living room flooring / Dish washing dryer / Water filter / Three-story or more / Living stairs / BS ・ CS ・ CATV / Flat terrain
Price
28.8 million yen
Floor plan
3LDK
Units sold
1 units
Total units
1 units
Land area
52.08 sq m (registration)
Building area
60.49 sq m (measured)
Driveway burden-road
Nothing, East 4m width (contact the road width 5.7m)
Completion date
April 2014
Address
Edogawa-ku, Tokyo harue 5
Traffic
Toei Shinjuku Line "Funabori" walk 15 minutes
Toei Shinjuku Line "Ichinoe" walk 18 minutes
Person in charge
[Regarding this property.] And rent
Contact
New Asia Shoji (Ltd.) TEL: 0800-603-9455 [Toll free] mobile phone ・ Also available from PHS
Caller ID is not notified
Please contact the "saw SUUMO (Sumo)"
If it does not lead, If the real estate company
Building coverage, floor area ratio
60% ・ 160%
Time residents
Consultation
Land of the right form
Ownership
Structure and method of construction
Wooden three-story (framing method)
Use district
One middle and high
Other limitations
Setback: upon 11.72 sq m
Overview and notices
Facilities: Public Water Supply, This sewage, City gas, Building confirmation number: No. 13UDI3C Ken 01828, Parking: car space
Company profile
<Seller> Governor of Tokyo (1) Article 090 792 Issue New Asia Shoji Co., Ltd. Yubinbango136-0071 Koto-ku, Tokyo Kameido 1-8-21


Floor plan

Floor plan. 28.8 million yen, 3LDK, Land area 52.08 sq m , Please try to compare the building area 60.49 sq m monthly payments and rent
28.8 million yen, 3LDK, Land area 52.08 sq m , Please try to compare the building area 60.49 sq m monthly payments and rent

Local photos, including front road
Local photos, including front road

Same specifications photos (appearance)

Same specifications photos (appearance). Example of construction
Example of construction

Floor plan

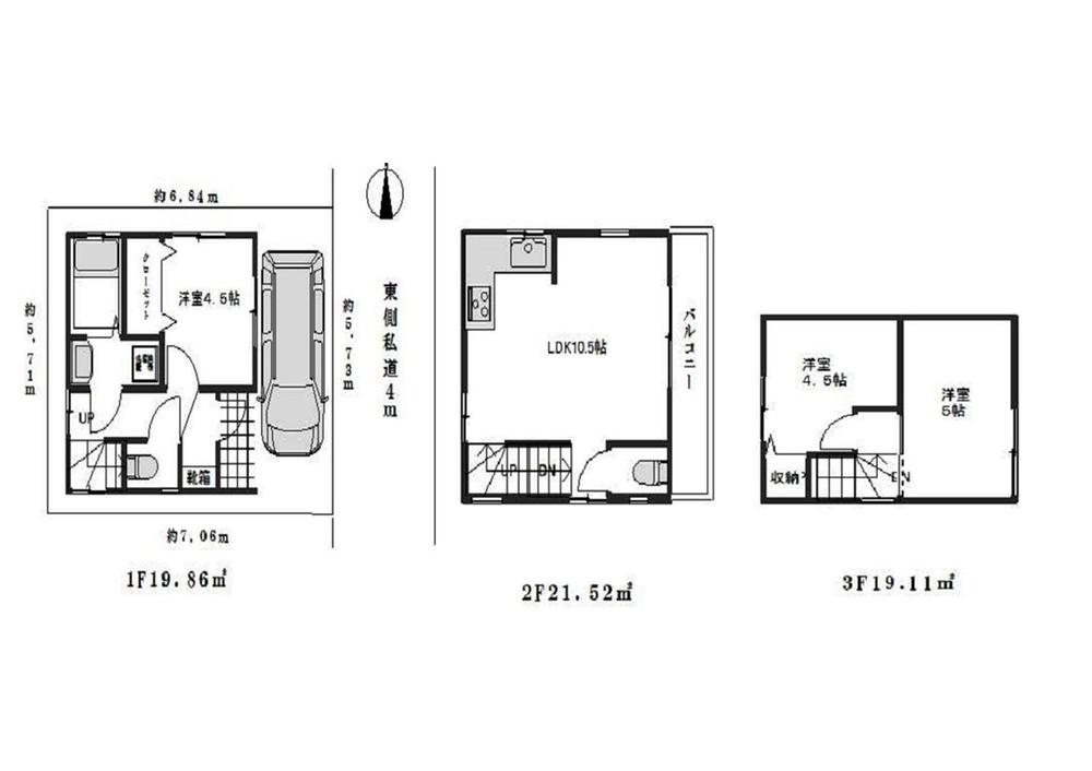
Floor plan. 28.8 million yen, 3LDK, Land area 52.08 sq m , Building area 60.49 sq m mating selfishness is a good L-shaped kitchen 1F: Western-style 4.5 Pledge 2F: LDK10.5 Pledge 3F: Western-style 5 Pledge, Western-style 4.5 Pledge
28.8 million yen, 3LDK, Land area 52.08 sq m , Building area 60.49 sq m mating selfishness is a good L-shaped kitchen 1F: Western-style 4.5 Pledge 2F: LDK10.5 Pledge 3F: Western-style 5 Pledge, Western-style 4.5 Pledge

Living

Living. Example of construction
Example of construction

Bathroom

Bathroom. Example of construction
Example of construction



Location