New Homes » Kanto » Tokyo » Edogawa


Edogawa-ku, Tokyo
Toei Shinjuku Line "Shinozaki" walk 9 minutes
Two-story house in less than 10 minutes' walk! What LDK21.5 Pledge, Service Room 2 room 7 quires more than! Many have small children also a big satisfaction is a large park in the surrounding environment! Car up to three Allowed!
In addition good day in the south 7.0m road surface. Remarkable is also available roof balcony. Please have a look.
Price
49,800,000 yen
Floor plan
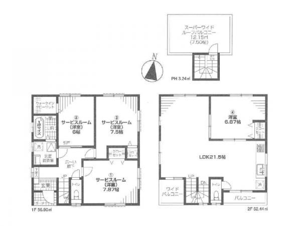
1LDK + 3S (storeroom)
Units sold
1 units
Total units
2 units
Land area
122.2 sq m (measured), Alley-like portion: 41.75 sq m including
Building area
112.58 sq m (measured)
Driveway burden-road
Nothing, South 7m width
Completion date
January 2014
Address
Edogawa-ku, Tokyo Shinozaki-cho 6-8-22
Traffic
Toei Shinjuku Line "Shinozaki" walk 9 minutes
Toei Shinjuku Line "Mizue" walk 15 minutes
Contact
TEL: 0800-603-1945 [Toll free] mobile phone ・ Also available from PHS
Caller ID is not notified
Please contact the "saw SUUMO (Sumo)"
If it does not lead, If the real estate company
Building coverage, floor area ratio
Fifty percent ・ Hundred percent
Time residents
January 2014
Land of the right form
Ownership
Structure and method of construction
Wooden 2-story
Use district
One middle and high
Overview and notices
Facilities: Public Water Supply, This sewage, City gas, Building confirmation number: confirmation service No. KS113-3110-00700
Company profile
<Mediation> Minister of Land, Infrastructure and Transport (4) No. 005542 (Corporation) Tokyo Metropolitan Government Building Lots and Buildings Transaction Business Association (Corporation) metropolitan area real estate Fair Trade Council member (Ltd.) House Plaza Shinozaki shop Yubinbango133-0061 Edogawa-ku, Tokyo Shinozaki-cho 2-1-20 I's flat first floor


Local appearance photo

Local appearance photo. Local (December 2013 shooting)
Local (December 2013 shooting)

Floor plan

Floor plan. 49,800,000 yen, 1LDK+3S, Land area 122.2 sq m , Building area 112.58 sq m floor plan
49,800,000 yen, 1LDK+3S, Land area 122.2 sq m , Building area 112.58 sq m floor plan



Location