New Homes » Kanto » Tokyo » Fuchu
 
| | Fuchu, Tokyo 東京都府中市 |
| Keio Line "Nakagawara" walk 9 minutes 京王線「中河原」歩9分 |
Features pickup 特徴ピックアップ | | System kitchen / LDK15 tatami mats or more / Japanese-style room / Barrier-free / 2-story / Double-glazing / Underfloor Storage / TV monitor interphone / Attic storage システムキッチン /LDK15畳以上 /和室 /バリアフリー /2階建 /複層ガラス /床下収納 /TVモニタ付インターホン /屋根裏収納 | Price 価格 | | 43,300,000 yen 4330万円 | Floor plan 間取り | | 4LDK 4LDK | Units sold 販売戸数 | | 1 units 1戸 | Total units 総戸数 | | 3 units 3戸 | Land area 土地面積 | | 121.83 sq m 121.83m2 | Building area 建物面積 | | 97.4 sq m 97.4m2 | Driveway burden-road 私道負担・道路 | | Nothing 無 | Completion date 完成時期(築年月) | | November 2013 2013年11月 | Address 住所 | | Fuchu, Tokyo Yotsuya 1 東京都府中市四谷1 | Traffic 交通 | | Keio Line "Nakagawara" walk 9 minutes 京王線「中河原」歩9分
| Person in charge 担当者より | | Person in charge of twelve Sota 担当者十二 創太 | Contact お問い合せ先 | | Sumitomo Forestry Home Service Co., Ltd. Fuchu store TEL: 0800-603-0295 [Toll free] mobile phone ・ Also available from PHS Caller ID is not notified Please contact the "saw SUUMO (Sumo)" If it does not lead, If the real estate company 住友林業ホームサービス(株)府中店TEL:0800-603-0295【通話料無料】携帯電話・PHSからもご利用いただけます 発信者番号は通知されません 「SUUMO(スーモ)を見た」と問い合わせください つながらない方、不動産会社の方は
| Building coverage, floor area ratio 建ぺい率・容積率 | | 40% ・ 80% 40%・80% | Time residents 入居時期 | | Consultation 相談 | Land of the right form 土地の権利形態 | | Ownership 所有権 | Structure and method of construction 構造・工法 | | Wooden 2-story 木造2階建 | Use district 用途地域 | | One low-rise 1種低層 | Overview and notices その他概要・特記事項 | | Contact: twelve Sota, Facilities: Public Water Supply, This sewage, City gas, Building confirmation number: No. H25SHC110912, Parking: car space 担当者:十二 創太、設備:公営水道、本下水、都市ガス、建築確認番号:第H25SHC110912号、駐車場:カースペース | Company profile 会社概要 | | <Mediation> Minister of Land, Infrastructure and Transport (14) Article 000220 No. Sumitomo Forestry Home Service Co., Ltd. Fuchu store Yubinbango183-0055 Tokyo Metropolitan Fuchu Fuchu-cho 1-1-5 Fuchu Takagi building the third floor <仲介>国土交通大臣(14)第000220号住友林業ホームサービス(株)府中店〒183-0055 東京都府中市府中町1-1-5 府中高木ビル3階 |
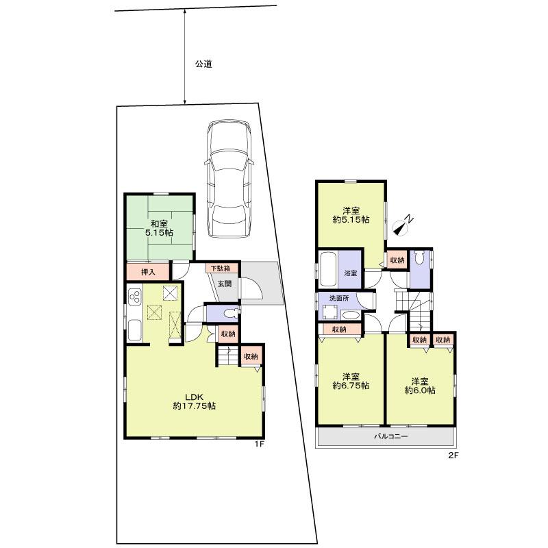
Floor plan間取り図  43,300,000 yen, 4LDK, Land area 121.83 sq m , Building area 97.4 sq m
4330万円、4LDK、土地面積121.83m2、建物面積97.4m2
Local appearance photo現地外観写真  Local (10 May 2013) Shooting
現地(2013年10月)撮影
Local photos, including front road前面道路含む現地写真  Local (10 May 2013) Shooting
現地(2013年10月)撮影
Location
|