2013December
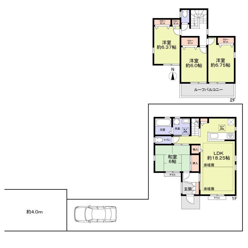
41,800,000 yen, 4LDK, 101.84 sq m
New Homes » Kanto » Tokyo » Fuchu

| | Fuchu, Tokyo 東京都府中市 |
| Keio Line "Nakagawara" walk 14 minutes 京王線「中河原」歩14分 |
Features pickup 特徴ピックアップ | | Facing south / System kitchen / Bathroom Dryer / LDK15 tatami mats or more / 2-story / Double-glazing / Warm water washing toilet seat / Underfloor Storage / Dish washing dryer 南向き /システムキッチン /浴室乾燥機 /LDK15畳以上 /2階建 /複層ガラス /温水洗浄便座 /床下収納 /食器洗乾燥機 | Price 価格 | | 41,800,000 yen 4180万円 | Floor plan 間取り | | 4LDK 4LDK | Units sold 販売戸数 | | 1 units 1戸 | Total units 総戸数 | | 5 units 5戸 | Land area 土地面積 | | 147.58 sq m , Alley-like portion: 26 sq m including 147.58m2、路地状部分:26m2含 | Building area 建物面積 | | 101.84 sq m 101.84m2 | Driveway burden-road 私道負担・道路 | | Nothing, West 4m width 無、西4m幅 | Completion date 完成時期(築年月) | | December 2013 2013年12月 | Address 住所 | | Fuchu, Tokyo Yotsuya 2 東京都府中市四谷2 | Traffic 交通 | | Keio Line "Nakagawara" walk 14 minutes 京王線「中河原」歩14分
| Person in charge 担当者より | | Person in charge of twelve Sota 担当者十二 創太 | Contact お問い合せ先 | | Sumitomo Forestry Home Service Co., Ltd. Fuchu store TEL: 0800-603-0295 [Toll free] mobile phone ・ Also available from PHS Caller ID is not notified Please contact the "saw SUUMO (Sumo)" If it does not lead, If the real estate company 住友林業ホームサービス(株)府中店TEL:0800-603-0295【通話料無料】携帯電話・PHSからもご利用いただけます 発信者番号は通知されません 「SUUMO(スーモ)を見た」と問い合わせください つながらない方、不動産会社の方は
| Building coverage, floor area ratio 建ぺい率・容積率 | | 40% ・ 80% 40%・80% | Time residents 入居時期 | | Consultation 相談 | Land of the right form 土地の権利形態 | | Ownership 所有権 | Structure and method of construction 構造・工法 | | Wooden 2-story 木造2階建 | Use district 用途地域 | | One low-rise 1種低層 | Overview and notices その他概要・特記事項 | | Contact: twelve Sota, Facilities: Public Water Supply, This sewage, City gas, Building confirmation number: No. 13UDI Ken 01023, Parking: car space 担当者:十二 創太、設備:公営水道、本下水、都市ガス、建築確認番号:第13UDI建01023号、駐車場:カースペース | Company profile 会社概要 | | <Mediation> Minister of Land, Infrastructure and Transport (14) Article 000220 No. Sumitomo Forestry Home Service Co., Ltd. Fuchu store Yubinbango183-0055 Tokyo Metropolitan Fuchu Fuchu-cho 1-1-5 Fuchu Takagi building the third floor <仲介>国土交通大臣(14)第000220号住友林業ホームサービス(株)府中店〒183-0055 東京都府中市府中町1-1-5 府中高木ビル3階 |
Floor plan間取り図  41,800,000 yen, 4LDK, Land area 147.58 sq m , Building area 101.84 sq m
4180万円、4LDK、土地面積147.58m2、建物面積101.84m2
Location
|