2013October
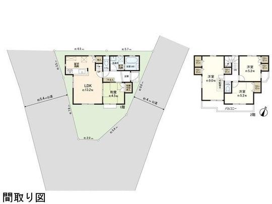
47,300,000 yen, 4LDK, 89.53 sq m
New Homes » Kanto » Tokyo » Fuchu
 
| | Fuchu, Tokyo 東京都府中市 |
| Keio Line "Higashifuchu" walk 3 minutes 京王線「東府中」歩3分 |
Price 価格 | | 47,300,000 yen 4730万円 | Floor plan 間取り | | 4LDK 4LDK | Units sold 販売戸数 | | 1 units 1戸 | Land area 土地面積 | | 89.81 sq m (measured) 89.81m2(実測) | Building area 建物面積 | | 89.53 sq m (measured) 89.53m2(実測) | Driveway burden-road 私道負担・道路 | | Nothing 無 | Completion date 完成時期(築年月) | | October 2013 2013年10月 | Address 住所 | | Fuchu, Tokyo Shimizugaoka 1 東京都府中市清水が丘1 | Traffic 交通 | | Keio Line "Higashifuchu" walk 3 minutes 京王線「東府中」歩3分
| Person in charge 担当者より | | Rep Midorikawa HiroshiHisashi 担当者緑川 浩央 | Contact お問い合せ先 | | Mitsui Rehouse Fuchu store Mitsui Fudosan Realty (Ltd.) TEL: 0120-554979 [Toll free] Please contact the "saw SUUMO (Sumo)" 三井のリハウス府中店三井不動産リアルティ(株)TEL:0120-554979【通話料無料】「SUUMO(スーモ)を見た」と問い合わせください | Building coverage, floor area ratio 建ぺい率・容積率 | | Fifty percent ・ Hundred percent 50%・100% | Time residents 入居時期 | | Immediate available 即入居可 | Land of the right form 土地の権利形態 | | Ownership 所有権 | Structure and method of construction 構造・工法 | | Wooden 2-story 木造2階建 | Use district 用途地域 | | One low-rise 1種低層 | Overview and notices その他概要・特記事項 | | Contact: Midorikawa HiroshiHisashi, Parking: car space 担当者:緑川 浩央、駐車場:カースペース | Company profile 会社概要 | | <Mediation> Minister of Land, Infrastructure and Transport (13) No. 000777 (one company) Property distribution management Association (Corporation) metropolitan area real estate Fair Trade Council member Mitsui Rehouse Fuchu store Mitsui Fudosan Realty Co. Yubinbango183-0023 Fuchu, Tokyo Miyamachi 1-40 Fuchu Sausubiru first floor <仲介>国土交通大臣(13)第000777号(一社)不動産流通経営協会会員 (公社)首都圏不動産公正取引協議会加盟三井のリハウス府中店三井不動産リアルティ(株)〒183-0023 東京都府中市宮町1-40 府中サウスビル1階 |
 Local appearance photo
現地外観写真
 Floor plan
間取り図
Location
|