New Homes » Kanto » Tokyo » Fussa
 
| | Tokyo Fussa 東京都福生市 |
| JR Ome Line "Fussa" walk 12 minutes JR青梅線「福生」歩12分 |
| Per day good all room dihedral daylighting It is an economical city gas Storage space rich Sick measures of peace of mind 全居室2面採光につき日当たり良好 経済的な都市ガスです 収納スペース豊富 安心のシックハウス対策 |
Features pickup 特徴ピックアップ | | LDK18 tatami mats or more / Facing south / System kitchen / Yang per good / All room storage / Siemens south road / Washbasin with shower / Face-to-face kitchen / Toilet 2 places / 2-story / Warm water washing toilet seat / Underfloor Storage / The window in the bathroom / TV monitor interphone / Walk-in closet / Water filter / City gas / All rooms are two-sided lighting LDK18畳以上 /南向き /システムキッチン /陽当り良好 /全居室収納 /南側道路面す /シャワー付洗面台 /対面式キッチン /トイレ2ヶ所 /2階建 /温水洗浄便座 /床下収納 /浴室に窓 /TVモニタ付インターホン /ウォークインクロゼット /浄水器 /都市ガス /全室2面採光 | Price 価格 | | 30,800,000 yen 3080万円 | Floor plan 間取り | | 3LDK 3LDK | Units sold 販売戸数 | | 1 units 1戸 | Total units 総戸数 | | 2 units 2戸 | Land area 土地面積 | | 108 sq m (registration) 108m2(登記) | Building area 建物面積 | | 90.67 sq m (registration) 90.67m2(登記) | Driveway burden-road 私道負担・道路 | | Nothing, South 4m width 無、南4m幅 | Completion date 完成時期(築年月) | | November 2013 2013年11月 | Address 住所 | | Tokyo Fussa Kamidaira 3 東京都福生市加美平3 | Traffic 交通 | | JR Ome Line "Fussa" walk 12 minutes JR Hachikō Line "Higashifussa" walk 19 minutes JR Ome Line "Ushihama" walk 22 minutes JR青梅線「福生」歩12分 JR八高線「東福生」歩19分 JR青梅線「牛浜」歩22分
| Related links 関連リンク | | [Related Sites of this company] 【この会社の関連サイト】 | Person in charge 担当者より | | The person in charge Harada Daisuke Age: 20 Daigyokai Experience: 7 years to just sell just as in the conventional real estate agent of the "salesman" in order to dispel the image of, Listen to opinions of empathically customers, I try and get used to it, "adviser" as it is optimal suggestions. 担当者原田 大輔年齢:20代業界経験:7年従来の不動産業者のようにただ売り込むだけの『セールスマン』というイメージを払拭する為、親身になってお客様のご意見を伺い、最適なご提案ができるような『アドバイザー』になれればと心がけております。 | Contact お問い合せ先 | | TEL: 0800-603-1036 [Toll free] mobile phone ・ Also available from PHS Caller ID is not notified Please contact the "saw SUUMO (Sumo)" If it does not lead, If the real estate company TEL:0800-603-1036【通話料無料】携帯電話・PHSからもご利用いただけます 発信者番号は通知されません 「SUUMO(スーモ)を見た」と問い合わせください つながらない方、不動産会社の方は
| Building coverage, floor area ratio 建ぺい率・容積率 | | Fifty percent ・ 150% 50%・150% | Time residents 入居時期 | | Consultation 相談 | Land of the right form 土地の権利形態 | | Ownership 所有権 | Structure and method of construction 構造・工法 | | Wooden 2-story 木造2階建 | Use district 用途地域 | | One low-rise, One dwelling 1種低層、1種住居 | Overview and notices その他概要・特記事項 | | Contact: Harada Daisuke, Facilities: Public Water Supply, This sewage, City gas, Building confirmation number: No. 01167, Parking: car space 担当者:原田 大輔、設備:公営水道、本下水、都市ガス、建築確認番号:01167号、駐車場:カースペース | Company profile 会社概要 | | <Mediation> Governor of Tokyo (7) No. 047202 (Corporation) Tokyo Metropolitan Government Building Lots and Buildings Transaction Business Association (Corporation) metropolitan area real estate Fair Trade Council member (Ltd.) Yamaichi Home Hamura head office Yubinbango205-0003 Tokyo Hamura Midorigaoka 1-23-9 <仲介>東京都知事(7)第047202号(公社)東京都宅地建物取引業協会会員 (公社)首都圏不動産公正取引協議会加盟(株)山一ホーム羽村本店〒205-0003 東京都羽村市緑ヶ丘1-23-9 |
 Local appearance photo
現地外観写真
 Local appearance photo
現地外観写真
Floor plan間取り図  30,800,000 yen, 3LDK, Land area 108 sq m , Building area 90.67 sq m
3080万円、3LDK、土地面積108m2、建物面積90.67m2
 Local appearance photo
現地外観写真
 Local photos, including front road
前面道路含む現地写真
Supermarketスーパー  577m until Seiyu Fussa shop
西友福生店まで577m
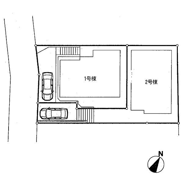
Compartment figure区画図  30,800,000 yen, 3LDK, Land area 108 sq m , Building area 90.67 sq m
3080万円、3LDK、土地面積108m2、建物面積90.67m2
Supermarketスーパー  Inageya Fussa until the Ginza store 846m
いなげや福生銀座店まで846m
 1151m to business super Fussa shop
業務スーパー福生店まで1151m
Home centerホームセンター  Home land Yasaka to Fussa shop 498m
ホームランドヤサカ福生店まで498m
Primary school小学校  Fussa stand Fussa 251m until the fourth elementary school
福生市立福生第四小学校まで251m
Kindergarten ・ Nursery幼稚園・保育園  Fussa 333m to Tama kindergarten
福生多摩幼稚園まで333m
 Violet to nursery school 430m
すみれ保育園まで430m
Location
|