New Homes » Kanto » Tokyo » Hachioji
 
| | Hachioji, Tokyo 東京都八王子市 |
| Keio Sagamihara Line "Keio Horinouchi" walk 11 minutes 京王相模原線「京王堀之内」歩11分 |
| ◆ This listing is possible you move into until March 31, in the consumption tax 5%! ◆ "Keio Horinouchi" station walk 11 minutes ・ 1-minute walk from the supermarket (70m) Request ・ Click the button in the upper right corner of field trips are still those who! ◆この物件は消費税5%で3月31日迄にご入居可能です!◆「京王堀之内」駅徒歩11分・スーパーまで徒歩1分(70m)資料請求・現地見学がまだの方は右上のボタンをクリック! |
| ■ To Shinjuku 36 minutes, Comfortable access to the Shibuya 38 minutes ■ Site 180 sq m more than ・ Parking two possible ・ Living space of LDK18 quires more leeway ■ Child-rearing generations many, Exchanges between residents is also active! ■ , Please feel all means a mature large-scale town was! ■新宿まで36分、渋谷へ38分の快適アクセス■敷地180m2超・駐車2台可能・LDK18帖以上のゆとりの住空間■子育て世代も多く、住民同士の交流も活発です!■成熟した大規模なまちなみを是非ご体感ください! |
Local guide map 現地案内図 | | Local guide map 現地案内図 | Features pickup 特徴ピックアップ | | Construction housing performance with evaluation / Design house performance with evaluation / Parking two Allowed / Immediate Available / Energy-saving water heaters / Super close / Facing south / System kitchen / Bathroom Dryer / All room storage / LDK15 tatami mats or more / Shaping land / Washbasin with shower / Face-to-face kitchen / Security enhancement / Toilet 2 places / Bathroom 1 tsubo or more / 2-story / South balcony / Zenshitsuminami direction / Warm water washing toilet seat / Nantei / The window in the bathroom / IH cooking heater / Dish washing dryer / Walk-in closet / Or more ceiling height 2.5m / City gas / Located on a hill / Maintained sidewalk / Floor heating / Development subdivision in 建設住宅性能評価付 /設計住宅性能評価付 /駐車2台可 /即入居可 /省エネ給湯器 /スーパーが近い /南向き /システムキッチン /浴室乾燥機 /全居室収納 /LDK15畳以上 /整形地 /シャワー付洗面台 /対面式キッチン /セキュリティ充実 /トイレ2ヶ所 /浴室1坪以上 /2階建 /南面バルコニー /全室南向き /温水洗浄便座 /南庭 /浴室に窓 /IHクッキングヒーター /食器洗乾燥機 /ウォークインクロゼット /天井高2.5m以上 /都市ガス /高台に立地 /整備された歩道 /床暖房 /開発分譲地内 | Event information イベント情報 | | Model house (Please be sure to ask in advance) schedule / During the public time / 10:00 ~ 17:00 [Property Description Additional Notes] <Delivery time> immediately Available ※ After various procedures <Notice of year-end and New Year holiday> December 24 (Tuesday) ~ Until January 3 (gold), I will consider it as the year-end and New Year holiday. New Year will be open from January 4 (Saturday). モデルハウス(事前に必ずお問い合わせください)日程/公開中時間/10:00 ~ 17:00【物件概要 補足事項】<引渡時期>即入居可 ※諸手続き後<年末年始休業のお知らせ>12月24日(火) ~ 1月3日(金)までの間は、年末年始休業とさせて頂きます。新年は1月4日(土)より営業いたします。 | Property name 物件名 | | Sumitomo Forestry Forest Garden Keio Horinouchi 住友林業 フォレストガーデン京王堀之内 | Price 価格 | | 56,800,000 yen 5680万円 | Floor plan 間取り | | 4LDK 4LDK | Units sold 販売戸数 | | 1 units 1戸 | Total units 総戸数 | | 106 units 106戸 | Land area 土地面積 | | 182.59 sq m 182.59m2 | Building area 建物面積 | | 117.58 sq m 117.58m2 | Completion date 完成時期(築年月) | | 2012 mid-October 2012年10月中旬 | Address 住所 | | Hachioji, Tokyo Koshino 40-53 東京都八王子市越野40-53(地番) | Traffic 交通 | | Keio Sagamihara Line "Keio Horinouchi" walk 11 minutes 京王相模原線「京王堀之内」歩11分
| Related links 関連リンク | | [Related Sites of this company] 【この会社の関連サイト】 | Contact お問い合せ先 | | Sumitomo Forestry "Forest Garden Keio Horinouchi" local sales center TEL: 0120-958-327 [Toll free] (mobile phone ・ Also available from PHS. ) Please contact the "saw SUUMO (Sumo)" 住友林業「フォレストガーデン京王堀之内」現地販売センターTEL:0120-958-327【通話料無料】(携帯電話・PHSからもご利用いただけます。)「SUUMO(スーモ)を見た」と問い合わせください | Sale schedule 販売スケジュール | | ■ First-come-first-served basis application being accepted! time / 10:00 ~ 17:00 location / Local sales center ※ When you sign up, Your seal ・ 2012 years' worth of income proof (withholding slip ・ Final return, etc.), Identification proof (driver's license ・ Health insurance card, etc.) is required. ※ Per first-come-first-served basis, Please pardon the event during the conclusion of a contract already. ■先着順申込受付中!時間/10:00 ~ 17:00場所/現地販売センター※お申込みの際は、ご印鑑・平成24年分の収入証明(源泉徴収票・確定申告書等)、本人確認証明(運転免許証・健康保険証等)が必要です。※先着順につき、万一成約済の際はご容赦ください。 | Building coverage, floor area ratio 建ぺい率・容積率 | | Building coverage 40% (corner lot is relaxed to 50%), Volume of 80% 建ぺい率40%(角地は50%に緩和)、容積率80% | Time residents 入居時期 | | Immediate available 即入居可 | Land of the right form 土地の権利形態 | | Ownership 所有権 | Structure and method of construction 構造・工法 | | Wooden construction method 2-story (multi-balance construction method) 木造軸組工法2階建(マルチバランス構法) | Use district 用途地域 | | One low-rise 1種低層 | Land category 地目 | | Residential land 宅地 | Other limitations その他制限事項 | | Regulations have by the Landscape Act, Residential land development construction regulation area, Height district, Height ceiling Yes, Shade limit Yes, Setback Yes, New residential areas Development Act ・ District plan (Koshino ・ Horinouchi district district plan / Low-rise residential area) ・ Law Article 22 designated area 景観法による規制有、宅地造成工事規制区域、高度地区、高さ最高限度有、日影制限有、壁面後退有、新住宅市街地開発法・地区計画(越野・堀之内地区地区計画/低層住宅地区)・法22条指定区域 | Overview and notices その他概要・特記事項 | | Building confirmation number: the East No. -12-02-0344 (2012 March 16), Development total area: 18859.37m2 Car space (all households), Tokyo Electric Power Co., Public Water Supply, This sewage, City gas 建築確認番号:第東日本-12-02-0344号(平成24年3月16日)、開発総面積:18859.37m2 カースペース(全戸)、東京電力、公営水道、本下水、都市ガス | Company profile 会社概要 | | <Land seller ・ Building seller> Minister of Land, Infrastructure and Transport (13) No. 687 Minister of Land, Infrastructure and Transport permit (JP -22) No. 4237 (one company) Real Estate Association (Corporation) metropolitan area real estate Fair Trade Council member Sumitomo Forestry Co., Ltd. Housing Division Town Planning sales department Yubinbango100-8270 Otemachi, Chiyoda-ku, Tokyo 1-3-2 <marketing alliance (agency)> Minister of Land, Infrastructure and Transport (14) No. 220 (one company) Property distribution management Association (Corporation) Tokyo Metropolitan Government Building Lots and Buildings Transaction Business Association (Corporation) metropolitan area real estate Fair Trade Council member Sumitomo Forestry Home Service Co., Ltd. 160-0023 Tokyo Nishi-Shinjuku, Shinjuku-ku, 3-2-11 <土地売主・建物売主>国土交通大臣(13)第687号 国土交通大臣許可(特-22)第4237号(一社)不動産協会会員 (公社)首都圏不動産公正取引協議会加盟住友林業(株) 住宅事業本部 まちづくり営業部〒100-8270 東京都千代田区大手町1-3-2<販売提携(代理)>国土交通大臣(14)第220号(一社)不動産流通経営協会会員 (公社)東京都宅地建物取引業協会会員 (公社)首都圏不動産公正取引協議会加盟住友林業ホームサービス(株)〒160-0023 東京都新宿区西新宿3-2-11 |
Otherその他  ■ Exchanges of residents is also thriving! ※ This summer at the holding of the BBQ event (August 2013) Shooting
■住民の交流も盛んです!※今夏開催のBBQイベントにて(2013年8月)撮影
 It performs a wood procurement in consideration of the environment, Using high-quality Tama production cypress of the pillars and foundation. Such as to implement the Garden support operations through exclusive Gardener, Attention to detail of city planning. (95 Building / August 2012 shooting)
環境に配慮した木材調達を行い、柱と土台に高品質の多摩産ヒノキを使用。専属ガーデナーによるガーデンサポート運営を実施するなど、街づくりの細部にまで配慮。(95号棟/2012年8月撮影)
Model building Living (July 2013) Shooting ※ Sales already dwelling unitモデル棟 リビング(2013年7月)撮影※販売済住戸  Model building Living (July 2013) Shooting
モデル棟 リビング(2013年7月)撮影
Sale already cityscape photo分譲済街並み写真  11-minute walk from the "Keio Horinouchi" station. The same properties that "urban development of the tree house" of all 106 House is progressing steadily. Clear that the land 170 sq m or more, Lined with homes that provide us with the richness. (Streets, including the sale already dwelling unit ・ May 2012 shooting)
「京王堀之内」駅から徒歩11分。全106邸の“木の家の街づくり”が着々と進んでいる同物件。土地170m2以上というゆとり、豊かさを提供してくれる住まいが立ち並ぶ。(分譲済住戸を含む街並み・2012年5月撮影)
Kitchenキッチン  Model building Kitchen (June 2013) Shooting ※ Sales already dwelling unit
モデル棟 キッチン(2013年6月)撮影 ※販売済住戸
Bathroom浴室  bathroom( ※ Reference photograph)
浴室(※参考写真)
Other introspectionその他内観  Model building Japanese-style room (June 2013) Shooting ※ Sales already dwelling unit
モデル棟和室(2013年6月)撮影 ※販売済住戸
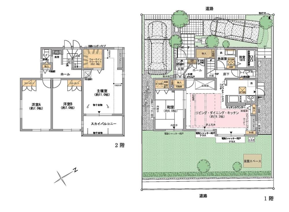
Floor plan間取り図  (95 Building), Price 56,800,000 yen, 4LDK, Land area 182.59 sq m , Building area 117.58 sq m
(95号棟)、価格5680万円、4LDK、土地面積182.59m2、建物面積117.58m2
Other Equipmentその他設備  Standard equipped with a dishwasher to all dwelling unit. We will reduce the burden of housework with excellent detergency. . (Same specifications)
食器洗い乾燥機を全住戸に標準装備。優れた洗浄力で家事の負担を軽減いたします。。(同仕様)
 The IH cooking heater adopted, Cleaning is also easy. Also the water discharge without touching hands with touchless faucet ・ You can stop water. (Same specifications)
IHクッキングヒーターを採用し、お掃除もカンタンに。またタッチレス水栓で手を触れずに吐水・止水ができます。(同仕様)
Cooling and heating ・ Air conditioning冷暖房・空調設備  The room the entire warms gas hot water floor heating from below. Dust dance difficult because the wind does not come out, It is heating-friendly to the body in the cozy warmth. . (Same specifications)
足元からお部屋全体が温まるガス温水式床暖房。風が出ないのでホコリが舞いにくく、心地よい暖かさで体にやさしい暖房です。。(同仕様)
Power generation ・ Hot water equipment発電・温水設備  Reduction of CO2 emissions ・ To contribute to the prevention of global warming, High efficiency TES heat source machine adopts the "Eco Jaws". Achieve a reduction of the improvement and the running cost of the hot water supply efficiency. . (Same specifications)
CO2排出量の削減・地球温暖化防止に貢献する、高効率TES熱源機「エコジョーズ」を採用。給湯効率の向上とランニングコストの削減を実現。。(同仕様)
The entire compartment Figure全体区画図  ■ The entire compartment view (2013 December 16, 2009)
■全体区画図(2013年12月16日現在)
Supermarketスーパー  70m to food one Hachioji Horinouchi shop
フードワン八王子堀之内店まで70m
Primary school小学校  Municipal Akibadai until elementary school 1270m
市立秋葉台小学校まで1270m
Park公園  260m to Horinouchi Terasawa woodlands park
堀之内寺沢里山公園まで260m
Local guide map現地案内図  ■ Local guide map (please come 102 Building = to the sales center)
■現地案内図(102号棟=販売センターへお越しください)
 ■ Local guide map (narrow range)
■現地案内図(狭域)
Security equipment防犯設備  In each dwelling unit is, Equipped with home security. As each sensor detects an abnormal, Secom ・ It will be sent to the control center.
各住戸には、ホームセキュリティを標準装備。各センサーが異常を感知すると、セコム・コントロールセンターへ送信されます。
Shopping centreショッピングセンター  Green Walk to Tama 1960m
ぐりーんうぉーく多摩まで1960m
Other Environmental Photoその他環境写真  Yoshiki 410m until the green road
由木緑道まで410m
Shopping centreショッピングセンター  870m until VIA Nagaike
VIAナガイケまで870m
Location
|