New Homes » Kanto » Tokyo » Hachioji
 
| | Hachioji, Tokyo 東京都八王子市 |
| JR Chuo Line "Takao" walk 8 minutes JR中央線「高尾」歩8分 |
| ☆ Local tours held ☆ ! ! 1 / 1~5 (water ~ Day) ◎ Takao Station 8 min. Walk ◎ good hit Tsukehi to the south slope ◎ enhancement of equipment specifications ◎ peace of mind security ☆現地見学会開催☆!!1/1~5(水 ~ 日) ◎高尾駅徒歩8分 ◎南傾斜に付陽当たり良好 ◎充実の設備仕様◎安心セキュリティ |
| ◆ ENEOS electric floor heating system Amusing over ◆ Dishwasher ・ Built-in water purifier ◆ No. 24 water heater eco Jaws ◆ Secom ・ Home Security (3150 / Month) ◆ High Clean board (formaldehyde absorption decomposition gypsum board) ◆ Echo 24 (gas leak ・ Forgetting to turn off such as an automatic sensing ・ Automatic report) ◆ Home warranty insurance charm dwelling join ◆ Flat 35S interest rate Plan B Available ◆ENEOS電気床暖房システム ゆかいーな◆食洗機・ビルトイン浄水器◆24号給湯器エコジョーズ◆セコム・ホームセキュリティ(3150/月)◆ハイクリンボード(ホルムアルデヒド吸収分解せっこうボード)◆エコー24(ガス漏れ・消し忘れ等を自動感知・自動通報)◆住宅瑕疵担保保険まもりすまい加入◆フラット35S金利Bプラン利用可 |
物件の特徴 物件の特徴 | | We have adapted to the flat 35 criteria in the following item. <Compatibility condition> ● energy savings 以下の項目でフラット35基準に適合しております。<適合条件>●省エネルギー性 | Property name 物件名 | | [Takao Station 8 min. Walk Hachioji Todori cho] Newly built condominiums 【高尾駅 徒歩8分 八王子市廿里町】 新築分譲住宅 | Price 価格 | | 37,800,000 yen ~ 40,600,000 yen 3780万円 ~ 4060万円 | Floor plan 間取り | | 3LDK ・ 4LDK 3LDK・4LDK | Units sold 販売戸数 | | 8 units 8戸 | Total units 総戸数 | | 18 units 18戸 | Land area 土地面積 | | 125.12 sq m ~ 165.43 sq m (37.84 tsubo ~ 50.04 tsubo) (measured) 125.12m2 ~ 165.43m2(37.84坪 ~ 50.04坪)(実測) | Building area 建物面積 | | 84.46 sq m ~ 105.16 sq m (25.54 tsubo ~ 31.81 tsubo) (measured) 84.46m2 ~ 105.16m2(25.54坪 ~ 31.81坪)(実測) | Driveway burden-road 私道負担・道路 | | Road width: 4.8m ~ 5.25m, Asphaltic pavement, Driveway equity Yes: 303 sq m × 1 / 18, Alley-like portion Yes: 42.33 sq m (5 Building), 39.42 sq m (6 Building), Development Area outside the land equity Yes: (3 ・ 5 ・ 6 ・ 9 ・ 10 ・ 11 ・ 12 ・ 13 Building) 道路幅:4.8m ~ 5.25m、アスファルト舗装、私道持分有:303m2×1/18、路地状部分有:42.33m2(5号棟)、39.42m2(6号棟)、開発区域外土地持分有:(3・5・6・9・10・11・12・13号棟) | Completion date 完成時期(築年月) | | March 2013 2013年3月 | Address 住所 | | Hachioji, Tokyo Todori cho 東京都八王子市廿里町 | Traffic 交通 | | JR Chuo Line "Takao" walk 8 minutes Keiō Takao Line "Takao" walk 8 minutes JR中央線「高尾」歩8分 京王高尾線「高尾」歩8分
| Related links 関連リンク | | [Related Sites of this company] 【この会社の関連サイト】 | Person in charge 担当者より | | Rep Hasegawa Nobuyuki Age: 20 Daigyokai experience: taking advantage of the five-year lease sales experience, Customer requirements ・ We will answer to hope. Good footwork is my flavor. 担当者長谷川 信行年齢:20代業界経験:5年賃貸営業の経験を活かして、お客様のご要望・ご希望にお答え致します。フットワークの良さが私の持ち味です。 | Contact お問い合せ先 | | TEL: 0800-603-0794 [Toll free] mobile phone ・ Also available from PHS Caller ID is not notified Please contact the "saw SUUMO (Sumo)" If it does not lead, If the real estate company TEL:0800-603-0794【通話料無料】携帯電話・PHSからもご利用いただけます 発信者番号は通知されません 「SUUMO(スーモ)を見た」と問い合わせください つながらない方、不動産会社の方は
| Event information イベント情報 | | Local tours (Please be sure to ask in advance) schedule / Every Saturday, Sunday and public holidays time / 11:00 ~ At 16:00 the time, It will be held on-site tours. Feel free to properties in local please your visit is, of course, Supermarkets and schools ・ I will consider it carefully also describes the surrounding environment such as a hospital. Also, Please feel free to be local staff consultation, such as that and funding calculations do not know. ※ Even if it does not fit the schedule and your time Please feel free to contact us. ※ For smooth guidance, When towards the local is In advance to thank you for your phone to toll-free. ※ In other local, Tours are being held. Or for more information to visit the HP, Please contact us by phone. ◆ ◇ ◆ ◇ ◆ ◇ ◆ ◇ ◆ ◇ ◆ ◇ ◆ ◇ ◆ ◇ ◆ ◇ ◆ ◇ ◆ ◇ ◆ ◇ ◆ ◇ ◆ ◇ ◆ ◇ ◆ ◇ ◆ ◇ ◆ ◇ ◆ ◇ [Your sale support campaign] The customers who got the request of the sale to the customer's wish "Asahi affection rice 2kg gift" is, It will be posted to your sale Listing to Sumo. ・ The customer contracts concluded "Asahi affection rice 5Kg gift" ・ soil ・ Day ・ In Bazaar venue for coming to the holiday "season of the bouquet" gift ※ The Bazaar venue, Ya baby bed We offer a Children's Playground. Even in young children, Please your coming in peace. ◆ ◇ ◆ ◇ ◆ ◇ ◆ ◇ ◆ ◇ ◆ ◇ ◆ ◇ ◆ ◇ ◆ ◇ ◆ ◇ ◆ ◇ ◆ ◇ ◆ ◇ ◆ ◇ ◆ ◇ ◆ ◇ ◆ ◇ ◆ ◇ ◆ ◇ 現地見学会(事前に必ずお問い合わせください)日程/毎週土日祝時間/11:00 ~ 16:00上記時間にて、現地見学会を開催致します。お気軽にご来場ください現地にて物件はもちろん、スーパーや学校・病院など周辺環境についても丁寧に説明させて頂きます。また、分からない事や資金計算などの御相談も現地スタッフにお気軽にどうぞ。※日程やお時間が合わない場合も お気軽にご相談ください。※スムーズなご案内の為に、現地へ向かう際は 事前にフリーダイヤルへお電話をお願い致します。※他現地でも、見学会開催中です。 詳細はHPをご覧になるか、お電話にてお問合せ下さい。◆◇◆◇◆◇◆◇◆◇◆◇◆◇◆◇◆◇◆◇◆◇◆◇◆◇◆◇◆◇◆◇◆◇◆◇◆◇【ご売却応援キャンペーン】 売却のご依頼を頂いたお客様には『朝日あいじょう米2kgプレゼント』ご希望のお客様には、スーモにご売却物件を掲載いたします。・ご成約のお客様には『朝日あいじょう米5Kgプレゼント』・土・日・祝日にバザール会場ご来場で『季節の花束』プレゼント※バザール会場には、ベビーベッドや キッズスペースをご用意しております。 小さなお子様連れでも、安心してご来場ください。◆◇◆◇◆◇◆◇◆◇◆◇◆◇◆◇◆◇◆◇◆◇◆◇◆◇◆◇◆◇◆◇◆◇◆◇◆◇ | Most price range 最多価格帯 | | 39 million yen (4 units) 3900万円台(4戸) | Building coverage, floor area ratio 建ぺい率・容積率 | | Kenpei rate: 40%, Volume ratio: 80% 建ペい率:40%、容積率:80% | Time residents 入居時期 | | Immediate available 即入居可 | Land of the right form 土地の権利形態 | | Ownership 所有権 | Structure and method of construction 構造・工法 | | Wooden 2-story 木造2階建 | Use district 用途地域 | | One low-rise 1種低層 | Land category 地目 | | Residential land 宅地 | Other limitations その他制限事項 | | Regulations have by the Landscape Act, Regulations have by the Aviation Law, Height district, Height ceiling Yes, On-site step Yes, District planning area 景観法による規制有、航空法による規制有、高度地区、高さ最高限度有、敷地内段差有、地区計画区域 | Overview and notices その他概要・特記事項 | | Contact: Hasegawa Nobuyuki, Building confirmation number: 00213 ~ 00254 担当者:長谷川 信行、建築確認番号:00213 ~ 00254 | Company profile 会社概要 | | <Mediation> Minister of Land, Infrastructure and Transport (7) No. 003744 No. Asahi Land and Building Co., Ltd. Hachioji business 2 Division Yubinbango192-0083 Hachioji, Tokyo Asahi-cho, 10-3 <仲介>国土交通大臣(7)第003744号朝日土地建物(株)八王子店営業2課〒192-0083 東京都八王子市旭町10-3 |
Sale already cityscape photo分譲済街並み写真  Now also beautiful season newly built single-family autumn leaves of rich living environment.
豊かな住環境の新築戸建紅葉も美しい季節になりました。
 Cityscape in harmony with beautiful nature
美しい自然と調和する街並み
Local appearance photo現地外観写真  ◎ good hit Tsukehi south road ◎ 2 cars garage Bun'yu 12 Building 37.8 million yen was price change
◎南道路に付陽当たり良好 ◎車庫2台分有 12号棟3780万円価格変更しました
 ◎ south road ◎ corner lot 8 Building
◎南道路 ◎角地 8号棟
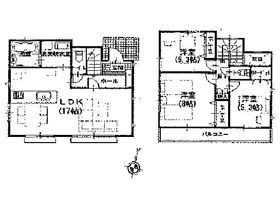
Floor plan間取り図  (1 Building), Price 39,600,000 yen, 4LDK, Land area 127.05 sq m , Building area 98.32 sq m
(1号棟)、価格3960万円、4LDK、土地面積127.05m2、建物面積98.32m2
Local appearance photo現地外観写真  An 8-minute walk station, Commuting of room in the morning because the starting station of ・ It is also attractive can school is.
駅徒歩8分、始発駅なので朝はゆとりの通勤・通学ができるのも魅力です。
Livingリビング  ◎ with floor heating ◎ LDK spacious 20 Pledge 18 Building
◎床暖房付き ◎LDK広々20帖 18号棟
Bathroom浴室  ◎ with bathroom dryer 7 Building
◎浴室乾燥機付き 7号棟
Kitchenキッチン  ◎ dishwasher ◎ with water purifier 7 Building
◎食洗機 ◎浄水器付き 7号棟
Balconyバルコニー  ◎ 9.9 sq m ◎ south wide balcony 13 Building
◎9.9m2 ◎南ワイドバルコニー 13号棟
Supermarketスーパー  1100m until Keiosutoa Takao shop
京王ストア高尾店まで1100m
Sale already cityscape photo分譲済街並み写真  Cityscape of night
夜の街並み
 The entire compartment Figure
全体区画図
Floor plan間取り図  (7 Building), Price 39,600,000 yen, 4LDK, Land area 125.12 sq m , Building area 98.12 sq m
(7号棟)、価格3960万円、4LDK、土地面積125.12m2、建物面積98.12m2
Local appearance photo現地外観写真  Zenshitsuminami facing sun per good 1 Building
全室南向き陽当り良好 1号棟
Junior high school中学校  990m to Hachioji City Asakawa junior high school
八王子市立浅川中学校まで990m
Sale already cityscape photo分譲済街並み写真  Cityscape of night
夜の街並み
Floor plan間取り図  (8 Building), Price 39,800,000 yen, 4LDK, Land area 125.84 sq m , Building area 98.54 sq m
(8号棟)、価格3980万円、4LDK、土地面積125.84m2、建物面積98.54m2
Local appearance photo現地外観写真  Per Tsukehi good on the south side 5m road 7 Building
南側5m道路に付陽当り良好 7号棟
Primary school小学校  850m to Hachioji City Asakawa Elementary School
八王子市立浅川小学校まで850m
Floor plan間取り図  (16 Building), Price 40,600,000 yen, 4LDK, Land area 132.54 sq m , Building area 97.7 sq m
(16号棟)、価格4060万円、4LDK、土地面積132.54m2、建物面積97.7m2
Kindergarten ・ Nursery幼稚園・保育園  Revered Takao to nursery school 956m
敬愛たかお保育園まで956m
Floor plan間取り図  Newly built detached houses of the rich living environment
豊かな住環境の新築戸建
 Newly built detached houses of the rich living environment
豊かな住環境の新築戸建
 (13 Building), Price 39,800,000 yen, 4LDK, Land area 165.43 sq m , Building area 99.36 sq m
(13号棟)、価格3980万円、4LDK、土地面積165.43m2、建物面積99.36m2
 Newly built detached houses of the rich living environment
豊かな住環境の新築戸建
Presentプレゼント ![Present. [Your sale support campaign] The customers who got the request of the sale to the customer's wish "Asahi affection rice 2kg gift" is, It will be posted to your sale Listing to Sumo. ・ The customer contracts concluded "Asahi affection rice 5Kg gift" ・ soil ・ Day ・ In Bazaar venue for coming to the holiday "season of the bouquet" gift ※ The Bazaar venue, Ya baby bed We offer a Children's Playground. Even in young children, Please your coming in peace.](/images/tokyo/hachioji/15cd650136.jpg) [Your sale support campaign] The customers who got the request of the sale to the customer's wish "Asahi affection rice 2kg gift" is, It will be posted to your sale Listing to Sumo. ・ The customer contracts concluded "Asahi affection rice 5Kg gift" ・ soil ・ Day ・ In Bazaar venue for coming to the holiday "season of the bouquet" gift ※ The Bazaar venue, Ya baby bed We offer a Children's Playground. Even in young children, Please your coming in peace.
【ご売却応援キャンペーン】 売却のご依頼を頂いたお客様には『朝日あいじょう米2kgプレゼント』ご希望のお客様には、スーモにご売却物件を掲載いたします。・ご成約のお客様には『朝日あいじょう米5Kgプレゼント』・土・日・祝日にバザール会場ご来場で『季節の花束』プレゼント※バザール会場には、ベビーベッドや キッズスペースをご用意しております。 小さなお子様連れでも、安心してご来場ください。
Kindergarten ・ Nursery幼稚園・保育園  Mikoromo until kindergarten 1256m
みころも幼稚園まで1256m
Other Environmental Photoその他環境写真  230m to Hakusan Shrine
白山神社まで230m
Location
|