New Homes » Kanto » Tokyo » Hachioji
 
| | Hachioji, Tokyo 東京都八王子市 |
| JR Chuo Line "Takao" walk 14 minutes JR中央線「高尾」歩14分 |
| "Hachioji Higashiasakawa cho ・ All one building. " 36 square meters, Shaping land, Car space parallel two Allowed all Shitsuminami direction, Two-sided lighting, Face-to-face kitchen, 19 Pledge LDK, Living stairs, Of enhancement equipment 4LDK 「八王子市東浅川町・全1棟」 36坪、整形地、カースペース並列2台可全室南向き、2面採光、対面キッチン、19帖LDK、リビング階段、充実設備の4LDK |
| ■ Housing Performance Warranty ■ Adjacent building distance 2m or more, There is a sense of liberation per south passage ■ Up the efficiency of the laundry by placing wash basin and bath to the second floor, Housework easier flow line adopted that you can use the bath without any hesitation when visitors ■住宅性能保証付■隣接建物距離2m以上、南側通路につき解放感あり■洗面とお風呂を2階に配置することで洗濯物の効率をアップ、来客時も気兼ねなくお風呂を使える家事ラク動線採用 |
Features pickup 特徴ピックアップ | | Parking two Allowed / Immediate Available / 2 along the line more accessible / LDK18 tatami mats or more / Super close / System kitchen / Bathroom Dryer / Yang per good / All room storage / A quiet residential area / Starting station / Shaping land / Washbasin with shower / Face-to-face kitchen / Toilet 2 places / Bathroom 1 tsubo or more / 2-story / South balcony / Zenshitsuminami direction / Otobasu / Warm water washing toilet seat / Underfloor Storage / The window in the bathroom / TV monitor interphone / Ventilation good / All living room flooring / Dish washing dryer / Water filter / Living stairs / City gas / All rooms are two-sided lighting / Attic storage 駐車2台可 /即入居可 /2沿線以上利用可 /LDK18畳以上 /スーパーが近い /システムキッチン /浴室乾燥機 /陽当り良好 /全居室収納 /閑静な住宅地 /始発駅 /整形地 /シャワー付洗面台 /対面式キッチン /トイレ2ヶ所 /浴室1坪以上 /2階建 /南面バルコニー /全室南向き /オートバス /温水洗浄便座 /床下収納 /浴室に窓 /TVモニタ付インターホン /通風良好 /全居室フローリング /食器洗乾燥機 /浄水器 /リビング階段 /都市ガス /全室2面採光 /屋根裏収納 | Price 価格 | | 34,800,000 yen 3480万円 | Floor plan 間取り | | 4LDK 4LDK | Units sold 販売戸数 | | 1 units 1戸 | Total units 総戸数 | | 1 units 1戸 | Land area 土地面積 | | 120.9 sq m (36.57 tsubo) (measured) 120.9m2(36.57坪)(実測) | Building area 建物面積 | | 99.97 sq m (30.24 square meters) 99.97m2(30.24坪) | Driveway burden-road 私道負担・道路 | | Nothing, West 3.3m width 無、西3.3m幅 | Completion date 完成時期(築年月) | | September 2013 2013年9月 | Address 住所 | | Hachioji, Tokyo Higashiasakawa cho 東京都八王子市東浅川町 | Traffic 交通 | | JR Chuo Line "Takao" walk 14 minutes Keiō Takao Line "Hazama" walk 20 minutes JR中央線「高尾」歩14分 京王高尾線「狭間」歩20分
| Related links 関連リンク | | [Related Sites of this company] 【この会社の関連サイト】 | Person in charge 担当者より | | Rep Watanabe Taiki Age: I will do my best to be able to contribute to the 30's your smile. 担当者渡邊 大樹年齢:30代お客様の笑顔に貢献できるよう頑張ります。 | Contact お問い合せ先 | | TEL: 0800-809-8309 [Toll free] mobile phone ・ Also available from PHS Caller ID is not notified Please contact the "saw SUUMO (Sumo)" If it does not lead, If the real estate company TEL:0800-809-8309【通話料無料】携帯電話・PHSからもご利用いただけます 発信者番号は通知されません 「SUUMO(スーモ)を見た」と問い合わせください つながらない方、不動産会社の方は
| Building coverage, floor area ratio 建ぺい率・容積率 | | 60% ・ 200% 60%・200% | Time residents 入居時期 | | Immediate available 即入居可 | Land of the right form 土地の権利形態 | | Ownership 所有権 | Structure and method of construction 構造・工法 | | Wooden 2-story 木造2階建 | Use district 用途地域 | | One dwelling 1種住居 | Other limitations その他制限事項 | | Others: set back already その他:セットバック済 | Overview and notices その他概要・特記事項 | | Contact: Watanabe Big tree, Facilities: Public Water Supply, This sewage, City gas, Building confirmation number: the H25 building certification No. KBI00068, Parking: car space 担当者:渡邊 大樹、設備:公営水道、本下水、都市ガス、建築確認番号:第H25確認建築KBI00068号、駐車場:カースペース | Company profile 会社概要 | | <Mediation> Governor of Tokyo (7) No. 050689 (Corporation) Tokyo Metropolitan Government Building Lots and Buildings Transaction Business Association (Corporation) metropolitan area real estate Fair Trade Council member Century 21 (Ltd.) house Engineering Management sales Yubinbango192-0073 Hachioji, Tokyo Teramachi 69 <仲介>東京都知事(7)第050689号(公社)東京都宅地建物取引業協会会員 (公社)首都圏不動産公正取引協議会加盟センチュリー21(株)住宅工営販売〒192-0073 東京都八王子市寺町69 |
Local appearance photo現地外観写真  Newly built single-family Hachioji Higashiasakawa cho
八王子市東浅川町の新築一戸建て
 Local appearance photo
現地外観写真
 Local appearance photo
現地外観写真
Parking lot駐車場  Parking two Allowed
駐車2台可
Kitchenキッチン  Face-to-face dishwasher with a system kitchen
対面式の食洗機付システムキッチン
Livingリビング  Spacious 19.3 Pledge LDK
広々19.3帖LDK
 With a convenient housework counters that you can or put the PC next to the kitchen, Living stairs
キッチンの横にはパソコンを置いたりできる便利な家事カウンター付、リビング階段
Non-living roomリビング以外の居室  Living a continuous Western-style
リビングと連続した洋室
Bathroom浴室  Sitz bath can be a multi-step tub
半身浴可能なマルチステップ浴槽
Wash basin, toilet洗面台・洗面所  Three-sided mirror vanity, Shampoo with Dresser
3面鏡洗面化粧台、シャンプードレッサー付
Toiletトイレ  Bidet function toilet
ウォシュレット機能付トイレ
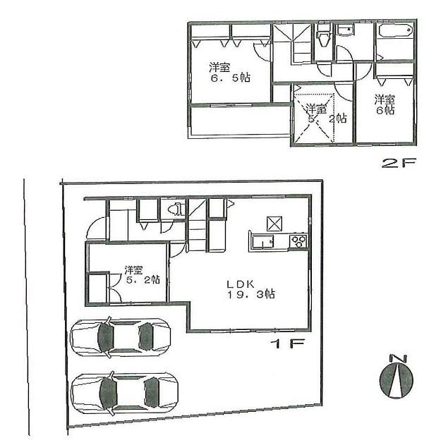
Floor plan間取り図  34,800,000 yen, 4LDK, Land area 120.9 sq m , Building area 99.97 sq m Zenshitsuminami facing 4LDK
3480万円、4LDK、土地面積120.9m2、建物面積99.97m2 全室南向き4LDK
Supermarketスーパー  Ecos until Higashiasakawa shop 335m
エコス東浅川店まで335m
 732m until Gourmet City Takao shop
グルメシティ高尾店まで732m
Shopping centreショッピングセンター  Ito-Yokado 863m to Hachioji
イトーヨーカドー八王子店まで863m
Primary school小学校  610m to Hachioji Municipal Higashiasakawa Elementary School
八王子市立東浅川小学校まで610m
Junior high school中学校  136m to Hachioji Municipal Ryonan junior high school
八王子市立陵南中学校まで136m
Park公園  529m until Ryonan park
陵南公園まで529m
Hospital病院  510m until Kondo internal medicine clinic
近藤内科医院まで510m
Location
|