New Homes » Kanto » Tokyo » Hachioji
 
| | Hachioji, Tokyo 東京都八王子市 |
| JR Chuo Line "Hachioji" bus 5 minutes Owada estates under step 2 minutes JR中央線「八王子」バス5分大和田団地下歩2分 |
| ☆ Local tours held ☆ ! ! 1 / 1~5 (water ~ Day) ◎ south 6m public road ◎ good per yang ◎ flat 35S Available ◎ parking two possible ◎ with solar power system ◎ super close (400m) ☆現地見学会開催☆!!1/1~5(水 ~ 日) ◎南6m公道 ◎陽当たり良好 ◎フラット35S利用可 ◎駐車2台可能 ◎太陽光発電システム付 ◎スーパー近隣(400m) |
| Measures to conserve energy, Corresponding to the flat-35S, Solar power system, Parking two Allowed, 2 along the line more accessible, Super close, Immediate Available, Facing south, System kitchen, Bathroom Dryer, Yang per good, All room storage, Siemens south road, A quiet residential area, Or more before road 6m, Corner lotese-style room, Starting station, Shaping land, Washbasin with shower, Face-to-face kitchen, Barrier-free, Toilet 2 places, Bathroom 1 tsubo or more, 2-story, South balcony, Double-glazing, Otobasu, Warm water washing toilet seat, Underfloor Storage, The window in the bathroom, TV monitor interphone, Ventilation good, All room 6 tatami mats or more, City gas, Flat terrain 省エネルギー対策、フラット35Sに対応、太陽光発電システム、駐車2台可、2沿線以上利用可、スーパーが近い、即入居可、南向き、システムキッチン、浴室乾燥機、陽当り良好、全居室収納、南側道路面す、閑静な住宅地、前道6m以上、角地、和室、始発駅、整形地、シャワー付洗面台、対面式キッチン、バリアフリー、トイレ2ヶ所、浴室1坪以上、2階建、南面バルコニー、複層ガラス、オートバス、温水洗浄便座、床下収納、浴室に窓、TVモニタ付インターホン、通風良好、全居室6畳以上、都市ガス、平坦地 |
Features pickup 特徴ピックアップ | | Measures to conserve energy / Corresponding to the flat-35S / Solar power system / Parking two Allowed / Immediate Available / 2 along the line more accessible / Super close / Facing south / System kitchen / Bathroom Dryer / Yang per good / All room storage / Siemens south road / A quiet residential area / Or more before road 6m / Corner lot / Japanese-style room / Starting station / Shaping land / Washbasin with shower / Face-to-face kitchen / Barrier-free / Toilet 2 places / Bathroom 1 tsubo or more / 2-story / South balcony / Double-glazing / Otobasu / Warm water washing toilet seat / Underfloor Storage / The window in the bathroom / TV monitor interphone / Ventilation good / All room 6 tatami mats or more / City gas / Flat terrain 省エネルギー対策 /フラット35Sに対応 /太陽光発電システム /駐車2台可 /即入居可 /2沿線以上利用可 /スーパーが近い /南向き /システムキッチン /浴室乾燥機 /陽当り良好 /全居室収納 /南側道路面す /閑静な住宅地 /前道6m以上 /角地 /和室 /始発駅 /整形地 /シャワー付洗面台 /対面式キッチン /バリアフリー /トイレ2ヶ所 /浴室1坪以上 /2階建 /南面バルコニー /複層ガラス /オートバス /温水洗浄便座 /床下収納 /浴室に窓 /TVモニタ付インターホン /通風良好 /全居室6畳以上 /都市ガス /平坦地 | Event information イベント情報 | | Local tours (Please be sure to ask in advance) schedule / Every Saturday, Sunday and public holidays time / 11:00 ~ At 16:00 the time, It will be held on-site tours. Feel free to properties in local please your visit is, of course, Supermarkets and schools ・ I will consider it carefully also describes the surrounding environment such as a hospital. Also, Please feel free to be local staff consultation, such as that and funding calculations do not know. ※ Even if it does not fit the schedule and your time Please feel free to contact us. ※ For smooth guidance, When towards the local is In advance to thank you for your phone to toll-free. ※ In other local, Tours are being held. Or for more information to visit the HP, Please contact us by phone. ◆ ◇ ◆ ◇ ◆ ◇ ◆ ◇ ◆ ◇ ◆ ◇ ◆ ◇ ◆ ◇ ◆ ◇ ◆ ◇ ◆ ◇ ◆ ◇ ◆ ◇ ◆ ◇ ◆ ◇ ◆ ◇ ◆ ◇ ◆ ◇ ◆ ◇ [Your sale support campaign] The customers who got the request of the sale to the customer's wish "Asahi affection rice 2kg gift" is, It will be posted to your sale Listing to Sumo. ・ The customer contracts concluded "Asahi affection rice 5Kg gift" ・ soil ・ Day ・ In Bazaar venue for coming to the holiday "season of the bouquet" gift ※ The Bazaar venue, Ya baby bed We offer a Children's Playground. Even in young children, Please your coming in peace. ◆ ◇ ◆ ◇ ◆ ◇ ◆ ◇ ◆ ◇ ◆ ◇ ◆ ◇ ◆ ◇ ◆ ◇ ◆ ◇ ◆ ◇ ◆ ◇ ◆ ◇ ◆ ◇ ◆ ◇ ◆ ◇ ◆ ◇ ◆ ◇ ◆ ◇ 現地見学会(事前に必ずお問い合わせください)日程/毎週土日祝時間/11:00 ~ 16:00上記時間にて、現地見学会を開催致します。お気軽にご来場ください現地にて物件はもちろん、スーパーや学校・病院など周辺環境についても丁寧に説明させて頂きます。また、分からない事や資金計算などの御相談も現地スタッフにお気軽にどうぞ。※日程やお時間が合わない場合も お気軽にご相談ください。※スムーズなご案内の為に、現地へ向かう際は 事前にフリーダイヤルへお電話をお願い致します。※他現地でも、見学会開催中です。 詳細はHPをご覧になるか、お電話にてお問合せ下さい。◆◇◆◇◆◇◆◇◆◇◆◇◆◇◆◇◆◇◆◇◆◇◆◇◆◇◆◇◆◇◆◇◆◇◆◇◆◇【ご売却応援キャンペーン】 売却のご依頼を頂いたお客様には『朝日あいじょう米2kgプレゼント』ご希望のお客様には、スーモにご売却物件を掲載いたします。・ご成約のお客様には『朝日あいじょう米5Kgプレゼント』・土・日・祝日にバザール会場ご来場で『季節の花束』プレゼント※バザール会場には、ベビーベッドや キッズスペースをご用意しております。 小さなお子様連れでも、安心してご来場ください。◆◇◆◇◆◇◆◇◆◇◆◇◆◇◆◇◆◇◆◇◆◇◆◇◆◇◆◇◆◇◆◇◆◇◆◇◆◇ | Price 価格 | | 25,800,000 yen ・ 26,800,000 yen 2580万円・2680万円 | Floor plan 間取り | | 4LDK 4LDK | Units sold 販売戸数 | | 2 units 2戸 | Total units 総戸数 | | 2 units 2戸 | Land area 土地面積 | | 117.27 sq m (35.47 tsubo) (measured) 117.27m2(35.47坪)(実測) | Building area 建物面積 | | 93.55 sq m ・ 94.56 sq m (28.29 tsubo ・ 28.60 tsubo) (measured) 93.55m2・94.56m2(28.29坪・28.60坪)(実測) | Driveway burden-road 私道負担・道路 | | Road width: 6m, Asphaltic pavement 道路幅:6m、アスファルト舗装 | Completion date 完成時期(築年月) | | September 2013 2013年9月 | Address 住所 | | Hachioji, Tokyo Fujimi 東京都八王子市富士見町 | Traffic 交通 | | JR Chuo Line "Hachioji" bus 5 minutes Owada estates under step 2 minutes Keio Line "Keio Hachioji" bus 7 minutes Owada estates under step 2 minutes JR Yokohama Line "Hachioji" bus 5 minutes Owada estates under step 2 minutes JR中央線「八王子」バス5分大和田団地下歩2分 京王線「京王八王子」バス7分大和田団地下歩2分 JR横浜線「八王子」バス5分大和田団地下歩2分
| Related links 関連リンク | | [Related Sites of this company] 【この会社の関連サイト】 | Person in charge 担当者より | | Rep Fujisaki Kentaro Age: 20 Daigyokai experience: 2 years hard, We will be happy to help. Anything please consult. 担当者藤崎 健太朗年齢:20代業界経験:2年一生懸命、お手伝いさせて頂きます。何でもご相談ください。 | Contact お問い合せ先 | | TEL: 0800-601-5986 [Toll free] mobile phone ・ Also available from PHS Caller ID is not notified Please contact the "saw SUUMO (Sumo)" If it does not lead, If the real estate company TEL:0800-601-5986【通話料無料】携帯電話・PHSからもご利用いただけます 発信者番号は通知されません 「SUUMO(スーモ)を見た」と問い合わせください つながらない方、不動産会社の方は
| Sale schedule 販売スケジュール | | Will be sold on a first come, first served basis. Please feel free to contact us for more information. 先着順での販売となります。詳細はお気軽にお問合せ下さい。 | Building coverage, floor area ratio 建ぺい率・容積率 | | Kenpei rate: 50%, Volume ratio: 100% 建ペい率:50%、容積率:100% | Time residents 入居時期 | | Immediate available 即入居可 | Land of the right form 土地の権利形態 | | Ownership 所有権 | Structure and method of construction 構造・工法 | | Wooden 2-story 木造2階建 | Use district 用途地域 | | One low-rise 1種低層 | Land category 地目 | | Residential land 宅地 | Other limitations その他制限事項 | | Regulations have by the Landscape Act, Regulations have by the Aviation Law, Height district, Height ceiling Yes, Shade limit Yes 景観法による規制有、航空法による規制有、高度地区、高さ最高限度有、日影制限有 | Overview and notices その他概要・特記事項 | | Contact: Fujisaki Kentaro, Building confirmation number: 109400 ・ 109401, Also including solar power system cost to the price. 担当者:藤崎 健太朗、建築確認番号:109400・109401、価格に太陽光発電システム費用も含む。 | Company profile 会社概要 | | <Mediation> Minister of Land, Infrastructure and Transport (7) No. 003744 No. Asahi Land and Building Co., Ltd. Hachioji business Lesson 3 Yubinbango192-0083 Hachioji, Tokyo Asahi-cho, 10-3 <仲介>国土交通大臣(7)第003744号朝日土地建物(株)八王子店営業3課〒192-0083 東京都八王子市旭町10-3 |
Local appearance photo現地外観写真  Leafy subdivision within
緑豊かな分譲地内
 Local (12 May 2013) Shooting 1 Building
現地(2013年12月)撮影 1号棟
 Local (12 May 2013) Shooting Building 2
現地(2013年12月)撮影 2号棟
Livingリビング  Bright per sun happy living Building 2
明るい陽当たりが嬉しいリビング 2号棟
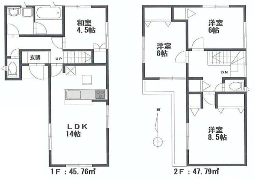
Floor plan間取り図  (1 Building), Price 26,800,000 yen, 4LDK, Land area 117.27 sq m , Building area 93.55 sq m
(1号棟)、価格2680万円、4LDK、土地面積117.27m2、建物面積93.55m2
Local appearance photo現地外観写真  It is a residential area with a calm Building 2
落ち着きある住宅街です 2号棟
Livingリビング  Lush vista from the window 1 Building
窓からは緑豊かな眺望 1号棟
Bathroom浴室  With bathroom dryer ・ Barrier-free type Building 2
浴室乾燥機付き・バリアフリータイプ 2号棟
Kitchenキッチン  Face-to-face kitchen overlooking the living room 1 Building
リビングを見渡せる対面キッチン 1号棟
Non-living roomリビング以外の居室  Enhance storage of the main bedroom 1 Building
主寝室の充実収納 1号棟
Local photos, including front road前面道路含む現地写真  High mechanical strength ・ High durability ・ Dairaito construction method were considered to health 1 Building
高強度・高耐久・健康にも配慮したダイライト工法 1号棟
Balconyバルコニー  Spacious balcony 1 Building
広々したバルコニー 1号棟
Supermarketスーパー  400m until Gourmet City Hachioji Owada store
グルメシティ八王子大和田店まで400m
The entire compartment Figure全体区画図  ◎ south 6m public road ◎ shaping land
◎南6m公道 ◎整形地
Floor plan間取り図  (Building 2), Price 25,800,000 yen, 4LDK, Land area 117.27 sq m , Building area 94.56 sq m
(2号棟)、価格2580万円、4LDK、土地面積117.27m2、建物面積94.56m2
Local appearance photo現地外観写真  Yang hit the south road Building 2
南道路の陽当たり 2号棟
Kitchenキッチン  Water purifier integrated system Kitchen Building 2
浄水器一体型システムキッチン 2号棟
Non-living roomリビング以外の居室  6 Pledge spacious Japanese-style Building 2
6帖のゆったりした和室 2号棟
Junior high school中学校  1600m to Hachioji Municipal Bulbul mountain junior high school
八王子市立ひよどり山中学校まで1600m
Local appearance photo現地外観写真  Open feeling of the southwest corner lot 1 Building
南西角地の開放感 1号棟
Non-living roomリビング以外の居室  All rooms dihedral SaiHikari Building 2
全室二面彩光 2号棟
Primary school小学校  750m to Hachioji Municipal Owada elementary school
八王子市立大和田小学校まで750m
Presentプレゼント ![Present. [Your sale support campaign] The customers who got the request of the sale to the customer's wish "Asahi affection rice 2kg gift" is, It will be posted to your sale Listing to Sumo. ・ The customer contracts concluded "Asahi affection rice 5Kg gift" ・ soil ・ Day ・ In Bazaar venue for coming to the holiday "season of the bouquet" gift ※ The Bazaar venue, Ya baby bed We offer a Children's Playground. Even in young children, Please your coming in peace.](/images/tokyo/hachioji/15cd650136.jpg) [Your sale support campaign] The customers who got the request of the sale to the customer's wish "Asahi affection rice 2kg gift" is, It will be posted to your sale Listing to Sumo. ・ The customer contracts concluded "Asahi affection rice 5Kg gift" ・ soil ・ Day ・ In Bazaar venue for coming to the holiday "season of the bouquet" gift ※ The Bazaar venue, Ya baby bed We offer a Children's Playground. Even in young children, Please your coming in peace.
【ご売却応援キャンペーン】 売却のご依頼を頂いたお客様には『朝日あいじょう米2kgプレゼント』ご希望のお客様には、スーモにご売却物件を掲載いたします。・ご成約のお客様には『朝日あいじょう米5Kgプレゼント』・土・日・祝日にバザール会場ご来場で『季節の花束』プレゼント※バザール会場には、ベビーベッドや キッズスペースをご用意しております。 小さなお子様連れでも、安心してご来場ください。
Location
|