New Homes » Kanto » Tokyo » Hachioji
 
| | Hachioji, Tokyo 東京都八王子市 |
| Keio Line "Keio Hachioji" 8 minutes Akatsuki-cho 1-chome, walk 3 minutes by bus 京王線「京王八王子」バス8分暁町1丁目歩3分 |
| ☆ Local tours held ☆ ! ! 1 / 1~5 (water ~ Day) ◎ flat 35S corresponding ◎ shaping land ◎ all room 6 quires more ・ All rooms are two-sided lighting ◎ LDK whole building 16 quires more ☆現地見学会開催☆!!1/1~5(水 ~ 日) ◎フラット35S対応 ◎整形地 ◎全居室6帖以上・全室二面採光 ◎LDK全棟16帖以上 |
| ◆ Asahi Kasei Hebel power board (37mm) Excellent fire resistance ・ Thermal insulation properties ・ Sound insulation ◆ Glad to wife Kitchen lift down ◆旭化成ヘーベルパワーボード(37mm) 優れた防火性・断熱性・遮音性◆奥様に嬉しい キッチンリフトダウン |
Property name 物件名 | | [Keio Hachioji Station Hachioji Akatsuki-cho] Newly built condominiums second term 【京王八王子駅 八王子市暁町】 新築分譲住宅2期 | Price 価格 | | 26,800,000 yen ・ 28.8 million yen 2680万円・2880万円 | Floor plan 間取り | | 3LDK + S (storeroom) 3LDK+S(納戸) | Units sold 販売戸数 | | 2 units 2戸 | Total units 総戸数 | | 3 units 3戸 | Land area 土地面積 | | 94.2 sq m (28.49 tsubo) (Registration) 94.2m2(28.49坪)(登記) | Building area 建物面積 | | 99.36 sq m (30.05 tsubo) (measured) 99.36m2(30.05坪)(実測) | Driveway burden-road 私道負担・道路 | | Road width: 6m, Asphaltic pavement 道路幅:6m、アスファルト舗装 | Completion date 完成時期(築年月) | | 2013 late October 2013年10月下旬 | Address 住所 | | Hachioji, Tokyo Akatsuki-cho, 2 東京都八王子市暁町2 | Traffic 交通 | | Keio Line "Keio Hachioji" 8 minutes Akatsuki-cho 1-chome, walk 3 minutes by bus JR Chuo Line "Hachioji" walk 34 minutes 京王線「京王八王子」バス8分暁町1丁目歩3分 JR中央線「八王子」歩34分
| Related links 関連リンク | | [Related Sites of this company] 【この会社の関連サイト】 | Person in charge 担当者より | | Rep Yamakoshi Tetsuro Age: 40 Daigyokai experience: the maximum of effort is 10 years your position, Be sure your desired properties we will introduce. 担当者山越 哲郎年齢:40代業界経験:10年お客様の立場になって最大限の努力をし、ご希望の物件を必ずご紹介させ ていただきます。 | Contact お問い合せ先 | | TEL: 0800-601-5986 [Toll free] mobile phone ・ Also available from PHS Caller ID is not notified Please contact the "saw SUUMO (Sumo)" If it does not lead, If the real estate company TEL:0800-601-5986【通話料無料】携帯電話・PHSからもご利用いただけます 発信者番号は通知されません 「SUUMO(スーモ)を見た」と問い合わせください つながらない方、不動産会社の方は
| Sale schedule 販売スケジュール | | Will be sold on a first come, first served basis. Please feel free to contact us for more information. 先着順での販売となります。詳細はお気軽にお問合せ下さい。 | Event information イベント情報 | | Local tours (Please be sure to ask in advance) schedule / Every Saturday, Sunday and public holidays time / 11:00 ~ At 16:00 the time, It will be held on-site tours. Feel free to properties in local please your visit is, of course, Supermarkets and schools ・ I will consider it carefully also describes the surrounding environment such as a hospital. Also, Please feel free to be local staff consultation, such as that and funding calculations do not know. ※ Even if it does not fit the schedule and your time Please feel free to contact us. ※ For smooth guidance, When towards the local is Beforehand, Or Sumo toll-free number Direct toll-free 0120-70-4311 Please give me a call to. ※ In other local, Tours are being held. Or for more information to visit the HP, Please contact us by phone. ◆ ◇ ◆ ◇ ◆ ◇ ◆ ◇ ◆ ◇ ◆ ◇ ◆ ◇ ◆ ◇ ◆ ◇ ◆ ◇ ◆ ◇ ◆ ◇ ◆ ◇ ◆ ◇ ◆ ◇ ◆ ◇ ◆ ◇ ◆ ◇ ◆ ◇ [Your sale support campaign] The customers who got the request of the sale to the customer's wish "Asahi affection rice 2kg gift" is, It will be posted to your sale Listing to Sumo. ・ The customer contracts concluded "Asahi affection rice 5Kg gift" ・ soil ・ Day ・ In Bazaar venue for coming to the holiday "season of the bouquet" gift ※ The Bazaar venue, Ya baby bed We offer a Children's Playground. Even in young children, Please your coming in peace. ◆ ◇ ◆ ◇ ◆ ◇ ◆ ◇ ◆ ◇ ◆ ◇ ◆ ◇ ◆ ◇ ◆ ◇ ◆ ◇ ◆ ◇ ◆ ◇ ◆ ◇ ◆ ◇ ◆ ◇ ◆ ◇ ◆ ◇ ◆ ◇ ◆ ◇ 現地見学会(事前に必ずお問い合わせください)日程/毎週土日祝時間/11:00 ~ 16:00上記時間にて、現地見学会を開催致します。お気軽にご来場ください現地にて物件はもちろん、スーパーや学校・病院など周辺環境についても丁寧に説明させて頂きます。また、分からない事や資金計算などの御相談も現地スタッフにお気軽にどうぞ。※日程やお時間が合わない場合も お気軽にご相談ください。※スムーズなご案内の為に、現地へ向かう際は 事前に、スーモのフリーダイヤルか 直通フリーダイヤル 0120-70-4311 へお電話をお願い致します。※他現地でも、見学会開催中です。 詳細はHPをご覧になるか、お電話にてお問合せ下さい。◆◇◆◇◆◇◆◇◆◇◆◇◆◇◆◇◆◇◆◇◆◇◆◇◆◇◆◇◆◇◆◇◆◇◆◇◆◇【ご売却応援キャンペーン】 売却のご依頼を頂いたお客様には『朝日あいじょう米2kgプレゼント』ご希望のお客様には、スーモにご売却物件を掲載いたします。・ご成約のお客様には『朝日あいじょう米5Kgプレゼント』・土・日・祝日にバザール会場ご来場で『季節の花束』プレゼント※バザール会場には、ベビーベッドや キッズスペースをご用意しております。 小さなお子様連れでも、安心してご来場ください。◆◇◆◇◆◇◆◇◆◇◆◇◆◇◆◇◆◇◆◇◆◇◆◇◆◇◆◇◆◇◆◇◆◇◆◇◆◇ | Building coverage, floor area ratio 建ぺい率・容積率 | | Kenpei rate: 60%, Volume ratio: 200% 建ペい率:60%、容積率:200% | Time residents 入居時期 | | Immediate available 即入居可 | Land of the right form 土地の権利形態 | | Ownership 所有権 | Structure and method of construction 構造・工法 | | Wooden 2-story 木造2階建 | Use district 用途地域 | | One middle and high 1種中高 | Land category 地目 | | Residential land 宅地 | Other limitations その他制限事項 | | Regulations have by the Landscape Act, Regulations have by the Aviation Law, Height district, Quasi-fire zones, Shade limit Yes, Law Article 22 zone 景観法による規制有、航空法による規制有、高度地区、準防火地域、日影制限有、法22条区域 | Overview and notices その他概要・特記事項 | | Contact: Yamakoshi Tetsuro, Building confirmation number: first H25SBC00825Y ・ The H25SBC00827Y 担当者:山越 哲郎、建築確認番号:第H25SBC00825Y・第H25SBC00827Y | Company profile 会社概要 | | <Mediation> Minister of Land, Infrastructure and Transport (7) No. 003744 No. Asahi Land and Building Co., Ltd. Hachioji business Lesson 3 Yubinbango192-0083 Hachioji, Tokyo Asahi-cho, 10-3 <仲介>国土交通大臣(7)第003744号朝日土地建物(株)八王子店営業3課〒192-0083 東京都八王子市旭町10-3 |
Local appearance photo現地外観写真  Local (11 May 2013) Shooting
現地(2013年11月)撮影
Livingリビング  3 Building site (November 2013) Shooting
3号棟現地(2013年11月)撮影
Bathroom浴室  1 Building site (November 2013) Shooting
1号棟現地(2013年11月)撮影
Sale already cityscape photo分譲済街並み写真  Local (11 May 2013) Shooting
現地(2013年11月)撮影
Floor plan間取り図  (1 Building), Price 26,800,000 yen, 3LDK+S, Land area 94.2 sq m , Building area 99.36 sq m
(1号棟)、価格2680万円、3LDK+S、土地面積94.2m2、建物面積99.36m2
Local appearance photo現地外観写真  Building 3 room (November 2013) Shooting
3号棟室内(2013年11月)撮影
Livingリビング  1 Building room (November 2013) Shooting
1号棟室内(2013年11月)撮影
Bathroom浴室  Building 3 room (November 2013) Shooting
3号棟室内(2013年11月)撮影
Kitchenキッチン  3 Building site (November 2013) Shooting
3号棟現地(2013年11月)撮影
Non-living roomリビング以外の居室  3 Building site (November 2013) Shooting
3号棟現地(2013年11月)撮影
Wash basin, toilet洗面台・洗面所  Building 3 room (November 2013) Shooting
3号棟室内(2013年11月)撮影
Supermarketスーパー  750m until Inageya Hachioji Nakano shop
いなげや八王子中野店まで750m
The entire compartment Figure全体区画図  ◎ All building shaping land
◎全棟整形地です
Otherその他  1 Building
1号棟
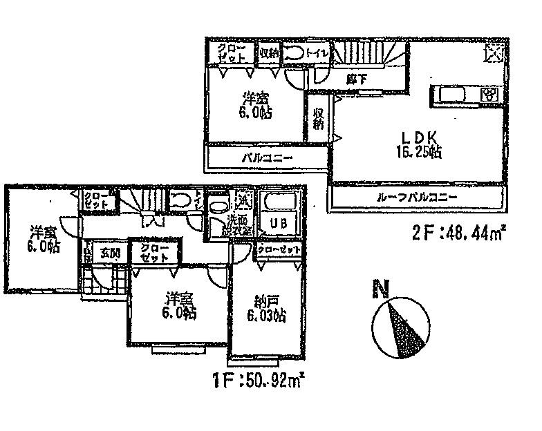
Floor plan間取り図  (3 Building), Price 28.8 million yen, 3LDK+S, Land area 94.2 sq m , Building area 99.36 sq m
(3号棟)、価格2880万円、3LDK+S、土地面積94.2m2、建物面積99.36m2
Local appearance photo現地外観写真  1 Building
1号棟
Kitchenキッチン  1 Building
1号棟
Junior high school中学校  970m to Hachioji Municipal Bulbul mountain junior high school
八王子市立ひよどり山中学校まで970m
Otherその他  Immediately exiting the north exit of Hachioji Station ☆ Also equipped with tie-up parking lot ☆
八王子駅の北口を出たすぐ☆提携駐車場も完備☆
Primary school小学校  1155m to Hachioji Municipal tenth elementary school
八王子市立第十小学校まで1155m
Otherその他  Children's Playground ・ Also equipped with crib. Please join us feel free to even small children.
キッズスペース・ベビーベッドも完備。小さなお子様連れでもお気軽にお越しください。
Presentプレゼント ![Present. [Your sale support campaign] The customers who got the request of the sale to the customer's wish "Asahi affection rice 2kg gift" is, It will be posted to your sale Listing to Sumo. ・ The customer contracts concluded "Asahi affection rice 5Kg gift" ・ soil ・ Day ・ In Bazaar venue for coming to the holiday "season of the bouquet" gift ※ The Bazaar venue, Ya baby bed We offer a Children's Playground. Even in young children, Please your coming in peace.](/images/tokyo/hachioji/15cd650136.jpg) [Your sale support campaign] The customers who got the request of the sale to the customer's wish "Asahi affection rice 2kg gift" is, It will be posted to your sale Listing to Sumo. ・ The customer contracts concluded "Asahi affection rice 5Kg gift" ・ soil ・ Day ・ In Bazaar venue for coming to the holiday "season of the bouquet" gift ※ The Bazaar venue, Ya baby bed We offer a Children's Playground. Even in young children, Please your coming in peace.
【ご売却応援キャンペーン】 売却のご依頼を頂いたお客様には『朝日あいじょう米2kgプレゼント』ご希望のお客様には、スーモにご売却物件を掲載いたします。・ご成約のお客様には『朝日あいじょう米5Kgプレゼント』・土・日・祝日にバザール会場ご来場で『季節の花束』プレゼント※バザール会場には、ベビーベッドや キッズスペースをご用意しております。 小さなお子様連れでも、安心してご来場ください。
Park公園  740m to Komiya Park
小宮公園まで740m
Location
|