New Homes » Kanto » Tokyo » Hachioji
 
| | Hachioji, Tokyo 東京都八王子市 |
| Keio Sagamihara Line "Minami-Osawa," a 15-minute Yarimizu center walk 3 minutes by bus 京王相模原線「南大沢」バス15分鑓水中央歩3分 |
| "Hachioji Yarimizu ・ All three buildings. " Tomafu 3 minutes location of, Spacious grounds from 39 square meters, Yang per good 4LDK in the car space two Allowed All rooms have two-sided lighting, All building face-to-face kitchen, A quiet residential area, Flat 35 「八王子市鑓水・全3棟」 停歩3分の立地、39坪からの広々敷地、カースペース2台可全室2面採光で陽当り良好な4LDK、全棟対面キッチン、閑静な住宅街、フラット35 |
| ■ 1 Building Front 6m road, Zenshitsuminami direction, 14 Pledge LDK, With storage of the main bedrooms 9 quires 2.2 Pledge ■ Building 2 With solar panels, 14 Pledge LDK, Master Bedroom 8 pledge, All rooms 6 quires more leeway certain floor plan ■ Building 3 16 Pledge LDK, The main bedroom 8.5 Pledge, Western-style all rooms 6 quires more, With solar panels ■1号棟 前面6m道路、全室南向き、14帖LDK、主寝室9帖2.2帖の収納付■2号棟 太陽光パネル付、14帖LDK、主寝室8帖、全室6帖以上のゆとりある間取り■3号棟 16帖LDK、主寝室8.5帖、洋室全室6帖以上、太陽光パネル付 |
Features pickup 特徴ピックアップ | | Parking two Allowed / Immediate Available / Super close / Facing south / System kitchen / Bathroom Dryer / Yang per good / All room storage / LDK15 tatami mats or more / Or more before road 6m / Japanese-style room / Shaping land / Washbasin with shower / Face-to-face kitchen / Toilet 2 places / Bathroom 1 tsubo or more / 2-story / South balcony / Double-glazing / Zenshitsuminami direction / Otobasu / Warm water washing toilet seat / Underfloor Storage / The window in the bathroom / TV monitor interphone / Ventilation good / All room 6 tatami mats or more / Water filter / City gas / All rooms are two-sided lighting 駐車2台可 /即入居可 /スーパーが近い /南向き /システムキッチン /浴室乾燥機 /陽当り良好 /全居室収納 /LDK15畳以上 /前道6m以上 /和室 /整形地 /シャワー付洗面台 /対面式キッチン /トイレ2ヶ所 /浴室1坪以上 /2階建 /南面バルコニー /複層ガラス /全室南向き /オートバス /温水洗浄便座 /床下収納 /浴室に窓 /TVモニタ付インターホン /通風良好 /全居室6畳以上 /浄水器 /都市ガス /全室2面採光 | Price 価格 | | 29,800,000 yen ・ 33,500,000 yen 2980万円・3350万円 | Floor plan 間取り | | 4LDK 4LDK | Units sold 販売戸数 | | 3 units 3戸 | Total units 総戸数 | | 3 units 3戸 | Land area 土地面積 | | 130.01 sq m ~ 148.25 sq m (39.32 tsubo ~ 44.84 square meters) 130.01m2 ~ 148.25m2(39.32坪 ~ 44.84坪) | Building area 建物面積 | | 94.76 sq m ~ 98.82 sq m (28.66 tsubo ~ 29.89 square meters) 94.76m2 ~ 98.82m2(28.66坪 ~ 29.89坪) | Driveway burden-road 私道負担・道路 | | Road width: 6m Including on-site extension part in Building 2 land area 道路幅:6m 2号棟土地面積に敷地延長部部含む | Completion date 完成時期(築年月) | | December 2013 2013年12月 | Address 住所 | | Hachioji, Tokyo Yarimizu 東京都八王子市鑓水 | Traffic 交通 | | Keio Sagamihara Line "Minami-Osawa," a 15-minute Yarimizu center walk 3 minutes by bus 京王相模原線「南大沢」バス15分鑓水中央歩3分
| Related links 関連リンク | | [Related Sites of this company] 【この会社の関連サイト】 | Person in charge 担当者より | | Rep Yamamoto HiroshiMakoto Age: I will do my best sincerely than 30's customers to enjoy the words of "thank you"! 担当者山本 浩慎年齢:30代お客様より心から「ありがとう」の言葉をいただけるように頑張ります! | Contact お問い合せ先 | | TEL: 0800-809-8309 [Toll free] mobile phone ・ Also available from PHS Caller ID is not notified Please contact the "saw SUUMO (Sumo)" If it does not lead, If the real estate company TEL:0800-809-8309【通話料無料】携帯電話・PHSからもご利用いただけます 発信者番号は通知されません 「SUUMO(スーモ)を見た」と問い合わせください つながらない方、不動産会社の方は
| Most price range 最多価格帯 | | 33 million yen (2 units) 3300万円台(2戸) | Building coverage, floor area ratio 建ぺい率・容積率 | | Kenpei rate: 40%, Volume ratio: 80% 建ペい率:40%、容積率:80% | Time residents 入居時期 | | Immediate available 即入居可 | Land of the right form 土地の権利形態 | | Ownership 所有権 | Structure and method of construction 構造・工法 | | Wooden 2-story 木造2階建 | Use district 用途地域 | | One low-rise 1種低層 | Land category 地目 | | Residential land 宅地 | Other limitations その他制限事項 | | Quasi-fire zones 準防火地域 | Overview and notices その他概要・特記事項 | | Contact: Yamamoto HiroshiMakoto, Building confirmation number: No. H25SHC113160 other, Facilities: city gas ・ Public Water Supply ・ Public sewage 担当者:山本 浩慎、建築確認番号:第H25SHC113160号他、設備:都市ガス・公営水道・公共下水 | Company profile 会社概要 | | <Mediation> Governor of Tokyo (7) No. 050689 (Corporation) Tokyo Metropolitan Government Building Lots and Buildings Transaction Business Association (Corporation) metropolitan area real estate Fair Trade Council member Century 21 (Ltd.) house Engineering Management sales Yubinbango192-0073 Hachioji, Tokyo Teramachi 69 <仲介>東京都知事(7)第050689号(公社)東京都宅地建物取引業協会会員 (公社)首都圏不動産公正取引協議会加盟センチュリー21(株)住宅工営販売〒192-0073 東京都八王子市寺町69 |
Local appearance photo現地外観写真  1 Building 2013 December 24, shooting
1号棟 2013年12月24日撮影
Kitchenキッチン  1 Building Face-to-face kitchen
1号棟 対面キッチン
Livingリビング  1 Building 14 Pledge LDK
1号棟 14帖LDK
Bathroom浴室  1 Building Bathroom
1号棟 バスルーム
Non-living roomリビング以外の居室  1 Building Second floor Japanese-style room
1号棟 2階和室
Local appearance photo現地外観写真  1 Building 2013 December 24, shooting
1号棟 2013年12月24日撮影
 Building 2 2013 December 24, shooting
2号棟 2013年12月24日撮影
 Building 2 2013 December 24, shooting
2号棟 2013年12月24日撮影
 Building 2 2013 December 24, shooting
2号棟 2013年12月24日撮影
 Building 3 2013 December 24, shooting
3号棟 2013年12月24日撮影
 Building 3 2013 December 24, shooting
3号棟 2013年12月24日撮影
Local photos, including front road前面道路含む現地写真  2013 December 24, shooting
2013年12月24日撮影
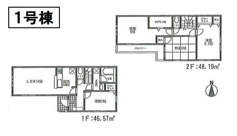
Floor plan間取り図  (1 Building), Price 29,800,000 yen, 4LDK, Land area 136.64 sq m , Building area 94.76 sq m
(1号棟)、価格2980万円、4LDK、土地面積136.64m2、建物面積94.76m2
 (Building 2), Price 33,500,000 yen, 4LDK, Land area 148.25 sq m , Building area 98.82 sq m
(2号棟)、価格3350万円、4LDK、土地面積148.25m2、建物面積98.82m2
 (3 Building), Price 33,500,000 yen, 4LDK, Land area 130.01 sq m , Building area 97.2 sq m
(3号棟)、価格3350万円、4LDK、土地面積130.01m2、建物面積97.2m2
The entire compartment Figure全体区画図  Compartment figure
区画図
Supermarketスーパー  802m until Santoku Minami-Osawa shop
三徳南大沢店まで802m
Primary school小学校  Hachioji Municipal Yarimizu 400m up to elementary school
八王子市立鑓水小学校まで400m
Junior high school中学校  Hachioji Municipal Yarimizu 400m up to junior high school
八王子市立鑓水中学校まで400m
Park公園  1500m to Daizukayama park
大塚山公園まで1500m
Hospital病院  Minami-Osawa 871m to clinic
南大沢クリニックまで871m
Location
|