New Homes » Kanto » Tokyo » Hachioji
 
| | Hachioji, Tokyo 東京都八王子市 |
| JR Yokohama Line "Hachioji Minamino" walk 12 minutes JR横浜線「八王子みなみ野」歩12分 |
| "Hachioji seven countries 1-chome ・ All 11 buildings. " We finally made the final 1 buildings sale Station 12 minutes' walk of the development subdivision, All building 50 square meters or more, Car space two Allowed, Flat 35S, Defects insurance for peace of mind 「八王子市七国1丁目・全11棟」 いよいよ最終1棟の販売となりました 駅徒歩12分の開発分譲地、全棟50坪以上、カースペース2台可、フラット35S、安心の瑕疵保険 |
| <2013 December 27, 1 Building sale> ■ 1 Building Development land for sale in lots of beautiful streets, Is a corner lot of 51 square meters. Front 6m road car out also smooth, Car space parallel two PARKING. Cleaning Easy three-neck gas stove face-to-face kitchen, 17 Pledge LDK in a space are more open feeling of opening the Japanese-style room, which is continuous with the living. It is warm with a floor heating in the living-dining. Bathtub Ya sitz bath can be a multi-step specification, In town, such as three-sided mirror shampoo dresser, of course, It is on the second floor there is a Western-style 4 room 5LDK. <H25年12月27日現在、1号棟販売中>■1号棟 開発分譲地の美しい街並、51坪の角地です。車の出し入れもスムーズな前面6m道路、カースペース並列2台駐車可。お掃除らくらく3つ口ガスコンロの対面キッチン、17帖のLDKはリビングと連続する和室を開けて更に開放感ある空間に。リビングダイニングに床暖房がついてポカポカです。半身浴可能なマルチステップ仕様の浴槽や、3面鏡シャンプードレッサーなど充実設備はもちろん、2階に洋室4部屋がある5LDKです。 |
Features pickup 特徴ピックアップ | | Corresponding to the flat-35S / Parking two Allowed / Immediate Available / Land 50 square meters or more / Super close / Facing south / System kitchen / Bathroom Dryer / Yang per good / All room storage / A quiet residential area / LDK15 tatami mats or more / Or more before road 6m / Corner lot / Japanese-style room / Washbasin with shower / Face-to-face kitchen / Toilet 2 places / Bathroom 1 tsubo or more / 2-story / South balcony / Double-glazing / Zenshitsuminami direction / Otobasu / Warm water washing toilet seat / Underfloor Storage / The window in the bathroom / TV monitor interphone / Ventilation good / City gas / Floor heating / Development subdivision in フラット35Sに対応 /駐車2台可 /即入居可 /土地50坪以上 /スーパーが近い /南向き /システムキッチン /浴室乾燥機 /陽当り良好 /全居室収納 /閑静な住宅地 /LDK15畳以上 /前道6m以上 /角地 /和室 /シャワー付洗面台 /対面式キッチン /トイレ2ヶ所 /浴室1坪以上 /2階建 /南面バルコニー /複層ガラス /全室南向き /オートバス /温水洗浄便座 /床下収納 /浴室に窓 /TVモニタ付インターホン /通風良好 /都市ガス /床暖房 /開発分譲地内 | Price 価格 | | 39,800,000 yen 3980万円 | Floor plan 間取り | | 5LDK 5LDK | Units sold 販売戸数 | | 1 units 1戸 | Total units 総戸数 | | 11 units 11戸 | Land area 土地面積 | | 170.2 sq m (51.48 square meters) 170.2m2(51.48坪) | Building area 建物面積 | | 106.19 sq m (32.12 square meters) 106.19m2(32.12坪) | Driveway burden-road 私道負担・道路 | | Road width: 6m, Including on-site extension part to 8 Building land area 道路幅:6m、8号棟土地面積に敷地延長部分含む | Completion date 完成時期(築年月) | | November 2013 2013年11月 | Address 住所 | | Hachioji, Tokyo seven countries 1 東京都八王子市七国1 | Traffic 交通 | | JR Yokohama Line "Hachioji Minamino" walk 12 minutes JR横浜線「八王子みなみ野」歩12分
| Related links 関連リンク | | [Related Sites of this company] 【この会社の関連サイト】 | Person in charge 担当者より | | Rep Uehara Yuji Age: also do my best hard to 20s everything 担当者上原 祐史年齢:20代何事にも一生懸命がんばります | Contact お問い合せ先 | | TEL: 0800-809-8309 [Toll free] mobile phone ・ Also available from PHS Caller ID is not notified Please contact the "saw SUUMO (Sumo)" If it does not lead, If the real estate company TEL:0800-809-8309【通話料無料】携帯電話・PHSからもご利用いただけます 発信者番号は通知されません 「SUUMO(スーモ)を見た」と問い合わせください つながらない方、不動産会社の方は
| Building coverage, floor area ratio 建ぺい率・容積率 | | Kenpei rate: 60%, Volume ratio: 200% 建ペい率:60%、容積率:200% | Time residents 入居時期 | | Immediate available 即入居可 | Land of the right form 土地の権利形態 | | Ownership 所有権 | Structure and method of construction 構造・工法 | | Wooden 2-story 木造2階建 | Use district 用途地域 | | One dwelling 1種住居 | Land category 地目 | | Residential land 宅地 | Other limitations その他制限事項 | | Quasi-fire zones 準防火地域 | Overview and notices その他概要・特記事項 | | Contact: Uehara Yuji, Building confirmation number: TKK 確済 13-668 No. other, Facilities: city gas ・ Public Water Supply ・ This sewage 担当者:上原 祐史、建築確認番号:TKK確済13-668号他、設備:都市ガス・公営水道・本下水 | Company profile 会社概要 | | <Mediation> Governor of Tokyo (7) No. 050689 (Corporation) Tokyo Metropolitan Government Building Lots and Buildings Transaction Business Association (Corporation) metropolitan area real estate Fair Trade Council member Century 21 (Ltd.) house Engineering Management sales Yubinbango192-0073 Hachioji, Tokyo Teramachi 69 <仲介>東京都知事(7)第050689号(公社)東京都宅地建物取引業協会会員 (公社)首都圏不動産公正取引協議会加盟センチュリー21(株)住宅工営販売〒192-0073 東京都八王子市寺町69 |
Local appearance photo現地外観写真  Newly built single-family Hachioji seven countries 1-chome 1 Building
八王子市七国1丁目の新築一戸建て 1号棟
Livingリビング  1 Building South-facing bright living
1号棟 南向きの明るいリビング
Kitchenキッチン  1 Building Face-to-face kitchen, Cleaning Easy three-necked gas stove
1号棟 対面式キッチン、お掃除らくらく3つ口ガスコンロ
Livingリビング  1 Building Living in a space are more feeling of freedom to open the Japanese-style room consecutive
1号棟 リビングは連続する和室を開けて更に解放感ある空間に
Non-living roomリビング以外の居室  1 Building 2 face lighting of Japanese-style continuous with the living
1号棟 リビングと連続する2面採光の和室
Bathroom浴室  1 Building Sitz bath can be a multi-step specification bathtub
1号棟 半身浴可能なマルチステップ仕様浴槽
Wash basin, toilet洗面台・洗面所  1 Building Shampoo dresser with function, Three-sided mirror vanity
1号棟 シャンプードレッサー機能付、3面鏡洗面化粧台
Toiletトイレ  1 Building Bidet function toilet
1号棟 ウォシュレット機能付トイレ
Local appearance photo現地外観写真  1 Building 5LDK to be built on the site of 51 square meters
1号棟 51坪の敷地に建つ5LDK
 1 Building
1号棟
 Local photos, including front road
前面道路含む現地写真
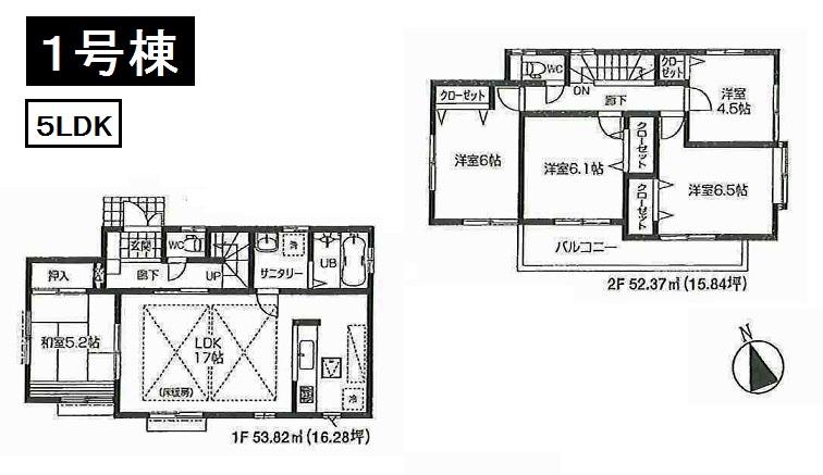
Floor plan間取り図  (1 Building), Price 39,800,000 yen, 5LDK, Land area 170.2 sq m , Building area 106.19 sq m
(1号棟)、価格3980万円、5LDK、土地面積170.2m2、建物面積106.19m2
The entire compartment Figure全体区画図  2013 December 27 It is finally the final 1 buildings sale
2013年12月27日現在 いよいよ最終1棟の販売です
Supermarketスーパー  847m to Super Sanwa Minamino shop
スーパー三和みなみ野店まで847m
 Kaneman until KATAKURA shop 2000m
カネマン片倉店まで2000m
Primary school小学校  505m to Hachioji Municipal Minamino Kimita elementary school
八王子市立みなみ野君田小学校まで505m
Junior high school中学校  666m to Hachioji City Nanakuni junior high school
八王子市立七国中学校まで666m
Park公園  1800m to Daizukayama park
大塚山公園まで1800m
Hospital病院  Minamino to Central Clinic 483m
みなみ野セントラルクリニックまで483m
Location
|