New Homes » Kanto » Tokyo » Hachioji
 
| | Hachioji, Tokyo 東京都八王子市 |
| Keiō Takao Line "Hazama" walk 15 minutes 京王高尾線「狭間」歩15分 |
| "Hachioji mansion-cho ・ All one building. " A quiet residential area, 42 square meters all Shitsuminami direction ・ Yang per 6 quires more than a good room Mato, Face-to-face kitchen the conversation is lively, 16 Pledge LDK, Western-style 2 room with WIC 「八王子市館町・全1棟」 閑静な住宅街、42坪全室南向き・6帖以上で陽当り良好なゆとりある間取、会話が弾む対面キッチン、16帖LDK、洋室2部屋WIC付 |
| There is a sense of liberation per east side park, Supermarket ・ Is a convenient living environment in elementary school near life. 東側公園につき解放感あり、スーパー・小学校近く生活に便利な住環境です。 |
Features pickup 特徴ピックアップ | | Super close / System kitchen / Yang per good / All room storage / A quiet residential area / LDK15 tatami mats or more / Japanese-style room / Shaping land / Face-to-face kitchen / Toilet 2 places / 2-story / South balcony / Zenshitsuminami direction / Otobasu / Warm water washing toilet seat / Underfloor Storage / The window in the bathroom / TV monitor interphone / Walk-in closet / All room 6 tatami mats or more / City gas スーパーが近い /システムキッチン /陽当り良好 /全居室収納 /閑静な住宅地 /LDK15畳以上 /和室 /整形地 /対面式キッチン /トイレ2ヶ所 /2階建 /南面バルコニー /全室南向き /オートバス /温水洗浄便座 /床下収納 /浴室に窓 /TVモニタ付インターホン /ウォークインクロゼット /全居室6畳以上 /都市ガス | Price 価格 | | 33,800,000 yen 3380万円 | Floor plan 間取り | | 4LDK 4LDK | Units sold 販売戸数 | | 1 units 1戸 | Total units 総戸数 | | 1 units 1戸 | Land area 土地面積 | | 140.8 sq m (42.59 square meters) 140.8m2(42.59坪) | Building area 建物面積 | | 106.82 sq m (32.31 square meters) 106.82m2(32.31坪) | Driveway burden-road 私道負担・道路 | | Nothing, West 4.5m width 無、西4.5m幅 | Completion date 完成時期(築年月) | | Three months after the contract 契約後3ヶ月 | Address 住所 | | Hachioji, Tokyo mansion-cho 東京都八王子市館町 | Traffic 交通 | | Keiō Takao Line "Hazama" walk 15 minutes 京王高尾線「狭間」歩15分
| Related links 関連リンク | | [Related Sites of this company] 【この会社の関連サイト】 | Person in charge 担当者より | | Person in charge of real-estate and building Morita TakashiYu age: the 30's customers committed to help house hunting in the "same eyes" 担当者宅建森田 孝祐年齢:30代お客様とは「同じ目線」で家探しのお手伝いをすることをお約束します | Contact お問い合せ先 | | TEL: 0800-809-8309 [Toll free] mobile phone ・ Also available from PHS Caller ID is not notified Please contact the "saw SUUMO (Sumo)" If it does not lead, If the real estate company TEL:0800-809-8309【通話料無料】携帯電話・PHSからもご利用いただけます 発信者番号は通知されません 「SUUMO(スーモ)を見た」と問い合わせください つながらない方、不動産会社の方は
| Building coverage, floor area ratio 建ぺい率・容積率 | | 40% ・ 80% 40%・80% | Time residents 入居時期 | | Three months after the contract 契約後3ヶ月 | Land of the right form 土地の権利形態 | | Ownership 所有権 | Structure and method of construction 構造・工法 | | Wooden 2-story 木造2階建 | Use district 用途地域 | | One low-rise 1種低層 | Overview and notices その他概要・特記事項 | | Contact: Morita TakashiYu, Facilities: Public Water Supply, This sewage, City gas, Building confirmation number: No. H25 confirmation architecture Hachioji No. 00156, Parking: car space 担当者:森田 孝祐、設備:公営水道、本下水、都市ガス、建築確認番号:第H25確認建築八王子市00156号、駐車場:カースペース | Company profile 会社概要 | | <Mediation> Governor of Tokyo (7) No. 050689 (Corporation) Tokyo Metropolitan Government Building Lots and Buildings Transaction Business Association (Corporation) metropolitan area real estate Fair Trade Council member Century 21 (Ltd.) house Engineering Management sales Yubinbango192-0073 Hachioji, Tokyo Teramachi 69 <仲介>東京都知事(7)第050689号(公社)東京都宅地建物取引業協会会員 (公社)首都圏不動産公正取引協議会加盟センチュリー21(株)住宅工営販売〒192-0073 東京都八王子市寺町69 |
Local appearance photo現地外観写真  2013 December 21, shooting
2013年12月21日撮影
Local photos, including front road前面道路含む現地写真  2013 December 21, shooting
2013年12月21日撮影
Local appearance photo現地外観写真  2013 December 21, shooting
2013年12月21日撮影
 2013 December 21, shooting
2013年12月21日撮影
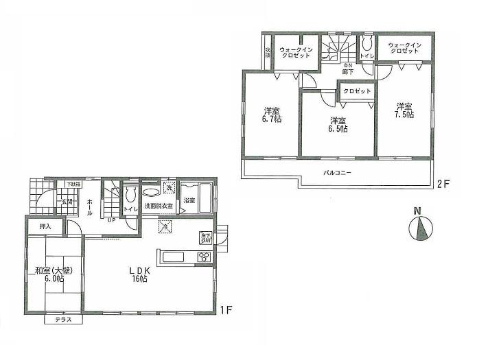
Floor plan間取り図  33,800,000 yen, 4LDK, Land area 140.8 sq m , Building area 106.82 sq m
3380万円、4LDK、土地面積140.8m2、建物面積106.82m2
Compartment figure区画図  33,800,000 yen, 4LDK, Land area 140.8 sq m , Building area 106.82 sq m
3380万円、4LDK、土地面積140.8m2、建物面積106.82m2
Same specifications photo (kitchen)同仕様写真(キッチン)  Construction example photo
施工例写真
Same specifications photos (living)同仕様写真(リビング)  Construction example photo
施工例写真
Same specifications photo (bathroom)同仕様写真(浴室)  Construction example photo
施工例写真
Supermarketスーパー  465m to Super Alps Hazama shop
スーパーアルプスはざま店まで465m
 769m until the food one Yurinokidai shop
フードワンゆりのき台店まで769m
 Ito-Yokado 808m to Hachioji
イトーヨーカドー八王子店まで808m
Primary school小学校  375m to Hachioji Municipal Yokoyama first elementary school
八王子市立横山第一小学校まで375m
Junior high school中学校  1000m to Hachioji City Hall Junior High School
八王子市立館中学校まで1000m
Park公園  804m until Kunugida Archeological Park
椚田遺跡公園まで804m
Hospital病院  558m to Hachioji MegumiAi hospital
八王子恵愛病院まで558m
Location
|