New Homes » Kanto » Tokyo » Hachioji
 
| | Hachioji, Tokyo 東京都八王子市 |
| JR Chuo Line "Hachioji" walk 22 minutes JR中央線「八王子」歩22分 |
| "Hachioji Utenamachi 1-chome ・ All five buildings. " JR Hachioji Station within walking distance, Life convenient living environment wood utilization point, Flat 35, Strong Dairaito method to earthquake and disaster 「八王子市台町1丁目・全5棟」 JR八王子駅徒歩圏内、生活便利な住環境木材利用ポイント、フラット35、地震や災害に強いダイライト工法 |
| ■ 1 Building All rooms are two-sided lighting, Face-to-face kitchen, 17 Pledge LDK3 face lighting, Housework easier flow line ■ Building 2 All rooms are two-sided lighting, Face-to-face kitchen, 14 Pledge LDK, Master Bedroom 8 pledge, Car space parallel two Allowed ■ Building 3 All rooms are two-sided lighting, Face-to-face kitchen, 13 Pledge LDK, The main bedroom 8.2 Pledge, Car space two Allowed ■ 4 Building All rooms are two-sided lighting, 6 quires more, Face-to-face kitchen, 16 Pledge LDK, The main bedroom 7.5 Pledge ■ 5 Building Independent kitchen, 18.5 Pledge LDK3 face lighting, The main bedroom 7.5 Pledge, Car spaces are the two friendly wood utilization point: cedar, Grant points to the new construction, etc. of wooden houses that utilize local materials such as cypress, Points can be exchanged with the Agriculture, Forestry and Fisheries etc. and Regional Options ■1号棟 全室2面採光、対面キッチン、17帖LDK3面採光、家事ラク動線■2号棟 全室2面採光、対面キッチン、14帖LDK、主寝室8帖、カースペース並列2台可■3号棟 全室2面採光、対面キッチン、13帖LDK、主寝室8.2帖、カースペース2台可■4号棟 全室2面採光、6帖以上、対面キッチン、16帖LDK、主寝室7.5帖■5号棟 独立キッチン、18.5帖LDK3面採光、主寝室7.5帖、カースペース2台可木材利用ポイントとは:スギ、ヒノキなどの地域材を活用した木造住宅の新築等にポイントを付与し、ポイントは地域の農林水産品等やオプションと交換できます |
Features pickup 特徴ピックアップ | | Parking two Allowed / Immediate Available / 2 along the line more accessible / Super close / Facing south / System kitchen / Bathroom Dryer / Yang per good / All room storage / LDK15 tatami mats or more / Japanese-style room / Starting station / Shaping land / Washbasin with shower / Face-to-face kitchen / 3 face lighting / Toilet 2 places / Bathroom 1 tsubo or more / 2-story / South balcony / Double-glazing / Otobasu / Warm water washing toilet seat / Underfloor Storage / The window in the bathroom / TV monitor interphone / Ventilation good / All room 6 tatami mats or more / City gas / All rooms are two-sided lighting 駐車2台可 /即入居可 /2沿線以上利用可 /スーパーが近い /南向き /システムキッチン /浴室乾燥機 /陽当り良好 /全居室収納 /LDK15畳以上 /和室 /始発駅 /整形地 /シャワー付洗面台 /対面式キッチン /3面採光 /トイレ2ヶ所 /浴室1坪以上 /2階建 /南面バルコニー /複層ガラス /オートバス /温水洗浄便座 /床下収納 /浴室に窓 /TVモニタ付インターホン /通風良好 /全居室6畳以上 /都市ガス /全室2面採光 | Price 価格 | | 31,800,000 yen ~ 35,800,000 yen 3180万円 ~ 3580万円 | Floor plan 間取り | | 4LDK 4LDK | Units sold 販売戸数 | | 5 units 5戸 | Total units 総戸数 | | 5 units 5戸 | Land area 土地面積 | | 105.38 sq m ~ 123.36 sq m (31.87 tsubo ~ 37.31 square meters) 105.38m2 ~ 123.36m2(31.87坪 ~ 37.31坪) | Building area 建物面積 | | 86.67 sq m ~ 95.57 sq m (26.21 tsubo ~ 28.90 square meters) 86.67m2 ~ 95.57m2(26.21坪 ~ 28.90坪) | Driveway burden-road 私道負担・道路 | | Road width: 4m, 1 out of the driveway equity 42m2 / 10, 3 ・ 4 ・ 5 Building including agreement road part in land area (Building 3 11.77m2, 4 Building about 19.67m2, 5 Building about 7.90m2) 道路幅:4m、私道持分42m2のうち1/10、3・4・5号棟土地面積に協定道路部分含む(3号棟11.77m2、4号棟約19.67m2、5号棟約7.90m2) | Completion date 完成時期(築年月) | | December 2013 2013年12月 | Address 住所 | | Hachioji, Tokyo Utenamachi 1 東京都八王子市台町1 | Traffic 交通 | | JR Chuo Line "Hachioji" walk 22 minutes JR Chuo Line "Hachioji" bus 5 minutes citizen gymnasium walk 5 minutes JR Yokohama Line "Hachioji" bus 5 minutes citizen gymnasium walk 5 minutes JR中央線「八王子」歩22分 JR中央線「八王子」バス5分市民体育館歩5分 JR横浜線「八王子」バス5分市民体育館歩5分
| Related links 関連リンク | | [Related Sites of this company] 【この会社の関連サイト】 | Person in charge 担当者より | | Person in charge of real-estate and building Uchiyama Taiki Age: for 20 generations customer satisfaction, We promise to support in full force. 担当者宅建内山 大樹年齢:20代お客様のご満足のために、全力でのサポートをお約束いたします。 | Contact お問い合せ先 | | TEL: 0800-809-8309 [Toll free] mobile phone ・ Also available from PHS Caller ID is not notified Please contact the "saw SUUMO (Sumo)" If it does not lead, If the real estate company TEL:0800-809-8309【通話料無料】携帯電話・PHSからもご利用いただけます 発信者番号は通知されません 「SUUMO(スーモ)を見た」と問い合わせください つながらない方、不動産会社の方は
| Building coverage, floor area ratio 建ぺい率・容積率 | | Kenpei rate: 60%, Volume ratio: 200% 建ペい率:60%、容積率:200% | Time residents 入居時期 | | Immediate available 即入居可 | Land of the right form 土地の権利形態 | | Ownership 所有権 | Structure and method of construction 構造・工法 | | Wooden 2-story 木造2階建 | Use district 用途地域 | | Two mid-high 2種中高 | Land category 地目 | | Residential land 宅地 | Other limitations その他制限事項 | | Quasi-fire zones, Second kind altitude district, Residential land development Regulation Law, Aviation Law, Landscape law 準防火地域、第2種高度地区、宅地造成等規制法、航空法、景観法 | Overview and notices その他概要・特記事項 | | Contact: Uchiyama Big tree, Building confirmation number: No. H25SHC114659 other, Facilities: city gas ・ Public Water Supply ・ Public sewage Other: The Building 3 for 4 Building the west side of the adjacent land away from the effective distance 500mm on the Civil Code is not ensured consent required at the time of contract, 1 ~ Building 3 January will be completed in 2014 担当者:内山 大樹、建築確認番号:第H25SHC114659号他、設備:都市ガス・公営水道・公共下水 その他:4号棟西側の隣地離れが民法上の有効距離500mmが確保されていないため3号棟は契約時に承諾要、1 ~ 3号棟2014年1月完成予定 | Company profile 会社概要 | | <Mediation> Governor of Tokyo (7) No. 050689 (Corporation) Tokyo Metropolitan Government Building Lots and Buildings Transaction Business Association (Corporation) metropolitan area real estate Fair Trade Council member Century 21 (Ltd.) house Engineering Management sales Yubinbango192-0073 Hachioji, Tokyo Teramachi 69 <仲介>東京都知事(7)第050689号(公社)東京都宅地建物取引業協会会員 (公社)首都圏不動産公正取引協議会加盟センチュリー21(株)住宅工営販売〒192-0073 東京都八王子市寺町69 |
Local appearance photo現地外観写真  4 Building 2013 December 24, shooting
4号棟 2013年12月24日撮影
Kitchenキッチン  4 Building 2013 December 24, shooting
4号棟 2013年12月24日撮影
Livingリビング  4 Building 2013 December 24, shooting
4号棟 2013年12月24日撮影
Bathroom浴室  4 Building 2013 December 24, shooting
4号棟 2013年12月24日撮影
Wash basin, toilet洗面台・洗面所  4 Building 2013 December 24, shooting
4号棟 2013年12月24日撮影
Toiletトイレ  4 Building 2013 December 24, shooting
4号棟 2013年12月24日撮影
Non-living roomリビング以外の居室  4 Building 2013 December 24, shooting
4号棟 2013年12月24日撮影
Local appearance photo現地外観写真  1 Building 2013 December 24, shooting
1号棟 2013年12月24日撮影
 Building 2 2013 December 24, shooting
2号棟 2013年12月24日撮影
 Building 3 2013 December 24, shooting
3号棟 2013年12月24日撮影
 5 Building 2013 December 24, shooting
5号棟 2013年12月24日撮影
Local photos, including front road前面道路含む現地写真  2013 December 24, shooting
2013年12月24日撮影
Floor plan間取り図  (1 Building), Price 34,800,000 yen, 4LDK, Land area 105.38 sq m , Building area 87.48 sq m
(1号棟)、価格3480万円、4LDK、土地面積105.38m2、建物面積87.48m2
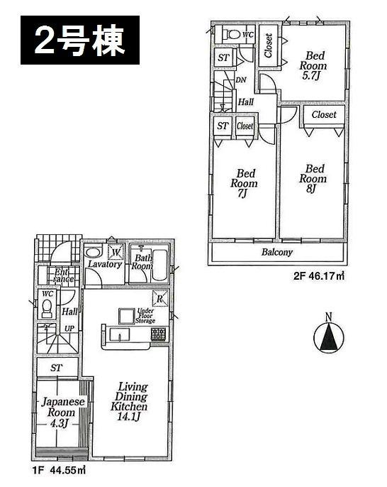
 (Building 2), Price 35,800,000 yen, 4LDK, Land area 106.15 sq m , Building area 90.72 sq m
(2号棟)、価格3580万円、4LDK、土地面積106.15m2、建物面積90.72m2
 (3 Building), Price 32,800,000 yen, 4LDK, Land area 111.99 sq m , Building area 86.67 sq m
(3号棟)、価格3280万円、4LDK、土地面積111.99m2、建物面積86.67m2
 (4 Building), Price 33,800,000 yen, 4LDK, Land area 120.38 sq m , Building area 93.15 sq m
(4号棟)、価格3380万円、4LDK、土地面積120.38m2、建物面積93.15m2
 (5 Building), Price 31,800,000 yen, 4LDK, Land area 123.36 sq m , Building area 95.57 sq m
(5号棟)、価格3180万円、4LDK、土地面積123.36m2、建物面積95.57m2
The entire compartment Figure全体区画図  Compartment figure
区画図
Supermarketスーパー  886m to Super Alps Utenamachi shop
スーパーアルプス台町店まで886m
Primary school小学校  1450m to Hachioji Municipal seventh elementary school
八王子市立第七小学校まで1450m
Park公園  518m until Fuji Forest Park
富士森公園まで518m
Location
|