New Homes » Kanto » Tokyo » Hachioji
 
| | Hachioji, Tokyo 東京都八王子市 |
| JR Chuo Line "Nishi Hachioji" walk 5 minutes JR中央線「西八王子」歩5分 |
| ◎ West Hachioji Station 5-minute walk ◎ LDK17 quires more ・ Loft 5 Pledge ◎ flat 35S Available ◎ before road 6m ◎ All rooms housed Yes ◎西八王子駅徒歩5分 ◎LDK17帖以上・ロフト5帖 ◎フラット35S利用可 ◎前道6m ◎全室収納有 |
| ◆ Commute ・ Flat 5-minute walk from happy to go to school west Hachioji Station ◆ 5 Pledge of loft will have a variety of applications, such as space for storage and hobbies ◆ Attached to the commercial facility nearby, Living environment favorable ◆通勤・通学に嬉しい西八王子駅まで平坦徒歩5分◆5帖のロフトは収納や趣味のスペースなど様々な用途があります◆商業施設近隣に付、生活環境良好 |
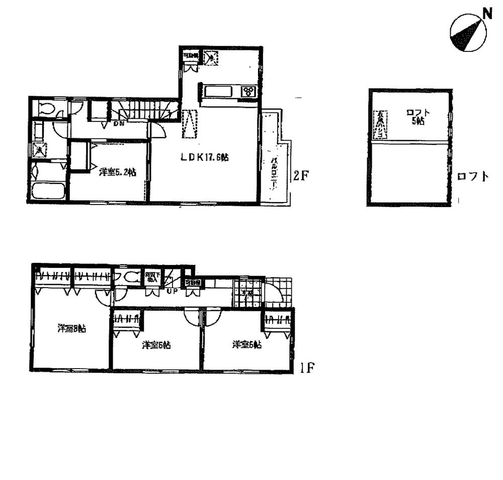
Features pickup 特徴ピックアップ | | Corresponding to the flat-35S / Fiscal year Available / Super close / System kitchen / Bathroom Dryer / Yang per good / All room storage / Flat to the station / LDK15 tatami mats or more / Or more before road 6m / Washbasin with shower / Face-to-face kitchen / Barrier-free / Toilet 2 places / Bathroom 1 tsubo or more / 2-story / Southeast direction / Double-glazing / Otobasu / Warm water washing toilet seat / loft / Underfloor Storage / TV monitor interphone / Ventilation good / All living room flooring / Dish washing dryer / Water filter / City gas / Maintained sidewalk / Flat terrain / All rooms facing southeast フラット35Sに対応 /年度内入居可 /スーパーが近い /システムキッチン /浴室乾燥機 /陽当り良好 /全居室収納 /駅まで平坦 /LDK15畳以上 /前道6m以上 /シャワー付洗面台 /対面式キッチン /バリアフリー /トイレ2ヶ所 /浴室1坪以上 /2階建 /東南向き /複層ガラス /オートバス /温水洗浄便座 /ロフト /床下収納 /TVモニタ付インターホン /通風良好 /全居室フローリング /食器洗乾燥機 /浄水器 /都市ガス /整備された歩道 /平坦地 /全室東南向き | Property name 物件名 | | [West Hachioji Station A 5-minute walk Hachioji Utenamachi] Newly built single-family 【西八王子駅 徒歩5分 八王子市台町】 新築戸建 | Price 価格 | | 45,800,000 yen 4580万円 | Floor plan 間取り | | 4LDK 4LDK | Units sold 販売戸数 | | 1 units 1戸 | Total units 総戸数 | | 1 units 1戸 | Land area 土地面積 | | 99.18 sq m (30.00 tsubo) (measured) 99.18m2(30.00坪)(実測) | Building area 建物面積 | | 115.26 sq m (34.86 tsubo) (measured) 115.26m2(34.86坪)(実測) | Driveway burden-road 私道負担・道路 | | Road width: 6m, Asphaltic pavement 道路幅:6m、アスファルト舗装 | Completion date 完成時期(築年月) | | March 2014 early schedule 2014年3月上旬予定 | Address 住所 | | Hachioji, Tokyo Utenamachi 4 東京都八王子市台町4 | Traffic 交通 | | JR Chuo Line "Nishi Hachioji" walk 5 minutes JR中央線「西八王子」歩5分
| Related links 関連リンク | | [Related Sites of this company] 【この会社の関連サイト】 | Person in charge 担当者より | | Rep Fujisaki Kentaro Age: 20 Daigyokai experience: 2 years hard, We will be happy to help. Anything please consult. 担当者藤崎 健太朗年齢:20代業界経験:2年一生懸命、お手伝いさせて頂きます。何でもご相談ください。 | Contact お問い合せ先 | | TEL: 0800-601-5986 [Toll free] mobile phone ・ Also available from PHS Caller ID is not notified Please contact the "saw SUUMO (Sumo)" If it does not lead, If the real estate company TEL:0800-601-5986【通話料無料】携帯電話・PHSからもご利用いただけます 発信者番号は通知されません 「SUUMO(スーモ)を見た」と問い合わせください つながらない方、不動産会社の方は
| Sale schedule 販売スケジュール | | Will be sold on a first come, first served basis. Please contact us for more details. 先着順での販売となります。詳細はお問い合わせください。 | Building coverage, floor area ratio 建ぺい率・容積率 | | Kenpei rate: 60%, Volume ratio: 200% 建ペい率:60%、容積率:200% | Time residents 入居時期 | | March 2014 mid-scheduled 2014年3月中旬予定 | Land of the right form 土地の権利形態 | | Ownership 所有権 | Structure and method of construction 構造・工法 | | Wooden 2-story 木造2階建 | Use district 用途地域 | | One dwelling 1種住居 | Land category 地目 | | Residential land 宅地 | Other limitations その他制限事項 | | Regulations have by the Landscape Act, Regulations have by the Aviation Law, Height district, Quasi-fire zones, Shade limit Yes 景観法による規制有、航空法による規制有、高度地区、準防火地域、日影制限有 | Overview and notices その他概要・特記事項 | | Contact: Fujisaki Kentaro, Building confirmation number: H25A-JK.eM00714-01 No. 担当者:藤崎 健太朗、建築確認番号:H25A-JK.eM00714-01号 | Company profile 会社概要 | | <Mediation> Minister of Land, Infrastructure and Transport (7) No. 003744 No. Asahi Land and Building Co., Ltd. Hachioji business Lesson 3 Yubinbango192-0083 Hachioji, Tokyo Asahi-cho, 10-3 <仲介>国土交通大臣(7)第003744号朝日土地建物(株)八王子店営業3課〒192-0083 東京都八王子市旭町10-3 |
Rendering (appearance)完成予想図(外観)  Rendering
完成予想図
Floor plan間取り図  Price 45,800,000 yen, 4LDK, Land area 99.18 sq m , Building area 115.26 sq m
価格4580万円、4LDK、土地面積99.18m2、建物面積115.26m2
Otherその他  Children's Playground ・ Also equipped with crib. Please join us feel free to even small children.
キッズスペース・ベビーベッドも完備。小さなお子様連れでもお気軽にお越しください。
 Immediately out of the north exit of Hachioji Station ☆ Also equipped with tie-up parking lot ☆
八王子駅の北口を出てすぐ☆提携駐車場も完備☆
 Hachioji Bazaar venue
八王子店バザール会場
Supermarketスーパー  390m to Super Alps
スーパーアルプスまで390m
 The entire compartment Figure
全体区画図
Junior high school中学校  1020m to municipal seventh junior high school
市立第七中学校まで1020m
Primary school小学校  720m to Hachioji Municipal seventh elementary school
八王子市立第七小学校まで720m
Kindergarten ・ Nursery幼稚園・保育園  Nakayoshi 150m to kindergarten
なかよし幼稚園まで150m
Park公園  880m until Fuji Forest Park
冨士森公園まで880m
Rendering (appearance)完成予想図(外観)  Rendering
完成予想図
Local appearance photo現地外観写真  Local (12 May 2013) Shooting
現地(2013年12月)撮影
Local photos, including front road前面道路含む現地写真  Local (12 May 2013) Shooting
現地(2013年12月)撮影
 Other
その他
 Other
その他
Presentプレゼント  (For sale Support Campaign) The customers who got the request of the sale to the customer's wish "Asahi affection rice 2kg gift" is, It will be posted to your sale Listing to Sumo. ・ The customer contracts concluded "Asahi affection rice 5Kg gift" ・ soil ・ Day ・ In Bazaar venue for coming to the holiday "season of the bouquet" gift ※ The Bazaar venue, Ya baby bed We offer a Children's Playground. Even in young children, Please your coming in peace.
(ご売却応援キャンペーン) 売却のご依頼を頂いたお客様には『朝日あいじょう米2kgプレゼント』ご希望のお客様には、スーモにご売却物件を掲載いたします。・ご成約のお客様には『朝日あいじょう米5Kgプレゼント』・土・日・祝日にバザール会場ご来場で『季節の花束』プレゼント※バザール会場には、ベビーベッドや キッズスペースをご用意しております。 小さなお子様連れでも、安心してご来場ください。
Location
|