New Homes » Kanto » Tokyo » Hachioji
 
| | Hachioji, Tokyo 東京都八王子市 |
| Keio Line "Kitano" walk 12 minutes 京王線「北野」歩12分 |
| ◎ KATAKURA Station 9 minute walk ◎ flat 35S Available ◎ sun per per hill ・ Good view ◎ south garden ◎ All rooms flooring ◎片倉駅徒歩9分 ◎フラット35S利用可 ◎高台に付き陽当たり・眺望良好 ◎南側庭付き ◎全室フローリング |
| ◆ Daily commute ・ School to glad station walk 9 minutes ◆ Attached to the hill, There is a feeling of opening view is also good ◆ South-facing bright dwelling ◆毎日の通勤・通学に嬉しい駅徒歩9分◆高台に付、開放感があり眺望も良好◆南向きの明るい住まい |
Features pickup 特徴ピックアップ | | Corresponding to the flat-35S / Pre-ground survey / 2 along the line more accessible / Fiscal year Available / Facing south / System kitchen / Bathroom Dryer / Yang per good / All room storage / A quiet residential area / LDK15 tatami mats or more / garden / Washbasin with shower / Face-to-face kitchen / Barrier-free / Toilet 2 places / Bathroom 1 tsubo or more / 2-story / South balcony / Double-glazing / Otobasu / Warm water washing toilet seat / Nantei / Underfloor Storage / The window in the bathroom / Ventilation good / All living room flooring / Good view / Dish washing dryer / Water filter / Living stairs / Located on a hill フラット35Sに対応 /地盤調査済 /2沿線以上利用可 /年度内入居可 /南向き /システムキッチン /浴室乾燥機 /陽当り良好 /全居室収納 /閑静な住宅地 /LDK15畳以上 /庭 /シャワー付洗面台 /対面式キッチン /バリアフリー /トイレ2ヶ所 /浴室1坪以上 /2階建 /南面バルコニー /複層ガラス /オートバス /温水洗浄便座 /南庭 /床下収納 /浴室に窓 /通風良好 /全居室フローリング /眺望良好 /食器洗乾燥機 /浄水器 /リビング階段 /高台に立地 | Price 価格 | | 28.5 million yen 2850万円 | Floor plan 間取り | | 4LDK 4LDK | Units sold 販売戸数 | | 1 units 1戸 | Total units 総戸数 | | 10 units 10戸 | Land area 土地面積 | | 137.26 sq m (41.52 tsubo) (measured) 137.26m2(41.52坪)(実測) | Building area 建物面積 | | 93.77 sq m (28.36 tsubo) (Registration) 93.77m2(28.36坪)(登記) | Driveway burden-road 私道負担・道路 | | Road width: 5m, Asphaltic pavement 道路幅:5m、アスファルト舗装 | Completion date 完成時期(築年月) | | May 2013 2013年5月 | Address 住所 | | Hachioji, Tokyo Uchikoshi-cho 東京都八王子市打越町 | Traffic 交通 | | Keio Line "Kitano" walk 12 minutes JR Yokohama Line "KATAKURA" walk 9 minutes Keiō Takao Line "Keio KATAKURA" walk 16 minutes 京王線「北野」歩12分 JR横浜線「片倉」歩9分 京王高尾線「京王片倉」歩16分
| Related links 関連リンク | | [Related Sites of this company] 【この会社の関連サイト】 | Person in charge 担当者より | | Rep Honma Takuya Age: 40 Daigyokai experience: like that come true the dream of two years your My Home, In all sincerity will help. 担当者本間 卓也年齢:40代業界経験:2年お客様のマイホームという夢を叶えられる様、誠心誠意お手伝い致します。 | Contact お問い合せ先 | | TEL: 0800-601-5986 [Toll free] mobile phone ・ Also available from PHS Caller ID is not notified Please contact the "saw SUUMO (Sumo)" If it does not lead, If the real estate company TEL:0800-601-5986【通話料無料】携帯電話・PHSからもご利用いただけます 発信者番号は通知されません 「SUUMO(スーモ)を見た」と問い合わせください つながらない方、不動産会社の方は
| Sale schedule 販売スケジュール | | Will be sold on a first come, first served basis. Please contact us for more details. 先着順での販売となります。詳細はお問い合わせください。 | Building coverage, floor area ratio 建ぺい率・容積率 | | 40%, 80% 40%、80% | Time residents 入居時期 | | Immediate available 即入居可 | Land of the right form 土地の権利形態 | | Ownership 所有権 | Structure and method of construction 構造・工法 | | Wooden 2-story 木造2階建 | Use district 用途地域 | | One low-rise 1種低層 | Land category 地目 | | Residential land 宅地 | Other limitations その他制限事項 | | Regulations have by the Landscape Act, Regulations have by the Aviation Law, Residential land development construction regulation area, Quasi-fire zones, Height ceiling Yes, Irregular land, On-site step Yes 景観法による規制有、航空法による規制有、宅地造成工事規制区域、準防火地域、高さ最高限度有、不整形地、敷地内段差有 | Overview and notices その他概要・特記事項 | | Contact: Honma Takuya, Building confirmation number: 0668-01 担当者:本間 卓也、建築確認番号:0668-01 | Company profile 会社概要 | | <Mediation> Minister of Land, Infrastructure and Transport (7) No. 003744 No. Asahi Land and Building Co., Ltd. Hachioji business Lesson 3 Yubinbango192-0083 Hachioji, Tokyo Asahi-cho, 10-3 <仲介>国土交通大臣(7)第003744号朝日土地建物(株)八王子店営業3課〒192-0083 東京都八王子市旭町10-3 |
Hill photo高台写真  7 Building site (December 2013) Shooting
7号棟現地(2013年12月)撮影
Kitchenキッチン  With 7 Building dishwasher system kitchen interior (November 2013) Shooting
7号棟食洗機付システムキッチン室内(2013年11月)撮影
Local appearance photo現地外観写真  7 Building Local (11 May 2013) Shooting
7号棟 現地(2013年11月)撮影
View photos from the dwelling unit住戸からの眺望写真  Sunny day overlooks Mount Fuji! ! View from the site (November 2013) Shooting
晴れた日は富士山が望めます!! 現地からの眺望(2013年11月)撮影
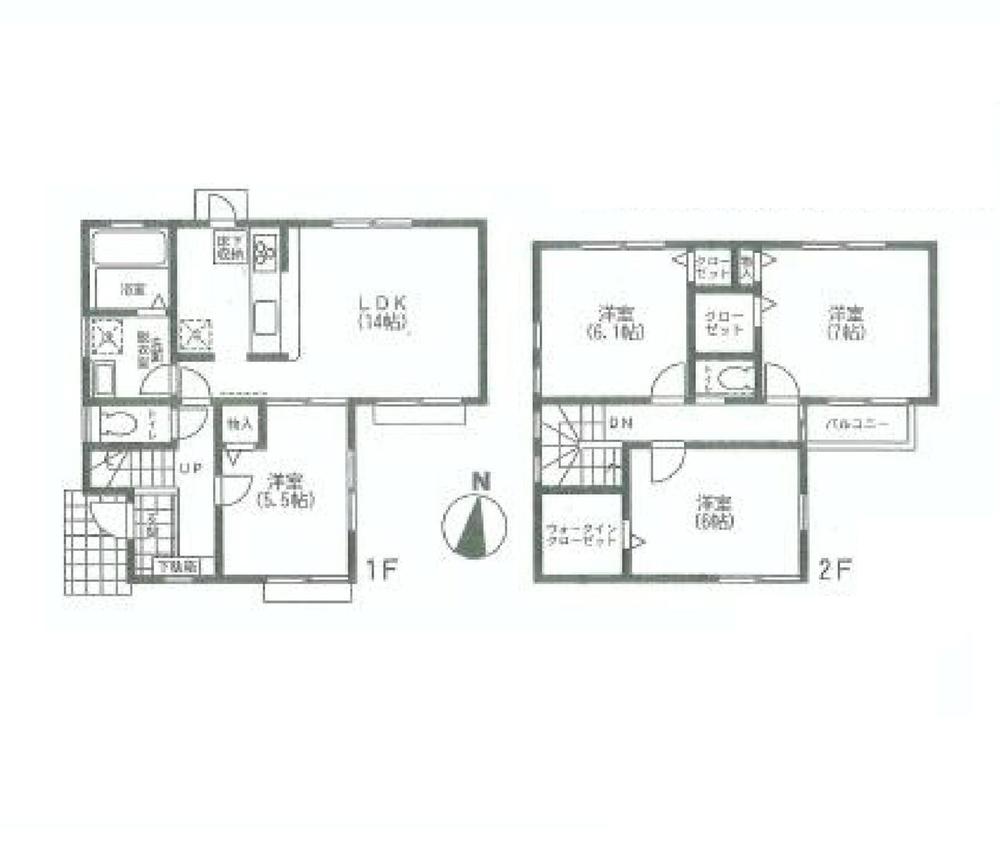
Floor plan間取り図  (7), Price 28.5 million yen, 4LDK, Land area 137.26 sq m , Building area 93.77 sq m
(7)、価格2850万円、4LDK、土地面積137.26m2、建物面積93.77m2
Local appearance photo現地外観写真  7 Building Local (11 May 2013) Shooting
7号棟 現地(2013年11月)撮影
Livingリビング  10 Building
10号棟
Bathroom浴室  7 Building
7号棟
Non-living roomリビング以外の居室  7 Building
7号棟
Supermarketスーパー  980m to Keio Store
京王ストアまで980m
Sale already cityscape photo分譲済街並み写真  (November 2013) Shooting
(2013年11月)撮影
View photos from the dwelling unit住戸からの眺望写真  View from the site (November 2013) Shooting
現地からの眺望(2013年11月)撮影
Other localその他現地  Local (11 May 2013) Shooting
現地(2013年11月)撮影
Livingリビング  10 Building
10号棟
Junior high school中学校  Uchikoshi 1250m until junior high school
打越中学校まで1250m
View photos from the dwelling unit住戸からの眺望写真  Indoor (11 May 2013) Shooting
室内(2013年11月)撮影
Livingリビング  7 Building LDK
7号棟 LDK
Primary school小学校  Yui 1200m until the first elementary school
由井第一小学校まで1200m
Hospital病院  650m to Iwata clinic
岩田医院まで650m
Kindergarten ・ Nursery幼稚園・保育園  400m until the child nursery of stars
星の子保育園まで400m
Presentプレゼント ![Present. [Your sale support campaign] The customers who got the request of the sale to the customer's wish "Asahi affection rice 2kg gift" is, It will be posted to your sale Listing to Sumo. ・ The customer contracts concluded "Asahi affection rice 5Kg gift" ・ soil ・ Day ・ In Bazaar venue for coming to the holiday "season of the bouquet" gift ※ The Bazaar venue, Ya baby bed We offer a Children's Playground. Even in young children, Please your coming in peace.](/images/tokyo/hachioji/b7aa5b0006.jpg) [Your sale support campaign] The customers who got the request of the sale to the customer's wish "Asahi affection rice 2kg gift" is, It will be posted to your sale Listing to Sumo. ・ The customer contracts concluded "Asahi affection rice 5Kg gift" ・ soil ・ Day ・ In Bazaar venue for coming to the holiday "season of the bouquet" gift ※ The Bazaar venue, Ya baby bed We offer a Children's Playground. Even in young children, Please your coming in peace.
【ご売却応援キャンペーン】 売却のご依頼を頂いたお客様には『朝日あいじょう米2kgプレゼント』ご希望のお客様には、スーモにご売却物件を掲載いたします。・ご成約のお客様には『朝日あいじょう米5Kgプレゼント』・土・日・祝日にバザール会場ご来場で『季節の花束』プレゼント※バザール会場には、ベビーベッドや キッズスペースをご用意しております。 小さなお子様連れでも、安心してご来場ください。
Location
|