New Homes » Kanto » Tokyo » Hachioji
 
| | Hachioji, Tokyo 東京都八王子市 |
| JR Chuo Line "Nishi Hachioji" walk 5 minutes JR中央線「西八王子」歩5分 |
| "Hachioji Utenamachi 4-chome ・ All one building. " Station 5-minute walk, All rooms Western-style 4LDK, Loft face-to-face with kitchen 5 Pledge with dishwasher, Second floor LDK17.6 Pledge, Master Bedroom 8 pledge, Flat 35S ・ B type 「八王子市台町4丁目・全1棟」 駅徒歩5分、全室洋室の4LDK、ロフト5帖付食洗機付対面キッチン、2階LDK17.6帖、主寝室8帖、フラット35S・Bタイプ |
| ■ Exterior wall siding 14mm ■ Flat way from the JR Chuo Line "Nishi Hachioji" station, A 5-minute walk of the good location ■外壁サイディング14mm■JR中央線「西八王子」駅から平坦な道のり、徒歩5分の好立地 |
Features pickup 特徴ピックアップ | | Corresponding to the flat-35S / System kitchen / Bathroom Dryer / Yang per good / All room storage / LDK15 tatami mats or more / Face-to-face kitchen / Toilet 2 places / 2-story / Double-glazing / Otobasu / Warm water washing toilet seat / loft / Underfloor Storage / The window in the bathroom / TV monitor interphone / Ventilation good / All living room flooring / Dish washing dryer / Water filter / City gas / Flat terrain フラット35Sに対応 /システムキッチン /浴室乾燥機 /陽当り良好 /全居室収納 /LDK15畳以上 /対面式キッチン /トイレ2ヶ所 /2階建 /複層ガラス /オートバス /温水洗浄便座 /ロフト /床下収納 /浴室に窓 /TVモニタ付インターホン /通風良好 /全居室フローリング /食器洗乾燥機 /浄水器 /都市ガス /平坦地 | Price 価格 | | 45,800,000 yen 4580万円 | Floor plan 間取り | | 4LDK 4LDK | Units sold 販売戸数 | | 1 units 1戸 | Total units 総戸数 | | 1 units 1戸 | Land area 土地面積 | | 99.18 sq m (30.00 tsubo) (measured) 99.18m2(30.00坪)(実測) | Building area 建物面積 | | 115.26 sq m (34.86 square meters) 115.26m2(34.86坪) | Driveway burden-road 私道負担・道路 | | Nothing, East 6m width 無、東6m幅 | Completion date 完成時期(築年月) | | March 2014 2014年3月 | Address 住所 | | Hachioji, Tokyo Utenamachi 4 東京都八王子市台町4 | Traffic 交通 | | JR Chuo Line "Nishi Hachioji" walk 5 minutes JR中央線「西八王子」歩5分
| Related links 関連リンク | | [Related Sites of this company] 【この会社の関連サイト】 | Person in charge 担当者より | | Person in charge of real-estate and building Uchiyama Taiki Age: for 20 generations customer satisfaction, We promise to support in full force. 担当者宅建内山 大樹年齢:20代お客様のご満足のために、全力でのサポートをお約束いたします。 | Contact お問い合せ先 | | TEL: 0800-809-8309 [Toll free] mobile phone ・ Also available from PHS Caller ID is not notified Please contact the "saw SUUMO (Sumo)" If it does not lead, If the real estate company TEL:0800-809-8309【通話料無料】携帯電話・PHSからもご利用いただけます 発信者番号は通知されません 「SUUMO(スーモ)を見た」と問い合わせください つながらない方、不動産会社の方は
| Building coverage, floor area ratio 建ぺい率・容積率 | | 60% ・ 200% 60%・200% | Time residents 入居時期 | | March 2014 schedule 2014年3月予定 | Land of the right form 土地の権利形態 | | Ownership 所有権 | Structure and method of construction 構造・工法 | | Wooden 2-story 木造2階建 | Use district 用途地域 | | One dwelling 1種住居 | Other limitations その他制限事項 | | Quasi-fire zones, Second kind altitude district, Landscape law, Aviation Law 準防火地域、第2種高度地区、景観法、航空法 | Overview and notices その他概要・特記事項 | | Contact: Uchiyama Big tree, Facilities: Public Water Supply, This sewage, City gas, Building confirmation number: No. H25A-JK.eM00714-01, Parking: car space 担当者:内山 大樹、設備:公営水道、本下水、都市ガス、建築確認番号:第H25A-JK.eM00714-01号、駐車場:カースペース | Company profile 会社概要 | | <Mediation> Governor of Tokyo (7) No. 050689 (Corporation) Tokyo Metropolitan Government Building Lots and Buildings Transaction Business Association (Corporation) metropolitan area real estate Fair Trade Council member Century 21 (Ltd.) house Engineering Management sales Yubinbango192-0073 Hachioji, Tokyo Teramachi 69 <仲介>東京都知事(7)第050689号(公社)東京都宅地建物取引業協会会員 (公社)首都圏不動産公正取引協議会加盟センチュリー21(株)住宅工営販売〒192-0073 東京都八王子市寺町69 |
Local appearance photo現地外観写真  2013 December 24, shooting
2013年12月24日撮影
Local photos, including front road前面道路含む現地写真  2013 December 24, shooting
2013年12月24日撮影
Local appearance photo現地外観写真  2013 December 24, shooting
2013年12月24日撮影
 2013 December 24, shooting
2013年12月24日撮影
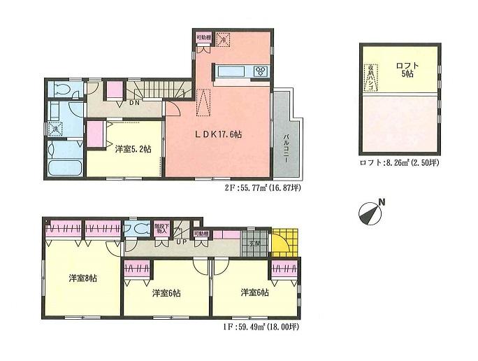
Floor plan間取り図  45,800,000 yen, 4LDK, Land area 99.18 sq m , 4LDK of building area 115.26 sq m All rooms are Western-style
4580万円、4LDK、土地面積99.18m2、建物面積115.26m2 全室洋室の4LDK
Compartment figure区画図  45,800,000 yen, 4LDK, Land area 99.18 sq m , Building area 115.26 sq m
4580万円、4LDK、土地面積99.18m2、建物面積115.26m2
Same specifications photo (kitchen)同仕様写真(キッチン)  Construction example photo
施工例写真
Same specifications photos (living)同仕様写真(リビング)  Construction example photo
施工例写真
Same specifications photo (bathroom)同仕様写真(浴室)  Construction example photo
施工例写真
Supermarketスーパー  363m to Super Alps west Hachioji
スーパーアルプス西八王子店まで363m
 Ecos 1200m to Hachioji biparietal shop
エコス八王子大横店まで1200m
 1600m until Keiosutoa Mejirodai shop
京王ストアめじろ台店まで1600m
Primary school小学校  696m to Hachioji Municipal seventh elementary school
八王子市立第七小学校まで696m
Junior high school中学校  687m to Hachioji Municipal seventh junior high school
八王子市立第七中学校まで687m
Park公園  851m until Fuji Forest Park
富士森公園まで851m
Hospital病院  Minamitama 318m to the hospital
南多摩病院まで318m
Location
|