New Homes » Kanto » Tokyo » Hachioji
 
| | Hachioji, Tokyo 東京都八王子市 |
| Keio Line "Naganuma" walk 11 minutes 京王線「長沼」歩11分 |
| "Hachioji Kinugaoka 1-chome ・ All one building. " Station 11 minutes' walk, South road, 55 tsubo, Yang per well in the car space parallel two Allowed all Shitsuminami direction, Face-to-face kitchen, 18.1 Pledge LDK, Laid the first floor Western-style tatami 「八王子市絹ケ丘1丁目・全1棟」 駅徒歩11分、南道路、55坪、カースペース並列2台可全室南向きで陽当り良好、対面キッチン、18.1帖LDK、1階洋室畳敷き |
| Keio per "Kitano" station express train stop station, Commute ・ School convenient location 京王線「北野」駅特急停車駅につき、通勤・通学便利な立地 |
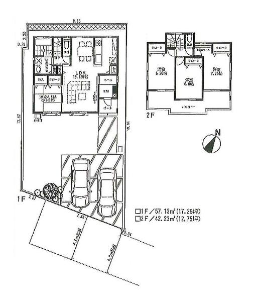
Features pickup 特徴ピックアップ | | Parking two Allowed / Land 50 square meters or more / LDK18 tatami mats or more / System kitchen / Yang per good / All room storage / Siemens south road / Face-to-face kitchen / 3 face lighting / Toilet 2 places / 2-story / South balcony / Zenshitsuminami direction / Otobasu / Warm water washing toilet seat / Underfloor Storage / The window in the bathroom / TV monitor interphone / City gas 駐車2台可 /土地50坪以上 /LDK18畳以上 /システムキッチン /陽当り良好 /全居室収納 /南側道路面す /対面式キッチン /3面採光 /トイレ2ヶ所 /2階建 /南面バルコニー /全室南向き /オートバス /温水洗浄便座 /床下収納 /浴室に窓 /TVモニタ付インターホン /都市ガス | Price 価格 | | 38,800,000 yen 3880万円 | Floor plan 間取り | | 4LDK 4LDK | Units sold 販売戸数 | | 1 units 1戸 | Total units 総戸数 | | 1 units 1戸 | Land area 土地面積 | | 181.82 sq m (55.00 square meters) 181.82m2(55.00坪) | Building area 建物面積 | | 99.36 sq m (30.05 square meters) 99.36m2(30.05坪) | Driveway burden-road 私道負担・道路 | | 40.59 sq m , South 4.5m width 40.59m2、南4.5m幅 | Completion date 完成時期(築年月) | | April 2014 2014年4月 | Address 住所 | | Hachioji, Tokyo Kinugaoka 1 東京都八王子市絹ケ丘1 | Traffic 交通 | | Keio Line "Naganuma" walk 11 minutes Keio Line "Kitano" walk 12 minutes 京王線「長沼」歩11分 京王線「北野」歩12分
| Related links 関連リンク | | [Related Sites of this company] 【この会社の関連サイト】 | Person in charge 担当者より | | Person in charge of real-estate and building Uchiyama Taiki Age: for 20 generations customer satisfaction, We promise to support in full force. 担当者宅建内山 大樹年齢:20代お客様のご満足のために、全力でのサポートをお約束いたします。 | Contact お問い合せ先 | | TEL: 0800-809-8309 [Toll free] mobile phone ・ Also available from PHS Caller ID is not notified Please contact the "saw SUUMO (Sumo)" If it does not lead, If the real estate company TEL:0800-809-8309【通話料無料】携帯電話・PHSからもご利用いただけます 発信者番号は通知されません 「SUUMO(スーモ)を見た」と問い合わせください つながらない方、不動産会社の方は
| Building coverage, floor area ratio 建ぺい率・容積率 | | 40% ・ 80% 40%・80% | Time residents 入居時期 | | April 2014 schedule 2014年4月予定 | Land of the right form 土地の権利形態 | | Ownership 所有権 | Structure and method of construction 構造・工法 | | Wooden 2-story 木造2階建 | Use district 用途地域 | | One low-rise 1種低層 | Other limitations その他制限事項 | | The first kind altitude district (10m), Aviation Law, Natural Parks Law, District planning area Other: Seddominami 4.5m driveway (position designated road) 第1種高度地区(10m)、航空法、自然公園法、地区計画区域 その他:接道南4.5m私道(位置指定道路) | Overview and notices その他概要・特記事項 | | Contact: Uchiyama Big tree, Facilities: Public Water Supply, This sewage, City gas, Building confirmation number: No. 00210, Parking: car space 担当者:内山 大樹、設備:公営水道、本下水、都市ガス、建築確認番号:00210号、駐車場:カースペース | Company profile 会社概要 | | <Mediation> Governor of Tokyo (7) No. 050689 (Corporation) Tokyo Metropolitan Government Building Lots and Buildings Transaction Business Association (Corporation) metropolitan area real estate Fair Trade Council member Century 21 (Ltd.) house Engineering Management sales Yubinbango192-0073 Hachioji, Tokyo Teramachi 69 <仲介>東京都知事(7)第050689号(公社)東京都宅地建物取引業協会会員 (公社)首都圏不動産公正取引協議会加盟センチュリー21(株)住宅工営販売〒192-0073 東京都八王子市寺町69 |
Local appearance photo現地外観写真  2013 December 24, shooting
2013年12月24日撮影
Local photos, including front road前面道路含む現地写真  2013 December 24, shooting
2013年12月24日撮影
Local appearance photo現地外観写真  2013 December 24, shooting
2013年12月24日撮影
 2013 December 24, shooting
2013年12月24日撮影
Floor plan間取り図  38,800,000 yen, 4LDK, Land area 181.82 sq m , Building area 99.36 sq m
3880万円、4LDK、土地面積181.82m2、建物面積99.36m2
Supermarketスーパー  867m until Keiosutoa Kitano shop
京王ストア北野店まで867m
 883m to Super Alps Kitano shop
スーパーアルプス北野店まで883m
 1400m to Super Zao
スーパー蔵王まで1400m
Primary school小学校  611m to Hachioji Municipal Naganuma Elementary School
八王子市立長沼小学校まで611m
Junior high school中学校  751m to Hachioji Municipal Uchikoshi junior high school
八王子市立打越中学校まで751m
Park公園  1000m until the honey locust ze Ki Park
さいかちぜき公園まで1000m
Hospital病院  Kitanodai 341m to the hospital
北野台病院まで341m
Location
|