New Homes » Kanto » Tokyo » Hachioji
 
| | Hachioji, Tokyo 東京都八王子市 |
| Keio Sagamihara Line "Tamasakai" walk 22 minutes 京王相模原線「多摩境」歩22分 |
| Readjustment land within, Corner lot, Parking two Allowed, 2 along the line more accessible, LDK20 tatami mats or more, Fiscal year Available, Pre-ground survey, Seismic fit, Super close, It is close to the city, Facing south, System kitchen, Bathroom Dryer 区画整理地内、角地、駐車2台可、2沿線以上利用可、LDK20畳以上、年度内入居可、地盤調査済、耐震適合、スーパーが近い、市街地が近い、南向き、システムキッチン、浴室乾燥 |
| Readjustment land within, Corner lot, Parking two Allowed, 2 along the line more accessible, LDK20 tatami mats or more, Fiscal year Available, Pre-ground survey, Seismic fit, Super close, It is close to the city, Facing south, System kitchen, Bathroom Dryer, Yang per good, All room storage, Siemens south road, A quiet residential area, Around traffic fewer, Or more before road 6mese-style room, Shaping land, garden, Washbasin with shower, Face-to-face kitchen, Toilet 2 places, Bathroom 1 tsubo or more, 2-story, 2 or more sides balcony, South balcony, Double-glazing, Zenshitsuminami direction, Otobasu, Warm water washing toilet seat, Nantei, Underfloor Storage, The window in the bathroom, High-function toilet, Leafy residential area, Ventilation good, All living room flooring, Walk-in closet, All room 6 tatami mats or more, Water filter, City gas, All rooms are two-sided lighting, The distance between the neighboring house 区画整理地内、角地、駐車2台可、2沿線以上利用可、LDK20畳以上、年度内入居可、地盤調査済、耐震適合、スーパーが近い、市街地が近い、南向き、システムキッチン、浴室乾燥機、陽当り良好、全居室収納、南側道路面す、閑静な住宅地、周辺交通量少なめ、前道6m以上、和室、整形地、庭、シャワー付洗面台、対面式キッチン、トイレ2ヶ所、浴室1坪以上、2階建、2面以上バルコニー、南面バルコニー、複層ガラス、全室南向き、オートバス、温水洗浄便座、南庭、床下収納、浴室に窓、高機能トイレ、緑豊かな住宅地、通風良好、全居室フローリング、ウォークインクロゼット、全居室6畳以上、浄水器、都市ガス、全室2面採光、隣家との間隔 |
Features pickup 特徴ピックアップ | | Pre-ground survey / Seismic fit / Parking two Allowed / 2 along the line more accessible / LDK20 tatami mats or more / Fiscal year Available / Super close / It is close to the city / Facing south / System kitchen / Bathroom Dryer / Yang per good / All room storage / Siemens south road / A quiet residential area / Around traffic fewer / Or more before road 6m / Corner lot / Japanese-style room / Shaping land / garden / Washbasin with shower / Face-to-face kitchen / Toilet 2 places / Bathroom 1 tsubo or more / 2-story / 2 or more sides balcony / South balcony / Double-glazing / Zenshitsuminami direction / Otobasu / Warm water washing toilet seat / Nantei / Underfloor Storage / The window in the bathroom / High-function toilet / Leafy residential area / Ventilation good / All living room flooring / Walk-in closet / All room 6 tatami mats or more / Water filter / City gas / All rooms are two-sided lighting / A large gap between the neighboring house / Maintained sidewalk / Flat terrain / Readjustment land within 地盤調査済 /耐震適合 /駐車2台可 /2沿線以上利用可 /LDK20畳以上 /年度内入居可 /スーパーが近い /市街地が近い /南向き /システムキッチン /浴室乾燥機 /陽当り良好 /全居室収納 /南側道路面す /閑静な住宅地 /周辺交通量少なめ /前道6m以上 /角地 /和室 /整形地 /庭 /シャワー付洗面台 /対面式キッチン /トイレ2ヶ所 /浴室1坪以上 /2階建 /2面以上バルコニー /南面バルコニー /複層ガラス /全室南向き /オートバス /温水洗浄便座 /南庭 /床下収納 /浴室に窓 /高機能トイレ /緑豊かな住宅地 /通風良好 /全居室フローリング /ウォークインクロゼット /全居室6畳以上 /浄水器 /都市ガス /全室2面採光 /隣家との間隔が大きい /整備された歩道 /平坦地 /区画整理地内 | Price 価格 | | 32,800,000 yen ~ 39,800,000 yen 3280万円 ~ 3980万円 | Floor plan 間取り | | 3LDK ~ 4LDK 3LDK ~ 4LDK | Units sold 販売戸数 | | 6 units 6戸 | Total units 総戸数 | | 6 units 6戸 | Land area 土地面積 | | 125.02 sq m ~ 142.86 sq m (registration) 125.02m2 ~ 142.86m2(登記) | Building area 建物面積 | | 97.7 sq m ~ 102.68 sq m (measured) 97.7m2 ~ 102.68m2(実測) | Driveway burden-road 私道負担・道路 | | 6m south road Asphaltic pavement 6m南道路 アスファルト舗装 | Completion date 完成時期(築年月) | | April 2014 late schedule 2014年4月下旬予定 | Address 住所 | | Hachioji, Tokyo Yarimizu 2 東京都八王子市鑓水2 | Traffic 交通 | | Keio Sagamihara Line "Tamasakai" walk 22 minutes JR Yokohama Line "Hashimoto" walk 30 minutes Keio Sagamihara Line "Minami-Osawa" walk 29 minutes 京王相模原線「多摩境」歩22分 JR横浜線「橋本」歩30分 京王相模原線「南大沢」歩29分
| Person in charge 担当者より | | Person in charge of Chiba Yuta Age: 20s [Favorite food] potato salad [hobby] reading, Playing with children [Word] Since I'm from Machida, Please ask anything if Machida thing! 担当者千葉 祐太年齢:20代【好きな食べ物】ポテトサラダ 【趣味】読書、子供と遊ぶ 【一言】町田市出身ですので、町田の事ならなんでもお聞きください! | Contact お問い合せ先 | | TEL: 0800-603-2732 [Toll free] mobile phone ・ Also available from PHS Caller ID is not notified Please contact the "saw SUUMO (Sumo)" If it does not lead, If the real estate company TEL:0800-603-2732【通話料無料】携帯電話・PHSからもご利用いただけます 発信者番号は通知されません 「SUUMO(スーモ)を見た」と問い合わせください つながらない方、不動産会社の方は
| Building coverage, floor area ratio 建ぺい率・容積率 | | Kenpei rate: 40%, Volume ratio: 80% 建ペい率:40%、容積率:80% | Time residents 入居時期 | | April 2014 late schedule 2014年4月下旬予定 | Land of the right form 土地の権利形態 | | Ownership 所有権 | Structure and method of construction 構造・工法 | | Wooden 2-story (framing method) 木造2階建(軸組工法) | Use district 用途地域 | | One low-rise 1種低層 | Land category 地目 | | Residential land 宅地 | Other limitations その他制限事項 | | Regulations have by the Landscape Act, Height ceiling Yes, Shade limit Yes, Irregular land 景観法による規制有、高さ最高限度有、日影制限有、不整形地 | Overview and notices その他概要・特記事項 | | Contact: Chiba Yuta, Building confirmation number: 13-1839 担当者:千葉 祐太、建築確認番号:13-1839 | Company profile 会社概要 | | <Mediation> Governor of Tokyo (1) No. 089264 (Corporation) Tokyo Metropolitan Government Building Lots and Buildings Transaction Business Association (Corporation) metropolitan area real estate Fair Trade Council member (Ltd.) Urban Home Machida branch Yubinbango194-0022 Tokyo Machida Morino 1-34-10 first Yazawa building first floor <仲介>東京都知事(1)第089264号(公社)東京都宅地建物取引業協会会員 (公社)首都圏不動産公正取引協議会加盟(株)アーバンホーム町田支店〒194-0022 東京都町田市森野1-34-10 第1矢沢ビル1階 |
 Same specifications photos (living)
同仕様写真(リビング)
Local photos, including front road前面道路含む現地写真  Local (12 May 2013) Shooting
現地(2013年12月)撮影
 Same specifications photo (kitchen)
同仕様写真(キッチン)
Floor plan間取り図  (1 Building), Price 38,800,000 yen, 4LDK, Land area 142.86 sq m , Building area 102.68 sq m
(1号棟)、価格3880万円、4LDK、土地面積142.86m2、建物面積102.68m2
Local appearance photo現地外観写真  Local (12 May 2013) Shooting
現地(2013年12月)撮影
 Same specifications photo (bathroom)
同仕様写真(浴室)
Local photos, including front road前面道路含む現地写真  Local (12 May 2013) Shooting
現地(2013年12月)撮影
 Same specifications photos (Other introspection)
同仕様写真(その他内観)
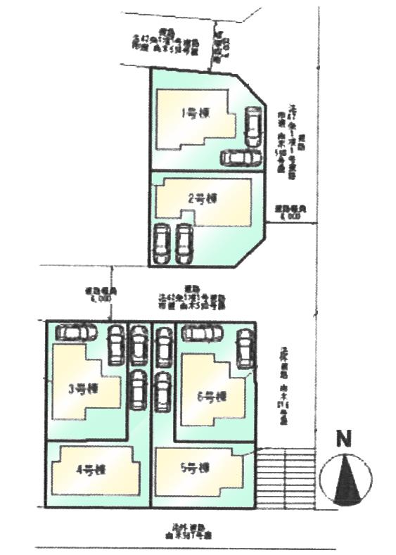
 The entire compartment Figure
全体区画図
Other localその他現地  Local (12 May 2013) Shooting
現地(2013年12月)撮影
Floor plan間取り図  (Building 2), Price 39,800,000 yen, 4LDK, Land area 142.62 sq m , Building area 100.6 sq m
(2号棟)、価格3980万円、4LDK、土地面積142.62m2、建物面積100.6m2
Local appearance photo現地外観写真  Local (12 May 2013) Shooting
現地(2013年12月)撮影
 Same specifications photos (Other introspection)
同仕様写真(その他内観)
Floor plan間取り図  (3 Building), Price 34,800,000 yen, 3LDK, Land area 125.42 sq m , Building area 97.7 sq m
(3号棟)、価格3480万円、3LDK、土地面積125.42m2、建物面積97.7m2
 (4 Building), Price 32,800,000 yen, 4LDK, Land area 129.68 sq m , Building area 98.95 sq m
(4号棟)、価格3280万円、4LDK、土地面積129.68m2、建物面積98.95m2
 (5 Building), Price 33,800,000 yen, 4LDK, Land area 129.89 sq m , Building area 99.77 sq m
(5号棟)、価格3380万円、4LDK、土地面積129.89m2、建物面積99.77m2
 (6 Building), Price 35,800,000 yen, 4LDK, Land area 125.02 sq m , Building area 98.53 sq m
(6号棟)、価格3580万円、4LDK、土地面積125.02m2、建物面積98.53m2
 Shopping centre
ショッピングセンター
 Home center
ホームセンター
 Supermarket
スーパー
Location
|